- Жилища в полите на Витоша в комбинация с удобен достъп и транспорт до централните части на града
- Един от най-предпочитаните райони на София!
- Уникално съчетание от отлична пътна инфраструктура, близост до мол, разнообразни хипермаркети и богатството на природен парк Витоша
- Напредващо строителство!
- Функционално вътрешно разпределение - може би най-добре обмислените вътрешни пространства сред наличните проекти за продажба в София!
- Отлична инвестиция! Без аналог на пазара съотношение цена-качество
- Луксозно строителство (по световни стандарти) с висококачествени материали
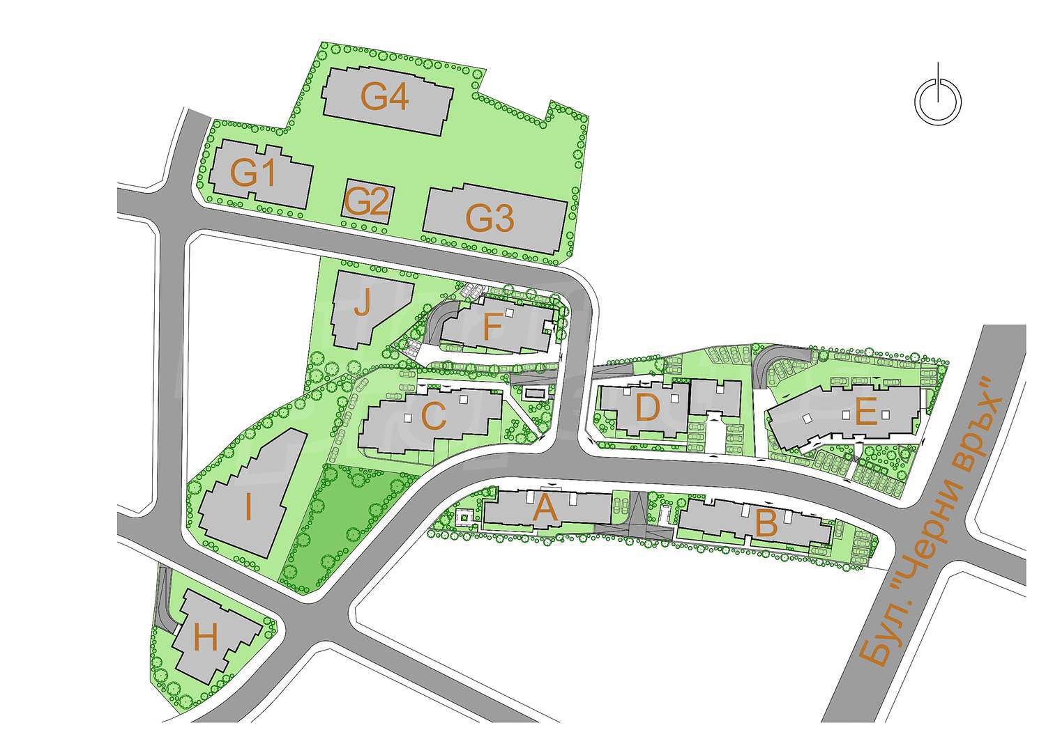
- Чисто нова инфраструктура, изградена от фирмата-инвеститор - водопровод, канализация, трафопост, асфалтов път, тротоари и улично осветление
- Приоритетно разполагане на автомобилите в подземни паркинги
- Само ново строителство в района, което дава съвременен облик и приятна атмосфера за живот
- Главен изпълнител на проекта - елитната строителна компания Аргогруп
Продажа
эксклюзивноХит продаж
Витоша Вью / Vitosha View - знаковый комплекс в Софии
г. София, кв.«Крыстова Вада»Эксклюзивный жилой комплекс в 2 км от трасс горного курорта Витоша
Характеристики
Тип недвижимости
Апартаменты (различные типы), Четырехкомнатные квартиры, Многокомнатные квартиры
Реф. номер
Sfa Vitosha View - 44962
Площадь
163.89 м2 (жилая площадь: 144.47 м2 плюс общие части: 19.42 м2) еще
Спальни
3
Состояние
болгарский государственный стандарт
Этаж
1 из 6
Лифт
да
Меблировка
Немеблированная
Отопление
Отопление кондиционером / Газовая система отопления
Вид строительства
Кирпич, Новостройки
Год строительства
2027
Энергетический класс
A
Местоположение
г. София, кв.«Крыстова Вада»Отправьте запрос на цены, планировки или осмотр
429 000 - € 445 000
(2 618 - 2 715 €/м2)
- €
- руб.
- $
Платежи с карты и PayPal.
Располагаем онлайн ПОС терминалом
Располагаем онлайн ПОС терминалом
Комплекс строится
Ввод в эксплуатацию: 20.02.2027 г
Агенству причитается комиссия
ПОДРОБНАЯ ИНФОРМАЦИЯ
Реф. номер: Sfa Vitosha View - 44962
При звонке, пожалуйста, указывайте номер объекта недвижимости.