0
Здравствуйте,
Любимые предложения (0)
Сохраненные поиски
Специально для вас
Уведомления
Подписки
Настройки
Выход
Закрыть

Удобства района

    ТРАНСПОРТ

  • Автобусная остановка "УЛ. ЛУИ АЙЕР" 232 м (3 мин.) - Автобус No: 801
  • Остановка троллейбуса "Ж.К. ГОЦЕ ДЕЛЧЕВ" 360 м (5 мин.) - Троллейбус No: 7, 8
  • Остановка трамвая "КВ. МАНАСТИРСКИ ЛИВАДИ - ЗАПАД" 1.0 км (13 мин.) - Трамвай No: 27, 7
  • УЧЕБНЫЕ ЗАВЕДЕНИЯ

  • Детский сад "ДГ 7 „Детелина“" 605 м (8 мин.)
  • Детский сад "Слънчо" 885 м (11 мин.)
  • Школа "73 СУ „Владислав Граматик“" 760 м (10 мин.)
  • Школа "НЧ "Димитър Динев" - музикална школа" 859 м (11 мин.)
  • МЕДИЦИНСКИЕ УЧРЕЖДЕНИЯ

  • Больница "МЦ “УниХоспитал”" 799 м (10 мин.)
  • Больница "29-ти ДКЦ" 852 м (11 мин.)
  • Медицинский центр "Vivid" 130 м (2 мин.)
  • ШОПИНГ

  • Продуктовый магазин "Super" 233 м (3 мин.)
  • Супермаркет "Elysium Market" 247 м (3 мин.)
  • Супермаркет "Виконт" 539 м (7 мин.)
  • Пекарня "Бримекс" 445 м (6 мин.)
  • Зоо магазин "Ава зоо" 458 м (6 мин.)
  • Торгово-развлекательный центр "Мол България" 937 м (12 мин.)
  • УСЛУГИ

  • Банк "ОББ" 626 м (8 мин.)
  • Банк "ОББ" 626 м (8 мин.)
  • Аптека "SOpharmacy" 424 м (6 мин.)
  • Почта "Speedy" 464 м (6 мин.)
  • Почта "Еконт" 468 м (6 мин.)
  • Химчистка "The clean spot" 463 м (6 мин.)
  • Парикмахер "Style House" 433 м (6 мин.)
  • Салон красоты "R" 406 м (5 мин.)
  • Ветеринар "9вет" 581 м (7 мин.)
  • ЗАВЕДЕНИЯ

  • Ресторан "Yany steak&wine" 397 м (5 мин.)
  • Ресторан 598 м (8 мин.)
  • Кафе "Mona Rosa" 451 м (6 мин.)
  • Бар "Емералд Бар & Лаундж" 570 м (7 мин.)
  • СПОРТ И СВОБОДНОЕ ВРЕМЯ

  • Фитнес 517 м (7 мин.)
  • Плавательный бассейн 587 м (8 мин.)
  • Спортивные площадки "Mettasense Yoga & Relax Area" 930 м (12 мин.)
  • Теннисный корт 1.2 км (15 мин.)
  • Кино "CineLand" 876 м (11 мин.)
  • ПРИРОДА И РАЗВЛЕЧЕНИЯ

  • Парк 711 м (9 мин.)
  • Сад 333 м (5 мин.)
  • АВТОМОБИЛЬНЫЕ УСЛУГИ

  • Парковка 26 м (1 мин.)
  • Бензозаправочная станция "Interspeed" 534 м (7 мин.)
  • Зарядная станция "Столичен електротранспорт" 432 м (6 мин.)
  • Мойка автомобилей 399 м (5 мин.)
  • Автосервис 395 м (5 мин.)

ОТПРАВЬТЕ ЗАПРОС

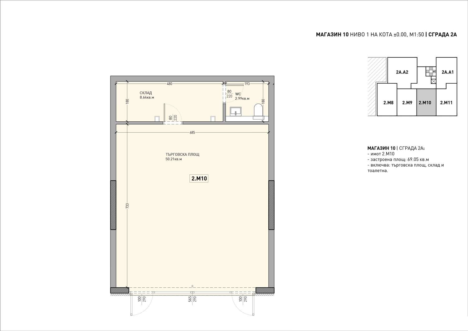
298 400
(3 638 €/кв.м.) Площадь: 82.03 кв.м.   
  • руб.
  • $
Платежи с карты и PayPal.
Располагаем онлайн ПОС терминалом
Комплекс строится Ввод в эксплуатацию: 30.06.2029 г
Агенству причитается комиссия
Прайс-лист
ПОДРОБНАЯ ИНФОРМАЦИЯ Реф. номер: Sfb 88614

При звонке, пожалуйста, указывайте номер объекта недвижимости.

Иванка Стойкова

Иванка Стойкова

Офис София - Бъкстон
р-он Бъкстон, бул. Братя Бъкстон 31А, г. София, Болгария Все объекты (121)
Объектов недвижимости в этом комплексе
148
объектов недвижимости
128
свободных
12
проданных
8
забронированных

ОТПРАВЬТЕ ЗАПРОС

Еще объекты недвижимости в в этом комплексе

Функциональные и просторные квартиры, высококачественное строительство, окруженный зеленью, рядом с детским садом, с удобным доступом к основным бульварам
Продажа
новинка
Трехкомнатная квартира в Жилой комплекс класса «бутик» в квартале «Манастирски Ливади-Восток» г. София , кв. «Манастирски Ливади» Функциональные и просторные квартиры, высококачественное строительство, окруженный зеленью, рядом с детским садом, с удобным доступом к основным бульварам
Функциональные и просторные квартиры, высококачественное строительство, окруженный зеленью, рядом с детским садом, с удобным доступом к основным бульварам
Продажа
новинка
Трехкомнатная квартира в Жилой комплекс класса «бутик» в квартале «Манастирски Ливади-Восток» г. София , кв. «Манастирски Ливади» Функциональные и просторные квартиры, высококачественное строительство, окруженный зеленью, рядом с детским садом, с удобным доступом к основным бульварам
Функциональные и просторные квартиры, высококачественное строительство, окруженный зеленью, рядом с детским садом, с удобным доступом к основным бульварам
Продажа
новинка
Трехкомнатная квартира в Жилой комплекс класса «бутик» в квартале «Манастирски Ливади-Восток» г. София , кв. «Манастирски Ливади» Функциональные и просторные квартиры, высококачественное строительство, окруженный зеленью, рядом с детским садом, с удобным доступом к основным бульварам
Функциональные и просторные квартиры, высококачественное строительство, окруженный зеленью, рядом с детским садом, с удобным доступом к основным бульварам
Продажа
новинка
Трехкомнатная квартира в Жилой комплекс класса «бутик» в квартале «Манастирски Ливади-Восток» г. София , кв. «Манастирски Ливади» Функциональные и просторные квартиры, высококачественное строительство, окруженный зеленью, рядом с детским садом, с удобным доступом к основным бульварам
Функциональные и просторные квартиры, высококачественное строительство, окруженный зеленью, рядом с детским садом, с удобным доступом к основным бульварам
Продажа
новинка
Трехкомнатная квартира в Жилой комплекс класса «бутик» в квартале «Манастирски Ливади-Восток» г. София , кв. «Манастирски Ливади» Функциональные и просторные квартиры, высококачественное строительство, окруженный зеленью, рядом с детским садом, с удобным доступом к основным бульварам
Функциональные и просторные квартиры, высококачественное строительство, окруженный зеленью, рядом с детским садом, с удобным доступом к основным бульварам
Продажа
новинка
Трехкомнатная квартира в Жилой комплекс класса «бутик» в квартале «Манастирски Ливади-Восток» г. София , кв. «Манастирски Ливади» Функциональные и просторные квартиры, высококачественное строительство, окруженный зеленью, рядом с детским садом, с удобным доступом к основным бульварам
Функциональные и просторные квартиры, высококачественное строительство, окруженный зеленью, рядом с детским садом, с удобным доступом к основным бульварам
Продажа
новинка
Трехкомнатная квартира в Жилой комплекс класса «бутик» в квартале «Манастирски Ливади-Восток» г. София , кв. «Манастирски Ливади» Функциональные и просторные квартиры, высококачественное строительство, окруженный зеленью, рядом с детским садом, с удобным доступом к основным бульварам
Функциональные и просторные квартиры, высококачественное строительство, окруженный зеленью, рядом с детским садом, с удобным доступом к основным бульварам
Продажа
новинка
Магазин в Жилой комплекс класса «бутик» в квартале «Манастирски Ливади-Восток» г. София , кв. «Манастирски Ливади» Функциональные и просторные квартиры, высококачественное строительство, окруженный зеленью, рядом с детским садом, с удобным доступом к основным бульварам
Функциональные и просторные квартиры, высококачественное строительство, окруженный зеленью, рядом с детским садом, с удобным доступом к основным бульварам
Продажа
новинка
Магазин в Жилой комплекс класса «бутик» в квартале «Манастирски Ливади-Восток» г. София , кв. «Манастирски Ливади» Функциональные и просторные квартиры, высококачественное строительство, окруженный зеленью, рядом с детским садом, с удобным доступом к основным бульварам
Функциональные и просторные квартиры, высококачественное строительство, окруженный зеленью, рядом с детским садом, с удобным доступом к основным бульварам
Продажа
новинка
Магазин в Жилой комплекс класса «бутик» в квартале «Манастирски Ливади-Восток» г. София , кв. «Манастирски Ливади» Функциональные и просторные квартиры, высококачественное строительство, окруженный зеленью, рядом с детским садом, с удобным доступом к основным бульварам
Функциональные и просторные квартиры, высококачественное строительство, окруженный зеленью, рядом с детским садом, с удобным доступом к основным бульварам
Продажа
новинка
Магазин в Жилой комплекс класса «бутик» в квартале «Манастирски Ливади-Восток» г. София , кв. «Манастирски Ливади» Функциональные и просторные квартиры, высококачественное строительство, окруженный зеленью, рядом с детским садом, с удобным доступом к основным бульварам
Функциональные и просторные квартиры, высококачественное строительство, окруженный зеленью, рядом с детским садом, с удобным доступом к основным бульварам
Продажа
новинка
Магазин в Жилой комплекс класса «бутик» в квартале «Манастирски Ливади-Восток» г. София , кв. «Манастирски Ливади» Функциональные и просторные квартиры, высококачественное строительство, окруженный зеленью, рядом с детским садом, с удобным доступом к основным бульварам
Функциональные и просторные квартиры, высококачественное строительство, окруженный зеленью, рядом с детским садом, с удобным доступом к основным бульварам
Продажа
новинка
Двухкомнатная квартира в Жилой комплекс класса «бутик» в квартале «Манастирски Ливади-Восток» г. София , кв. «Манастирски Ливади» Функциональные и просторные квартиры, высококачественное строительство, окруженный зеленью, рядом с детским садом, с удобным доступом к основным бульварам
Функциональные и просторные квартиры, высококачественное строительство, окруженный зеленью, рядом с детским садом, с удобным доступом к основным бульварам
Продажа
новинка
Трехкомнатная квартира в Жилой комплекс класса «бутик» в квартале «Манастирски Ливади-Восток» г. София , кв. «Манастирски Ливади» Функциональные и просторные квартиры, высококачественное строительство, окруженный зеленью, рядом с детским садом, с удобным доступом к основным бульварам
Функциональные и просторные квартиры, высококачественное строительство, окруженный зеленью, рядом с детским садом, с удобным доступом к основным бульварам
Продажа
новинка
Двухкомнатная квартира в Жилой комплекс класса «бутик» в квартале «Манастирски Ливади-Восток» г. София , кв. «Манастирски Ливади» Функциональные и просторные квартиры, высококачественное строительство, окруженный зеленью, рядом с детским садом, с удобным доступом к основным бульварам
Функциональные и просторные квартиры, высококачественное строительство, окруженный зеленью, рядом с детским садом, с удобным доступом к основным бульварам
Продажа
новинка
Трехкомнатная квартира в Жилой комплекс класса «бутик» в квартале «Манастирски Ливади-Восток» г. София , кв. «Манастирски Ливади» Функциональные и просторные квартиры, высококачественное строительство, окруженный зеленью, рядом с детским садом, с удобным доступом к основным бульварам
Функциональные и просторные квартиры, высококачественное строительство, окруженный зеленью, рядом с детским садом, с удобным доступом к основным бульварам
Продажа
новинка
Двухкомнатная квартира в Жилой комплекс класса «бутик» в квартале «Манастирски Ливади-Восток» г. София , кв. «Манастирски Ливади» Функциональные и просторные квартиры, высококачественное строительство, окруженный зеленью, рядом с детским садом, с удобным доступом к основным бульварам
Функциональные и просторные квартиры, высококачественное строительство, окруженный зеленью, рядом с детским садом, с удобным доступом к основным бульварам
Продажа
новинка
Трехкомнатная квартира в Жилой комплекс класса «бутик» в квартале «Манастирски Ливади-Восток» г. София , кв. «Манастирски Ливади» Функциональные и просторные квартиры, высококачественное строительство, окруженный зеленью, рядом с детским садом, с удобным доступом к основным бульварам
Функциональные и просторные квартиры, высококачественное строительство, окруженный зеленью, рядом с детским садом, с удобным доступом к основным бульварам
Продажа
новинка
Двухкомнатная квартира в Жилой комплекс класса «бутик» в квартале «Манастирски Ливади-Восток» г. София , кв. «Манастирски Ливади» Функциональные и просторные квартиры, высококачественное строительство, окруженный зеленью, рядом с детским садом, с удобным доступом к основным бульварам
Функциональные и просторные квартиры, высококачественное строительство, окруженный зеленью, рядом с детским садом, с удобным доступом к основным бульварам
Продажа
новинка
Трехкомнатная квартира в Жилой комплекс класса «бутик» в квартале «Манастирски Ливади-Восток» г. София , кв. «Манастирски Ливади» Функциональные и просторные квартиры, высококачественное строительство, окруженный зеленью, рядом с детским садом, с удобным доступом к основным бульварам
Функциональные и просторные квартиры, высококачественное строительство, окруженный зеленью, рядом с детским садом, с удобным доступом к основным бульварам
Продажа
новинка
Двухкомнатная квартира в Жилой комплекс класса «бутик» в квартале «Манастирски Ливади-Восток» г. София , кв. «Манастирски Ливади» Функциональные и просторные квартиры, высококачественное строительство, окруженный зеленью, рядом с детским садом, с удобным доступом к основным бульварам
Функциональные и просторные квартиры, высококачественное строительство, окруженный зеленью, рядом с детским садом, с удобным доступом к основным бульварам
Продажа
новинка
Трехкомнатная квартира в Жилой комплекс класса «бутик» в квартале «Манастирски Ливади-Восток» г. София , кв. «Манастирски Ливади» Функциональные и просторные квартиры, высококачественное строительство, окруженный зеленью, рядом с детским садом, с удобным доступом к основным бульварам
Функциональные и просторные квартиры, высококачественное строительство, окруженный зеленью, рядом с детским садом, с удобным доступом к основным бульварам
Продажа
новинка
Двухкомнатная квартира в Жилой комплекс класса «бутик» в квартале «Манастирски Ливади-Восток» г. София , кв. «Манастирски Ливади» Функциональные и просторные квартиры, высококачественное строительство, окруженный зеленью, рядом с детским садом, с удобным доступом к основным бульварам
Функциональные и просторные квартиры, высококачественное строительство, окруженный зеленью, рядом с детским садом, с удобным доступом к основным бульварам
Продажа
новинка
Трехкомнатная квартира в Жилой комплекс класса «бутик» в квартале «Манастирски Ливади-Восток» г. София , кв. «Манастирски Ливади» Функциональные и просторные квартиры, высококачественное строительство, окруженный зеленью, рядом с детским садом, с удобным доступом к основным бульварам
Функциональные и просторные квартиры, высококачественное строительство, окруженный зеленью, рядом с детским садом, с удобным доступом к основным бульварам
Продажа
новинка
Двухкомнатная квартира в Жилой комплекс класса «бутик» в квартале «Манастирски Ливади-Восток» г. София , кв. «Манастирски Ливади» Функциональные и просторные квартиры, высококачественное строительство, окруженный зеленью, рядом с детским садом, с удобным доступом к основным бульварам

Еще объекты недвижимости в кв. Манастирски Ливади

Роскошный комплекс с панорамными видами, топовой локацией и впечатляющим силуэтом, расположенный между городской динамикой и горами.
Продажа
эксклюзивноХит продаж Люкс
SKY TOWERS by AMur — Новый архитектурный символ Софии г. София , кв. «Манастирски Ливади» Роскошный комплекс с панорамными видами, топовой локацией и впечатляющим силуэтом, расположенный между городской динамикой и горами. SKY TOWERS by AMur — Новый архитектурный символ Софии - Роскошный комплекс с панорамными видами, топовой локацией и впечатляющим силуэтом, расположенный между городской динамикой и горами.
Здание, объединяющее городскую динамику и близость к природе
Продажа
эксклюзивно Люкс
Synera Residence — новые квартиры в р-не Манастирски Ливади г. София , кв. «Манастирски Ливади» Здание, объединяющее городскую динамику и близость к природе Synera Residence — новые квартиры в р-не Манастирски Ливади - Здание, объединяющее городскую динамику и близость к природе
от 130 000
(€/кв.м. 2 492 - €/кв.м. 3 382)Площадь: 52.17 - 208.03 кв.м.
Даниела Тотева Риэлтор, София - Центральный
Квартиры с 2 или 3 спальнями рядом с Витошей и с удобным сообщением с центром столицы
Продажа
Новое здание всего с 16 квартирами в кв. Манастирски Ливади г. София , кв. «Манастирски Ливади» Квартиры с 2 или 3 спальнями рядом с Витошей и с удобным сообщением с центром столицы Новое здание всего с 16 квартирами в кв. Манастирски Ливади - Квартиры с 2 или 3 спальнями рядом с Витошей и с удобным сообщением с центром столицы
Полностью меблированная квартира в аренду в г. София
Аренда
новинка Люкс
Квартира в аренду с двумя парковочными местами в Манастирски Ливади г. София , кв. «Манастирски Ливади» Полностью меблированная квартира в аренду в г. София Квартира в аренду с двумя парковочными местами в Манастирски Ливади - Полностью меблированная квартира в аренду в г. София
Меблированная квартира рядом с Южным парком, школой «Владислав Граматик», детским садом
Аренда
новинка
Уютная двухкомнатная квартира в районе Манастирски Ливади г. София , кв. «Манастирски Ливади» Меблированная квартира рядом с Южным парком, школой «Владислав Граматик», детским садом Уютная двухкомнатная квартира в районе Манастирски Ливади - Меблированная квартира рядом с Южным парком, школой «Владислав Граматик», детским садом
Современный бизнес-объект в новом здании – идеально подходит для магазина, детского центра, офиса или шоурума
Продажа
Просторный торговый объект в престижном комплексе рядом с ключевыми бульварами в районе «Манастирски ливади» г. София , кв. «Манастирски Ливади» Современный бизнес-объект в новом здании – идеально подходит для магазина, детского центра, офиса или шоурума Просторный торговый объект в престижном комплексе рядом с ключевыми бульварами в районе «Манастирски ливади» - Современный бизнес-объект в новом здании – идеально подходит для магазина, детского центра, офиса или шоурума
Качественные квартиры с просторной и комфортной жилой площадью рядом с городскими достопримечательностями
Продажа
Современный жилой дом в Манастирски ливади-изток г. София , кв. «Манастирски Ливади» Качественные квартиры с просторной и комфортной жилой площадью рядом с городскими достопримечательностями Современный жилой дом в Манастирски ливади-изток - Качественные квартиры с просторной и комфортной жилой площадью рядом с городскими достопримечательностями
от 199 500
(€/кв.м. 2 445 - €/кв.м. 3 726)Площадь: 81.61 - 180.64 кв.м.
Иванка Стойкова Риэлтор / Партнер, София - Бъкстон
Современные дома с высокой энергоэффективностью рядом с современными удобствами
Продажа
Новый жилой проект в кв. Манастирски Ливади-Восток г. София , кв. «Манастирски Ливади» Современные дома с высокой энергоэффективностью рядом с современными удобствами Новый жилой проект в кв. Манастирски Ливади-Восток - Современные дома с высокой энергоэффективностью рядом с современными удобствами
от 131 189
(€/кв.м. 2 050 - €/кв.м. 2 750)Площадь: 62.77 - 112.79 кв.м.
Иванка Стойкова Риэлтор / Партнер, София - Бъкстон
Функциональное жилье, подходящее для офиса или проживания в культовом кошерном здании
Продажа
Люкс
Роскошная однокомнатная квартира на бульваре Болгария г. София , кв. «Манастирски Ливади» Функциональное жилье, подходящее для офиса или проживания в культовом кошерном здании Роскошная однокомнатная квартира на бульваре Болгария - Функциональное жилье, подходящее для офиса или проживания в культовом кошерном здании
Просторное коммерческое помещение с большим фасадом
Аренда
Магазин в аренду рядом с Bulgaria Mall с отличной видимостью г. София , кв. «Манастирски Ливади» Просторное коммерческое помещение с большим фасадом Магазин в аренду рядом с Bulgaria Mall с отличной видимостью - Просторное коммерческое помещение с большим фасадом
Офис без мебели с удобным расположением в квартале Манастирски ливади
Аренда
Люкс
Просторный офис с прекрасным видом на гору г. София , кв. «Манастирски Ливади» Офис без мебели с удобным расположением в квартале Манастирски ливади Просторный офис с прекрасным видом на гору - Офис без мебели с удобным расположением в квартале Манастирски ливади
Современное городское жильё с просторной террасой и видом на Витошу
Аренда
Меблированная студия с панорамной террасой в Манастирски ливади г. София , кв. «Манастирски Ливади» Современное городское жильё с просторной террасой и видом на Витошу Меблированная студия с панорамной террасой в Манастирски ливади - Современное городское жильё с просторной террасой и видом на Витошу
Аренда офисов, София
Аренда
Офис в г. София г. София , кв. «Манастирски Ливади» Аренда офисов, София Офис в г. София - Аренда офисов, София
Светлая и уютная квартира в одном из самых востребованных районов Софии
Аренда
Просторная 3-комнатная квартира в аренду в Манастирски Ливади г. София , кв. «Манастирски Ливади» Светлая и уютная квартира в одном из самых востребованных районов Софии Просторная 3-комнатная квартира в аренду в Манастирски Ливади - Светлая и уютная квартира в одном из самых востребованных районов Софии
Новые дома с современной архитектурой и престижным расположением от проверенного застройщика
Продажа
Элитный жилой комплекс в Манастирски Ливади – Восточный район г. София , кв. «Манастирски Ливади» Новые дома с современной архитектурой и престижным расположением от проверенного застройщика Элитный жилой комплекс в Манастирски Ливади – Восточный район - Новые дома с современной архитектурой и престижным расположением от проверенного застройщика
от 182 607
(€/кв.м. 2 319 - €/кв.м. 3 179)Площадь: 71.50 - 193.67 кв.м.
Михаил Кръстев Риэлтор, София - Центральный
Современный комплекс с отличным расположением, зеленой средой и долгосрочной инвестиционной ценностью
Продажа
Жилой комплекс высокого класса в Манастирски ливади – Восток г. София , кв. «Манастирски Ливади» Современный комплекс с отличным расположением, зеленой средой и долгосрочной инвестиционной ценностью Жилой комплекс высокого класса в Манастирски ливади – Восток - Современный комплекс с отличным расположением, зеленой средой и долгосрочной инвестиционной ценностью
от 163 827
(€/кв.м. 2 260 - €/кв.м. 3 075)Площадь: 71.40 - 180.23 кв.м.
Михаил Кръстев Риэлтор, София - Центральный
Современная архитектура, надёжный застройщик и панорамный вид на гору Витоша
Продажа
Южная двухкомнатная квартира по акционной цене в районе Манастирски Ливади г. София , кв. «Манастирски Ливади» Современная архитектура, надёжный застройщик и панорамный вид на гору Витоша Южная двухкомнатная квартира по акционной цене в районе Манастирски Ливади - Современная архитектура, надёжный застройщик и панорамный вид на гору Витоша
Квартира с южной ориентацией на среднем этаже с видом на Копитото
Продажа
Люкс
Двухкомнатная квартира по акционной цене в кв. Манастирски ливади г. София , кв. «Манастирски Ливади» Квартира с южной ориентацией на среднем этаже с видом на Копитото Двухкомнатная квартира по акционной цене в кв. Манастирски ливади - Квартира с южной ориентацией на среднем этаже с видом на Копитото
Новое жилье высокого класса с городской панорамой
Продажа
Светлая трехкомнатная квартира в районе Манастирски ливади г. София , кв. «Манастирски Ливади» Новое жилье высокого класса с городской панорамой Светлая трехкомнатная квартира в районе Манастирски ливади - Новое жилье высокого класса с городской панорамой
Светлая квартира с двумя спальнями и двумя ванными комнатами в отличной локации
Продажа
Просторная южная трёхкомнатная квартира в районе Манастирски Ливади, София г. София , кв. «Манастирски Ливади» Светлая квартира с двумя спальнями и двумя ванными комнатами в отличной локации Просторная южная трёхкомнатная квартира в районе Манастирски Ливади, София - Светлая квартира с двумя спальнями и двумя ванными комнатами в отличной локации
Новое жильё с южной ориентацией и панорамным видом на Витошу и Копитото
Продажа
Двухкомнатная квартира по акционной цене в районе Манастирски ливади г. София , кв. «Манастирски Ливади» Новое жильё с южной ориентацией и панорамным видом на Витошу и Копитото Двухкомнатная квартира по акционной цене в районе Манастирски ливади - Новое жильё с южной ориентацией и панорамным видом на Витошу и Копитото
Премиум качество, функциональная планировка и отличное расположение
Продажа -6%
Люкс
Трёхкомнатная квартира в современном жилом доме в кв. Манастирски ливади г. София , кв. «Манастирски Ливади» Премиум качество, функциональная планировка и отличное расположение Трёхкомнатная квартира в современном жилом доме в кв. Манастирски ливади - Премиум качество, функциональная планировка и отличное расположение
Парковочные места в здании с Актом 16, контролируемым доступом и престижным расположением рядом с Amur Residence
Аренда
Наружные парковочные места в аренду в районе Манастирски ливади – Запад г. София , кв. «Манастирски Ливади» Парковочные места в здании с Актом 16, контролируемым доступом и престижным расположением рядом с Amur Residence Наружные парковочные места в аренду в районе Манастирски ливади – Запад - Парковочные места в здании с Актом 16, контролируемым доступом и престижным расположением рядом с Amur Residence
Современная архитектура, надёжный застройщик и отличное расположение
Продажа
Южная двухкомнатная квартира с уникальным видом на Копитото – Манастирски Ливади г. София , кв. «Манастирски Ливади» Современная архитектура, надёжный застройщик и отличное расположение Южная двухкомнатная квартира с уникальным видом на Копитото – Манастирски Ливади - Современная архитектура, надёжный застройщик и отличное расположение
Современная архитектура, проверенный инвестор и отличная локация на юге Софии
Продажа
Люкс
Жилой проект высокого класса в районе Манастирски ливади – престиж, комфорт и современное видение г. София , кв. «Манастирски Ливади» Современная архитектура, проверенный инвестор и отличная локация на юге Софии Жилой проект высокого класса в районе Манастирски ливади – престиж, комфорт и современное видение - Современная архитектура, проверенный инвестор и отличная локация на юге Софии
Смотреть все

Еще объекты недвижимости в г. София

Новое жильё с тремя спальнями, кабинетом и юго-западной ориентацией в небольшом бутик-здании
Продажа
лучшее предложение
Просторная четырёхкомнатная квартира с двором и парковочным местом в районе Бояна г. София , кв. «Бояна» Новое жильё с тремя спальнями, кабинетом и юго-западной ориентацией в небольшом бутик-здании Просторная четырёхкомнатная квартира с двором и парковочным местом в районе Бояна - Новое жильё с тремя спальнями, кабинетом и юго-западной ориентацией в небольшом бутик-здании
Уникальный жилой комплекс, воссоздающий стиль и атмосферу знаменитого парка Central Park в Нью-Йорке. Самый продаваемый комплекс в 2022, 2023, 2024 и 2025 годах!
Продажа
эксклюзивноХит продаж
Central Park – 7 зданий с парком площадью 12 декара. Здания А, Б и В получили Акт 16! г. София , кв. «Банишора» Уникальный жилой комплекс, воссоздающий стиль и атмосферу знаменитого парка Central Park в Нью-Йорке. Самый продаваемый комплекс в 2022, 2023, 2024 и 2025 годах! Central Park – 7 зданий с парком площадью 12 декара. Здания А, Б и В получили Акт 16! - Уникальный жилой комплекс, воссоздающий стиль и атмосферу знаменитого парка Central Park в Нью-Йорке. Самый продаваемый комплекс в 2022, 2023, 2024 и 2025 годах!
от 185 874
(€/кв.м. 2 200 - €/кв.м. 2 800)Площадь: 71.49 - 187.57 кв.м.
Иван Крумов Риэлтор, София - Центральный
Роскошный комплекс с панорамными видами, топовой локацией и впечатляющим силуэтом, расположенный между городской динамикой и горами.
Продажа
эксклюзивноХит продаж Люкс
SKY TOWERS by AMur — Новый архитектурный символ Софии г. София , кв. «Манастирски Ливади» Роскошный комплекс с панорамными видами, топовой локацией и впечатляющим силуэтом, расположенный между городской динамикой и горами. SKY TOWERS by AMur — Новый архитектурный символ Софии - Роскошный комплекс с панорамными видами, топовой локацией и впечатляющим силуэтом, расположенный между городской динамикой и горами.
Здание, объединяющее городскую динамику и близость к природе
Продажа
эксклюзивно Люкс
Synera Residence — новые квартиры в р-не Манастирски Ливади г. София , кв. «Манастирски Ливади» Здание, объединяющее городскую динамику и близость к природе Synera Residence — новые квартиры в р-не Манастирски Ливади - Здание, объединяющее городскую динамику и близость к природе
от 130 000
(€/кв.м. 2 492 - €/кв.м. 3 382)Площадь: 52.17 - 208.03 кв.м.
Даниела Тотева Риэлтор, София - Центральный
Современная архитектура, отличное расположение и гибкие условия оплаты
Продажа
эксклюзивно Люкс
Corner Park – новый жилой комплекс в Софии, район Сухая река г. София , кв. «Сухата Река» Современная архитектура, отличное расположение и гибкие условия оплаты Corner Park – новый жилой комплекс в Софии, район Сухая река - Современная архитектура, отличное расположение и гибкие условия оплаты
от 152 820
(€/кв.м. 1 850 - €/кв.м. 2 500)Площадь: 67.92 - 249.28 кв.м.
Иван Каменов Старший консультант, Центральный
Современный комфорт и инвестиционная безопасность в сердце Малинова долина
Продажа
эксклюзивно
Стильный новый проект в Малинова долина – современное жилье в формирующейся приятной жилой зоне г. София , кв. «Малинова Долина» Современный комфорт и инвестиционная безопасность в сердце Малинова долина Стильный новый проект в Малинова долина – современное жилье в формирующейся приятной жилой зоне - Современный комфорт и инвестиционная безопасность в сердце Малинова долина
Последние предложения в новом здании с Актом 15 в кв. Малинова долина
Продажа
эксклюзивноХит продаж
Квартиры с одной и двумя спальнями рядом с НСА г. София , кв. «Малинова Долина» Последние предложения в новом здании с Актом 15 в кв. Малинова долина Квартиры с одной и двумя спальнями рядом с НСА - Последние предложения в новом здании с Актом 15 в кв. Малинова долина
от 176 400
(€/кв.м. 1 756 - €/кв.м. 2 500)Площадь: 70.56 - 113.03 кв.м.
Магдалена Цоклинова Риэлтор , Центральный
Квартиры с 1, 2 или 3 спальнями в элитном 9-этажном здании
Продажа
Резиденции с центральным расположением на бул. Сливница с Акт 14 г. София , «Центр» Квартиры с 1, 2 или 3 спальнями в элитном 9-этажном здании Резиденции с центральным расположением на бул. Сливница с Акт 14 - Квартиры с 1, 2 или 3 спальнями в элитном 9-этажном здании
от 133 656
(€/кв.м. 2 550 - €/кв.м. 3 180)Площадь: 42.03 - 170.01 кв.м.
Иванка Стойкова Риэлтор / Партнер, София - Бъкстон
Квартиры с 2 или 3 спальнями рядом с Витошей и с удобным сообщением с центром столицы
Продажа
Новое здание всего с 16 квартирами в кв. Манастирски Ливади г. София , кв. «Манастирски Ливади» Квартиры с 2 или 3 спальнями рядом с Витошей и с удобным сообщением с центром столицы Новое здание всего с 16 квартирами в кв. Манастирски Ливади - Квартиры с 2 или 3 спальнями рядом с Витошей и с удобным сообщением с центром столицы
2- и 3-комнатные квартиры, качественное строительство
Продажа
эксклюзивно
Элитный городской комплекс из двух корпусов Green View Apartments в районе Княжево г. София , кв. «Княжево» 2- и 3-комнатные квартиры, качественное строительство Элитный городской комплекс из двух корпусов Green View Apartments в районе Княжево - 2- и 3-комнатные квартиры, качественное строительство
от 150 000
(€/кв.м. 1 897 - €/кв.м. 3 400)Площадь: 68.07 - 268.82 кв.м.
Иванка Стойкова Риэлтор / Партнер, София - Бъкстон
Эксклюзивный жилой комплекс в 2 км от трасс горного курорта Витоша
Продажа
эксклюзивноХит продаж
Витоша Вью / Vitosha View - знаковый комплекс в Софии г. София , кв. «Крыстова Вада» Эксклюзивный жилой комплекс в 2 км от трасс горного курорта Витоша Витоша Вью / Vitosha View - знаковый комплекс в Софии - Эксклюзивный жилой комплекс в 2 км от трасс горного курорта Витоша
Последние апартаменты в комплексе с зелеными насаждениями и полученным Актом 16
Продажа
Люкс
Reina Sofia Residence - элитное жилье энергетического класса А рядом с Софийским зоопарком и Охотничьим парком г. София , кв. «Крыстова Вада» Последние апартаменты в комплексе с зелеными насаждениями и полученным Актом 16 Reina Sofia Residence - элитное жилье энергетического класса А рядом с Софийским зоопарком и Охотничьим парком - Последние апартаменты в комплексе с зелеными насаждениями и полученным Актом 16
Новые апартаменты с отличным расположением у подножия Витоши
Продажа
Жилой дом из двух секций рядом с Национальной академией спорта г. София , кв. «Малинова Долина» Новые апартаменты с отличным расположением у подножия Витоши Жилой дом из двух секций рядом с Национальной академией спорта - Новые апартаменты с отличным расположением у подножия Витоши
от 120 395
(€/кв.м. 2 350 - €/кв.м. 2 560)Площадь: 49.75 - 160.33 кв.м.
Иванка Стойкова Риэлтор / Партнер, София - Бъкстон
Современные квартиры с просторной планировкой, качественным строительством
Продажа
эксклюзивноХит продаж
Малинова Долина, София Апартаментный комплекс - на стадии строительства г. София , кв. «Малинова Долина» Современные квартиры с просторной планировкой, качественным строительством Малинова Долина, София Апартаментный комплекс - на стадии строительства - Современные квартиры с просторной планировкой, качественным строительством
от 310 000
(€/кв.м. 1 863 - €/кв.м. 2 042)Площадь: 151.80 - 191.62 кв.м.
Магдалена Цоклинова Риэлтор , Центральный
Квартиры с 1, 2 и 3 спальнями в новом комплексе в р-не Младост 4
Продажа
Новостройка рядом с бизнес-парком «София» и метро г. София , кв. «Младост 4» Квартиры с 1, 2 и 3 спальнями в новом комплексе в р-не Младост 4 Новостройка рядом с бизнес-парком «София» и метро - Квартиры с 1, 2 и 3 спальнями в новом комплексе в р-не Младост 4
от 219 678
(€/кв.м. 2 350 - €/кв.м. 2 705)Площадь: 87.80 - 202.38 кв.м.
Николай Попов Риэлтор, София - Центральный
Престижная квартира с 2 парковочными местами в цене аренды
Аренда
новинка Люкс
Роскошная трехкомнатная квартира в Лозенец г. София , кв. «Лозенец» Престижная квартира с 2 парковочными местами в цене аренды Роскошная трехкомнатная квартира в Лозенец - Престижная квартира с 2 парковочными местами в цене аренды
Современное городское жилье рядом с Охотничьим парком, с удобным доступом к станции метро Витоша
Продажа
новинка Люкс
Роскошный комплекс из 13 зданий с 30 акрами зеленых насаждений, 9 игровыми площадками и 18 торговыми точками г. София , кв. «Хладилника» Современное городское жилье рядом с Охотничьим парком, с удобным доступом к станции метро Витоша Роскошный комплекс из 13 зданий с 30 акрами зеленых насаждений, 9 игровыми площадками и 18 торговыми точками - Современное городское жилье рядом с Охотничьим парком, с удобным доступом к станции метро Витоша
от 280 000
(€/кв.м. 2 492 - €/кв.м. 5 866)Площадь: 76.08 - 308.09 кв.м.
Магдалена Цоклинова Риэлтор , Центральный
Роскошная жизнь в самом сердце Софии с превосходными удобствами.
Продажа
новинка Люкс
Продажа роскошных апартаментов в квартале Хаджи Димитар в Софии г. София , кв. «Хаджи Димитр» Роскошная жизнь в самом сердце Софии с превосходными удобствами. Продажа роскошных апартаментов в квартале Хаджи Димитар в Софии - Роскошная жизнь в самом сердце Софии с превосходными удобствами.
от 187 000
(€/кв.м. 2 560 - €/кв.м. 2 721)Площадь: 68.72 - 157.03 кв.м.
Николай Попов Риэлтор, София - Центральный
Полностью меблированная квартира в аренду в г. София
Аренда
новинка Люкс
Квартира в аренду с двумя парковочными местами в Манастирски Ливади г. София , кв. «Манастирски Ливади» Полностью меблированная квартира в аренду в г. София Квартира в аренду с двумя парковочными местами в Манастирски Ливади - Полностью меблированная квартира в аренду в г. София
Высококлассное здание в 350 м от метро и в пешей доступности от идеального центра столицы
Продажа
новинка Люкс
Просторная четырехкомнатная квартира в районе Хаджи Димитар г. София , кв. «Хаджи Димитр» Высококлассное здание в 350 м от метро и в пешей доступности от идеального центра столицы Просторная четырехкомнатная квартира в районе Хаджи Димитар - Высококлассное здание в 350 м от метро и в пешей доступности от идеального центра столицы
Современная двухкомнатная квартира с новой мебелью и бытовой техникой рядом с бульваром Черни Врах
Аренда
новинка Люкс
Панорамная квартира с подземным парковочным местом в районе Крастова Вадафия г. София , кв. «Крыстова Вада» Современная двухкомнатная квартира с новой мебелью и бытовой техникой рядом с бульваром Черни Врах Панорамная квартира с подземным парковочным местом в районе Крастова Вадафия - Современная двухкомнатная квартира с новой мебелью и бытовой техникой рядом с бульваром Черни Врах
Светлая и функциональная квартира рядом с Северным парком
Продажа
новинка эксклюзивно лучшее предложение
Просторная трёхкомнатная квартира в районе Свобода г. София , кв. «Свобода» Светлая и функциональная квартира рядом с Северным парком Просторная трёхкомнатная квартира в районе Свобода - Светлая и функциональная квартира рядом с Северным парком
Современная квартира в престижном районе рядом с Paradise Center
Продажа
новинка Люкс
Просторный мезонет с 3 спальнями и видом на Витошу г. София , кв. «Хладилника» Современная квартира в престижном районе рядом с Paradise Center Просторный мезонет с 3 спальнями и видом на Витошу - Современная квартира в престижном районе рядом с Paradise Center
Участок с электричеством, водой и отличными параметрами для строительства
Продажа
новинка эксклюзивно
Участок для семейных домов в местности «Смырдана», район Люлин г. София , кв. «Люлин 6» Участок с электричеством, водой и отличными параметрами для строительства Участок для семейных домов в местности «Смырдана», район Люлин - Участок с электричеством, водой и отличными параметрами для строительства
Новый проект у подножия Витоши с удобным доступом к метро
Продажа
новинка
Современный закрытый жилой комплекс в районе Овча Купел 2 г. София , кв. «Овча Купел 2» Новый проект у подножия Витоши с удобным доступом к метро Современный закрытый жилой комплекс в районе Овча Купел 2 - Новый проект у подножия Витоши с удобным доступом к метро
от 113 000
(€/кв.м. 1 614 - €/кв.м. 1 916)Площадь: 62.33 - 102.23 кв.м.
Иванка Стойкова Риэлтор / Партнер, София - Бъкстон
Смотреть все

Посмотрите еще:

ОТПРАВЬТЕ ЗАПРОС