0
Здравствуйте,
Любимые предложения (0)
Сохраненные поиски
Специально для вас
Уведомления
Подписки
Настройки
Выход
Закрыть

Удобства района

    ТРАНСПОРТ

    УЧЕБНЫЕ ЗАВЕДЕНИЯ

  • Детский сад "Детска градина "Веселка"" 2.4 км
  • Детский сад 4.9 км
  • Школа "Бивше училище" 2.1 км
  • Школа "ОУ "Св.Св.Кирил и Методий"" 2.3 км
  • МЕДИЦИНСКИЕ УЧРЕЖДЕНИЯ

  • Больница "МБАЛ "Света Екатерина"" 5.3 км
  • Больница "Хигия" 6.4 км
  • Медицинский центр "Bodimed" 6.4 км
  • ШОПИНГ

  • Продуктовый магазин 2.1 км
  • Супермаркет "Lidl" 5.5 км
  • Супермаркет "Тарита" 5.6 км
  • Рынок 6.1 км
  • Пекарня 8.0 км
  • Зоо магазин "Магазин Акваристика и Домашни Животни" 6.1 км
  • Торгово-развлекательный центр 6.2 км
  • УСЛУГИ

  • Банк "Банка ДСК" 6.4 км
  • Банк "ОББ" 6.4 км
  • Аптека "Аптека 37.7" 5.9 км
  • Почта "ПТТС 4444" 2.8 км
  • Почта "Профи" 6.0 км
  • Парикмахер "Валжони ЕООД - Lujo Hari & Beauty" 6.3 км
  • Салон красоты 2.0 км
  • Ветеринар "Д-р Шопов" 6.6 км
  • ЗАВЕДЕНИЯ

  • Ресторан 2.1 км
  • Ресторан 2.3 км
  • Кафе "Криспи" 5.8 км
  • Бар "Пивоварна Ромбус" 3.7 км
  • Дискотека "Caf" 5.2 км
  • Казино "Alphawin" 6.8 км
  • СПОРТ И СВОБОДНОЕ ВРЕМЯ

  • Фитнес "Gladiator Fitness" 4.6 км
  • Плавательный бассейн 6.4 км
  • Спортивные площадки 15.7 км
  • Теннисный корт 5.1 км
  • Театр "Куклен тетър "К. Величков"" 5.3 км
  • Театр "Константин Величков" 6.2 км
  • Кино 6.2 км
  • Музей "Къща-музей "Станислав Доспевски"" 6.7 км
  • Музей "Археологически музей "Проф. Мечислав Домарадски"" 15.7 км
  • ПРИРОДА И РАЗВЛЕЧЕНИЯ

  • Парк 2.8 км
  • Сад 9.6 км
  • АВТОМОБИЛЬНЫЕ УСЛУГИ

  • Парковка 2.1 км
  • Бензозаправочная станция "Shell" 1.3 км
  • Зарядная станция "FINES Големаново" 2.5 км
  • Мойка автомобилей 6.6 км
  • Автосервис 336 м (5 мин.)
  • ЗДАНИЯ И ИНСТИТУЦИИ

  • Суд "Районен съд" 5.9 км
  • Библиотека "Библиотека "Н. Фурнаджиев"" 6.6 км
  • Церковь 5.3 км
  • Монастырь "Калугеровски манастир „Свети Никола“" 17.0 км

ОТПРАВЬТЕ ЗАПРОС

219 420
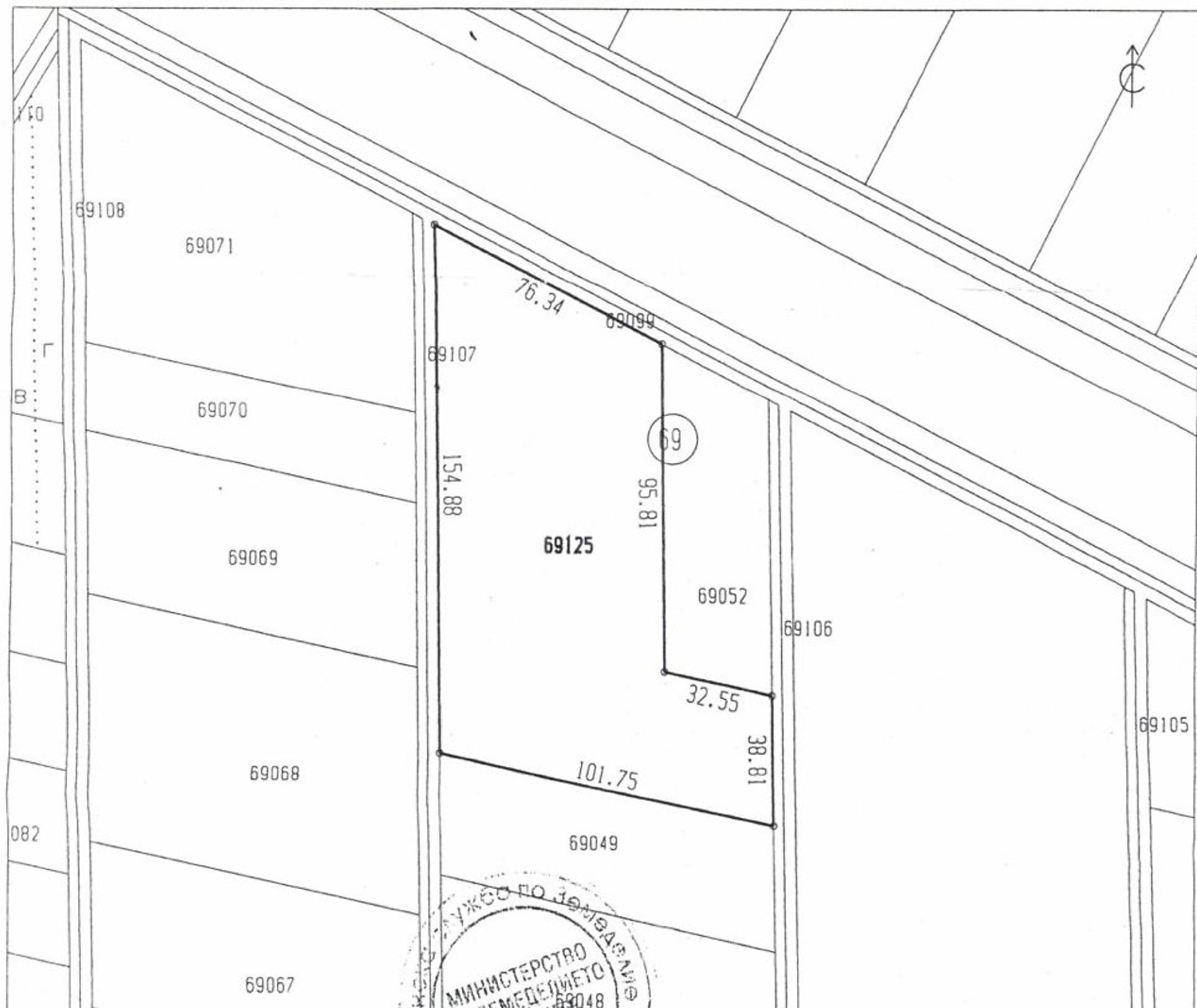
(20 €/м2) Площадь: 10 971.00 м2   
  • руб.
  • $
Платежи с карты и PayPal.
Располагаем онлайн ПОС терминалом
Агенству причитается комиссия
ПОДРОБНАЯ ИНФОРМАЦИЯ Реф. номер: Plv 89449

При звонке, пожалуйста, указывайте номер объекта недвижимости.

Петр Петаларев

Петр Петаларев

Офис Пловдив
ул. Петко Каравелов 26, эт. 4, офис 20
г. Пловдив, Болгария, 4000
Все объекты (97)

ОТПРАВЬТЕ ЗАПРОС

Еще объекты недвижимости Вблизи г. Пазарджик

Действующий комплекс с производственными помещениями, лагуной для навозной жижи и проектом модернизации
Продажа
Свиноферма с полной инфраструктурой и земельными участками – община Пазарджик Вблизи г. Пазарджик Действующий комплекс с производственными помещениями, лагуной для навозной жижи и проектом модернизации Свиноферма с полной инфраструктурой и земельными участками – община Пазарджик - Действующий комплекс с производственными помещениями, лагуной для навозной жижи и проектом модернизации
Участок на асфальтовой дороге с коммуникациями на границе
Продажа
Участок в регуляции для строительства дома в селе Братаница Участок 1506 кв.м на асфальтовой дороге с коммуникациями на границе Предлагается на продажу урегулированный земельный участок площадью 1506 кв.м, расположенный в селе Братаница, всего в 8 км от Вблизи г. Пазарджик Участок на асфальтовой дороге с коммуникациями на границе Участок в регуляции для строительства дома в селе Братаница Участок 1506 кв.м на асфальтовой дороге с коммуникациями на границе Предлагается на продажу урегулированный земельный участок площадью 1506 кв.м, расположенный в селе Братаница, всего в 8 км от - Участок на асфальтовой дороге с коммуникациями на границе
Земельные участки с отличным инвестиционным потенциалом, выходящие на трассу Тракия
Продажа
Сельскохозяйственная недвижимость в деревне Гелеманово, Пазарджик Вблизи г. Пазарджик Земельные участки с отличным инвестиционным потенциалом, выходящие на трассу Тракия Сельскохозяйственная недвижимость в деревне Гелеманово, Пазарджик - Земельные участки с отличным инвестиционным потенциалом, выходящие на трассу Тракия
Полностью оборудованное коммерческое помещение
Продажа
лучшее предложение
Действующее бистро с озеленённым двором и отличным расположением Вблизи г. Пазарджик Полностью оборудованное коммерческое помещение Действующее бистро с озеленённым двором и отличным расположением - Полностью оборудованное коммерческое помещение
Недвижимость с потенциалом в тихой зоне на окраине села, с удобным доступом по асфальтированной дороге
Продажа
Участок с небольшим домом, гаражом и скважиной в селе Лозен, рядом с Пазарджиком Вблизи г. Пазарджик Недвижимость с потенциалом в тихой зоне на окраине села, с удобным доступом по асфальтированной дороге Участок с небольшим домом, гаражом и скважиной в селе Лозен, рядом с Пазарджиком - Недвижимость с потенциалом в тихой зоне на окраине села, с удобным доступом по асфальтированной дороге
Пустой регулируемый участок рядом с трассой Тракия
Продажа -23%
Большой участок для инвестиций в 7 км от г. Пазарджик Вблизи г. Пазарджик Пустой регулируемый участок рядом с трассой Тракия Большой участок для инвестиций в 7 км от г. Пазарджик - Пустой регулируемый участок рядом с трассой Тракия
Современный дом с 3 спальнями, двумя парковочными местами и видом на Родопы.
Продажа
эксклюзивно Люкс
Роскошный дом с прекрасным садом и фитнесом в селе Црънча Вблизи г. Пазарджик Современный дом с 3 спальнями, двумя парковочными местами и видом на Родопы. Роскошный дом с прекрасным садом и фитнесом в селе Црънча - Современный дом с 3 спальнями, двумя парковочными местами и видом на Родопы.
475 000
(€/м2 1 605)Площадь: 296.00 м2
Петр Петаларев Старший риэлтор, Пловдив
Отличная возможность для строительства или инвестиций рядом с Пазарджиком
Продажа
Участок под застройку с панорамным видом на Родопы Вблизи г. Пазарджик Отличная возможность для строительства или инвестиций рядом с Пазарджиком Участок под застройку с панорамным видом на Родопы - Отличная возможность для строительства или инвестиций рядом с Пазарджиком
Объект подходит для производства, упаковки, цехов, сервисного обслуживания, склада, логистической базы, агропочты и т. д.
Продажа
Производственный комплекс с административным зданием и оборудованием Вблизи г. Пазарджик Объект подходит для производства, упаковки, цехов, сервисного обслуживания, склада, логистической базы, агропочты и т. д. Производственный комплекс с административным зданием и оборудованием - Объект подходит для производства, упаковки, цехов, сервисного обслуживания, склада, логистической базы, агропочты и т. д.
Участок, подходящий для строительства односемейного дома, в 18 км от Пазарджик
Продажа
Земельный участок под застройку в селе Виноградец – тишина и отличное расположение Вблизи г. Пазарджик Участок, подходящий для строительства односемейного дома, в 18 км от Пазарджик Земельный участок под застройку в селе Виноградец – тишина и отличное расположение - Участок, подходящий для строительства односемейного дома, в 18 км от Пазарджик
Готовый бизнес с отличным расположением и дополнительным жилым потенциалом
Продажа
эксклюзивно
Действующий ресторан с жилой частью и двором в 8 км от г. Пазарджик Вблизи г. Пазарджик Готовый бизнес с отличным расположением и дополнительным жилым потенциалом Действующий ресторан с жилой частью и двором в 8 км от г. Пазарджик - Готовый бизнес с отличным расположением и дополнительным жилым потенциалом
Двухэтажный дом в 25 км от Пазарджика и в 10 км от автомагистрали «Тракия»
Продажа
Дом с двором и прекрасным видом в живописном селе в Средна гора Вблизи г. Пазарджик Двухэтажный дом в 25 км от Пазарджика и в 10 км от автомагистрали «Тракия» Дом с двором и прекрасным видом в живописном селе в Средна гора - Двухэтажный дом в 25 км от Пазарджика и в 10 км от автомагистрали «Тракия»
55 000 45 000
(€/м2 375)Площадь: 120.00 м2
Петр Петаларев Старший риэлтор, Пловдив
Полностью готовый дом с сауной, фитнесом, локальным отоплением и отличным круглогодичным доступом
Продажа
Современный дом с двумя постройками и ухоженным садом недалеко от Пазарджика Вблизи г. Пазарджик Полностью готовый дом с сауной, фитнесом, локальным отоплением и отличным круглогодичным доступом Современный дом с двумя постройками и ухоженным садом недалеко от Пазарджика - Полностью готовый дом с сауной, фитнесом, локальным отоплением и отличным круглогодичным доступом
Продажа отелей, Пазарджик
Продажа
Гостиница, Отель вблизи г. Пазарджик Вблизи г. Пазарджик Продажа отелей, Пазарджик Гостиница, Отель вблизи г. Пазарджик - Продажа отелей, Пазарджик
Продажа домов, Пазарджик
Продажа
Дом вблизи г. Пазарджик Вблизи г. Пазарджик , Магистрала Тракия Продажа домов, Пазарджик Дом вблизи г. Пазарджик - Продажа домов, Пазарджик
35 000
(€/м2 583)Площадь: 60.00 м2
Стефан Моллов Риэлтор, Пловдив
Сельская недвижимость с красивым видом в 15 км от г. Пазарджик
Продажа
Двухэтажный дом под отделку с двором и гаражом Вблизи г. Пазарджик Сельская недвижимость с красивым видом в 15 км от г. Пазарджик Двухэтажный дом под отделку с двором и гаражом - Сельская недвижимость с красивым видом в 15 км от г. Пазарджик
57 000 49 990
(€/м2 454)Площадь: 110.00 м2
Петр Петаларев Старший риэлтор, Пловдив
Сельская недвижимость для ремонта рядом с трассой Тракия
Продажа
Одноэтажный дом с двором в 12 км от Пазарджика Вблизи г. Пазарджик Сельская недвижимость для ремонта рядом с трассой Тракия Одноэтажный дом с двором в 12 км от Пазарджика - Сельская недвижимость для ремонта рядом с трассой Тракия
Недвижимость с большим участком и высоким инвестиционным потенциалом
Продажа
Недвижимость с потенциалом для инвестиций в центре села рядом с г. Пазарджик Вблизи г. Пазарджик , язовир Въча Недвижимость с большим участком и высоким инвестиционным потенциалом Недвижимость с потенциалом для инвестиций в центре села рядом с г. Пазарджик - Недвижимость с большим участком и высоким инвестиционным потенциалом
320 000
(€/м2 213)Площадь: 1 500.00 м2
Стефан Моллов Риэлтор, Пловдив
Производственное здание под склад с офисной частью
Продажа
Промышленная стальная конструкция вблизи г. Пазарджик Вблизи г. Пазарджик Производственное здание под склад с офисной частью Промышленная стальная конструкция вблизи г. Пазарджик - Производственное здание под склад с офисной частью
Смотреть все

Посмотрите еще:

ОТПРАВЬТЕ ЗАПРОС