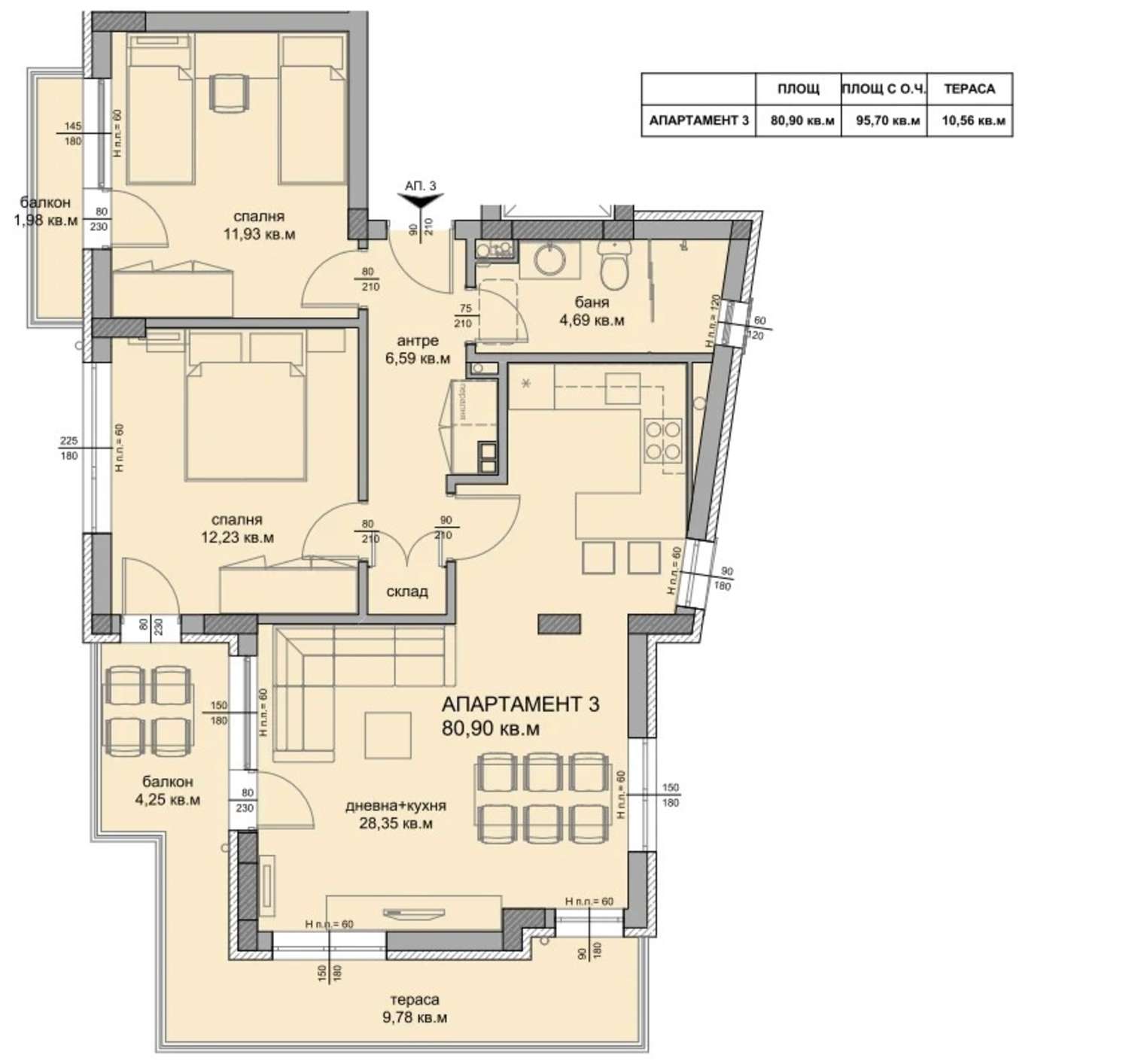
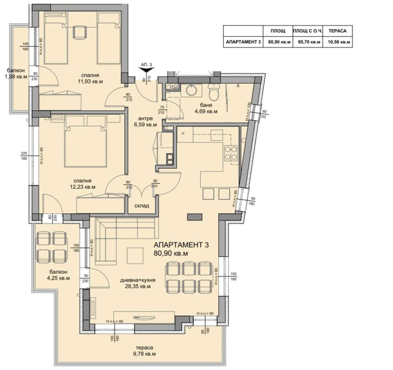
квартира  3 , общая площадь 107.00 кв.м. (жилая площадь 80.90 кв.м. + общие части 15.54 кв.м.), плюс терраса площадью 10.56 кв.м. - .
Выберите свой новый дом с одной или двумя спальнями в новом жилом комплексе, состоящем из трех зданий с Актом 16, построенном на участке 2500 м2 с чрезвычайно тихим и спокойным расположением в Кв. Недвижимость расположена в очень тихом и спокойном районе, в 150 м от пляжа, рядом с начальной школой, детским садом, остановками общественного транспорта, продуктовыми магазинами, кафе, ресторанами, ресторанами быстрого питания, медицинским центром, магазинами модной одежды и всеми городскими удобствами.  
Проект сочетает в себе преимущества закрытого сообщества без навязанной платы за обслуживание. Здания расположены таким образом, что все дома максимально освещены солнцем. Каждый из них имеет четыре фасада с основными видами на юг, восток и запад. На все этажи можно подняться на бесшумных лифтах с автоматическими дверями.
В строительстве использованы материалы высочайшего класса:
• Железобетонная конструкция
• Кладка из многоячеистых керамических блоков
• Наружная теплоизоляция плитами толщиной 10 см с повышенной плотностью 15-18 кг/м2 для улучшения теплоизоляционных свойств
• Штукатурка ведущей марки "Baumit", с мягкими, нейтральными и приятными цветами
• Качественные 6-камерные немецкие оконные рамы ПВХ марки "Aluplast" с увеличенной толщиной рамы 8,5 см с немецкой фурнитурой "Rotto" и энергосберегающими стеклопакетами 4 сезона. Сочетание качественной столярки и надежной теплоизоляции гарантирует отличный климатический комфорт и низкие счета за электричество.
• Красивые антикоррозийные балконные перила из алюминия и стекла
• Роскошные общие зоны с полом из натурального гранита
Квартиры оформлены в соответствии с BDS:
• Оштукатуренные стены и потолки
• Пол - ровная цементная стяжка
• Стены ванной комнаты - облицовочная цементная штукатурка
• Террасы - морозостойкая керамогранитная плитка
• Выполненная электропроводка с предохранительными щитками
• Сантехническая разводка в соответствии с проектом с установленным индивидуальным счетчиком воды
• Установлена бронированная входная дверь с двумя замками
• Облицовка квартир первого этажа красивым натуральным камнем - травертином. Квартиры на первом этаже имеют собственный двор с богатым ландшафтным дизайном
Есть возможность завершения ремонта силами инвестора, обсуждается.
Имеются парковочные места на территории комплекса и в подземном паркинге, которые приобретаются отдельно.
Район Сарафово расположен на берегу моря и соединен велосипедными дорожками и пешеходной зоной с морским садом Бургаса. Совсем рядом с Сарафово находятся озера со знаменитой целебной бургасской щелочью. Прекрасные пляжи, круглогодичный мягкий черноморский климат, тишина и покой делают этот район желанным местом для жизни и отдыха. На автомобиле расстояние до центра города составляет 10 мин.
Вид недвижимости
Мы можем организовать просмотр недвижимости в удобное для вас время. Для этого свяжитесь с брокером, ответственным за данное предложение, и сообщите ему, когда вы хотели бы провести осмотр.
Резервирование недвижимости
Объект может быть зарезервирован и снят с продажи с внесением залога, после чего прекращаются просмотры с другими покупателями и начинается подготовка документов для заключения предварительного и окончательного контракта. Пожалуйста, свяжитесь с ответственным брокером по данному объекту недвижимости для получения подробной информации о процедуре покупки и порядке оплаты.
									
									
								- Описание
 - Характеристики
 - Галерея
 - Местоположение
 - Прайс-лист
 
Характеристики
										
											Тип недвижимости										
										
											Трехкомнатная квартира										
									
									
										
											Реф. номер										
										
											BS 86006										
									
									
										
											Площадь										
										
											107.00 м2 (жилая площадь: 91.46 м2 плюс общие части: 15.54 м2) еще
										
									
																			
											
												Спальни											
											
												2											
										
																			
										
											Состояние										
										
											болгарский государственный стандарт										
									
									
																			
											
												Этаж											
											
												1												 из 4											
										
																				
											
												Лифт											
											
												да											
										
																				
											
												Меблировка											
											
												Немеблированная											
										
																				
											
												Вид строительства											
											
												Новостройки											
										
																					
												
													Год строительства												
												
													2024												
											
																					
											
												Плата за обслуживание											
											
												нет											
										
																				
											
												Акт 16											
											
												да											
										
																		
									Новостройки с актом 16 в кв. Сарафово дополнительная информация:
																			
											
											Планы
										
										
																						
													
													Планы
												
																							
											
												
												Прайс-лист
											
											
												
													
														Качество воздуха													
												
																					
										Фото с воздуха
									
									
																		
										
										Генплан
									
									
									
																		
										360° градусов
									
									
									
									
									
										
										Инфо пакет
									
									
							Референтный номер: BS 86006
Местоположение
г. Бургас, кв.«Сарафово»- 150 м до пляжа
 
Удобства района
- Аэропорт "Летище Бургас" 1.0 км (13 мин.)
 - Детский сад "ЦДГ N19 “Ален мак”" 774 м (10 мин.)
 - Школа "ОУ "Христо Ботев"" 445 м (6 мин.)
 - Продуктовый магазин "Arito" 363 м (5 мин.)
 - Супермаркет 245 м (3 мин.)
 - Супермаркет "Dextyr" 476 м (6 мин.)
 - Банк "D Commerce Bank" 583 м (8 мин.)
 - Банкомат "D Commerce Bank" 583 м (8 мин.)
 - Аптека 488 м (6 мин.)
 - Ресторан "Кедъра" 551 м (7 мин.)
 - Пляж 150 м (2 мин.)
 - Плавательный бассейн 146 м (2 мин.)
 - Музей "Авиационнен музей" 923 м (12 мин.)
 - Парк 223 м (3 мин.)
 - Парковка 273 м (4 мин.)
 
ТРАНСПОРТ
УЧЕБНЫЕ ЗАВЕДЕНИЯ
ШОПИНГ
УСЛУГИ
ЗАВЕДЕНИЯ
СПОРТ И СВОБОДНОЕ ВРЕМЯ
ПРИРОДА И РАЗВЛЕЧЕНИЯ
АВТОМОБИЛЬНЫЕ УСЛУГИ
ОТПРАВЬТЕ ЗАПРОС
€ 160 000
- €
 - руб.
 - $
 
															Платежи с карты и PayPal. 
Располагаем онлайн ПОС терминалом
													Располагаем онлайн ПОС терминалом
																Комплекс сдан!
																
																	Дата сдачи: 01.11.2024 г																
															
														Агенству причитается комиссия
													
												
												
																									
														 Прайс-лист 
													
												
											
											
																																												   */ ?>
											
											
													ПОДРОБНАЯ ИНФОРМАЦИЯ
													Реф. номер: BS 86006
													
												
											При звонке, пожалуйста, указывайте номер объекта недвижимости.
																							 										
														
																Объектов недвижимости в этом комплексе															
														
																25															
															
																объектов недвижимости															
														
																15															
															
																свободных															
														
																8															
															
																проданных															
														
																2															
															
																забронированных															
														ОТПРАВЬТЕ ЗАПРОС
Еще объекты недвижимости в в этом комплексе
																
																	Продажа
																																																		
																
																
																	Трехкомнатная квартира в Новостройки с актом 16 в кв. Сарафово																
																
																	г. Бургас																	, кв. «Сарафово»																
																
																	Продажа — трехкомнатная квартира																
																
																																	
															
														
																
																	Продажа
																																																		
																
																
																	Двухкомнатная квартира в Новостройки с актом 16 в кв. Сарафово																
																
																	г. Бургас																	, кв. «Сарафово»																
																
																	Продажа — двухкомнатная квартира																
																
																																	
															
														
																
																	Продажа
																																																		
																
																
																	Трехкомнатная квартира в Новостройки с актом 16 в кв. Сарафово																
																
																	г. Бургас																	, кв. «Сарафово»																
																
																	Продажа — трехкомнатная квартира																
																
																																	
															
														
																
																	Продажа
																																																		
																
																
																	Трехкомнатная квартира в Новостройки с актом 16 в кв. Сарафово																
																
																	г. Бургас																	, кв. «Сарафово»																
																
																	Продажа — трехкомнатная квартира																
																
																																	
															
														
																
																	Продажа
																																																		
																
																
																	Трехкомнатная квартира в Новостройки с актом 16 в кв. Сарафово																
																
																	г. Бургас																	, кв. «Сарафово»																
																
																	Продажа — трехкомнатная квартира																
																
																																	
															
														
																
																	Продажа
																																																		
																
																
																	Двухкомнатная квартира в Новостройки с актом 16 в кв. Сарафово																
																
																	г. Бургас																	, кв. «Сарафово»																
																
																	Продажа — двухкомнатная квартира																
																
																																	
															
														
																
																	Продажа
																																																		
																
																
																	Двухкомнатная квартира в Новостройки с актом 16 в кв. Сарафово																
																
																	г. Бургас																	, кв. «Сарафово»																
																
																	Продажа — двухкомнатная квартира																
																
																																	
															
														
																
																	Продажа
																																																		
																
																
																	Двухкомнатная квартира в Новостройки с актом 16 в кв. Сарафово																
																
																	г. Бургас																	, кв. «Сарафово»																
																
																	Продажа — двухкомнатная квартира																
																
																																	
															
														
																
																	Продажа
																																																		
																
																
																	Двухкомнатная квартира в Новостройки с актом 16 в кв. Сарафово																
																
																	г. Бургас																	, кв. «Сарафово»																
																
																	Продажа — двухкомнатная квартира																
																
																																	
															
														
																
																	Продажа
																																																		
																
																
																	Двухкомнатная квартира в Новостройки с актом 16 в кв. Сарафово																
																
																	г. Бургас																	, кв. «Сарафово»																
																
																	Продажа — двухкомнатная квартира																
																
																																	
															
														
																
																	Продажа
																																																		
																
																
																	Двухкомнатная квартира в Новостройки с актом 16 в кв. Сарафово																
																
																	г. Бургас																	, кв. «Сарафово»																
																
																	Продажа — двухкомнатная квартира																
																
																																	
															
														
																
																	Продажа
																																																		
																
																
																	Двухкомнатная квартира в Новостройки с актом 16 в кв. Сарафово																
																
																	г. Бургас																	, кв. «Сарафово»																
																
																	Продажа — двухкомнатная квартира																
																
																																	
															
														
																
																	Продажа
																																																		
																
																
																	Трехкомнатная квартира в Новостройки с актом 16 в кв. Сарафово																
																
																	г. Бургас																	, кв. «Сарафово»																
																
																	Продажа — трехкомнатная квартира																
																
																																	
															
														
																
																	Продажа
																																																		
																
																
																	Двухкомнатная квартира в Новостройки с актом 16 в кв. Сарафово																
																
																	г. Бургас																	, кв. «Сарафово»																
																
																	Продажа — двухкомнатная квартира																
																
																																	
															
														
																
																	Продажа
																																																		
																
																
																	Двухкомнатная квартира в Новостройки с актом 16 в кв. Сарафово																
																
																	г. Бургас																	, кв. «Сарафово»																
																
																	Продажа — двухкомнатная квартира																
																
																																	
															
														Еще объекты недвижимости в кв. Сарафово
														
															Продажа
																													
														
																															
																	новинка																
																
																																													
															
															
															
															
															
														
																													
														
															Трёхкомнатная квартира с видом на море														
														
															г. Бургас															, кв. «Сарафово»														
														
															Недвижимость в здании с Актом 16 в р-не Сарафово														
														
															Трёхкомнатная квартира с видом на море - Недвижимость в здании с Актом 16 в р-не Сарафово														
													
												
														
															Аренда
																													
														
															
																																													
															
																
																	Люкс																
															
															
															
															
															
														
																													
														
															Двухкомнатная квартира на первой линии у моря в Сарафово														
														
															г. Бургас															, кв. «Сарафово»														
														
															Квартира с мебелью и висом на море в аренду в Бургасе														
														
															Двухкомнатная квартира на первой линии у моря в Сарафово - Квартира с мебелью и висом на море в аренду в Бургасе														
													
												
														
															Продажа
																													
														
														
															Новый строящийся жилой дом в кв. Сарафово														
														
															г. Бургас															, кв. «Сарафово»														
														
															Различные типы современных квартир в 500 м от пляжа														
														
															Новый строящийся жилой дом в кв. Сарафово - Различные типы современных квартир в 500 м от пляжа														
													
												
														
															Продажа
																													
														
														
															Элитный жилой дом с магазинами и детской площадкой в квартале Сарафово														
														
															г. Бургас															, кв. «Сарафово»														
														
															Студии, двухкомнатные и трехкомнатные квартиры в здании без платы за обслуживание!														
														
															Элитный жилой дом с магазинами и детской площадкой в квартале Сарафово - Студии, двухкомнатные и трехкомнатные квартиры в здании без платы за обслуживание!														
													
												
															от € 48 000
														
														
															(€/кв.м. 1 378 - €/кв.м. 1 552)Площадь: 31.41 - 103.08 кв.м. 
															
															
														
														
														
															
																
																	Георги Иванов																
																
																	Риэлтор, Бургас																
															
														
													
														
															Продажа
																													
														
														
															Новый жилой проект с современной архитектурой и отличной локацией у моря														
														
															г. Бургас															, кв. «Сарафово»														
														
															Отличные квартиры в новом здании в кв. Сарафово														
														
															Новый жилой проект с современной архитектурой и отличной локацией у моря - Отличные квартиры в новом здании в кв. Сарафово														
													
												
															от € 123 900
														
														
															(€/кв.м. 690 - €/кв.м. 1 380)Площадь: 103.25 - 185.76 кв.м. 
															
															
														
														
														
															
																
																	Павел Раванов																
																
																	Риэлтор, Бургас																
															
														
													
														
															Продажа
																													
														
														
															Новый построенный жилой комплекс в Сарафово														
														
															г. Бургас															, кв. «Сарафово»														
														
															Последние просторные квартиры элитного строительства без платы за обслуживание														
														
															Новый построенный жилой комплекс в Сарафово - Последние просторные квартиры элитного строительства без платы за обслуживание														
													
												
															от € 75 648
														
														
															(€/кв.м. 1 150 - €/кв.м. 1 200)Площадь: 63.04 - 131.38 кв.м. 
															
															
														
														
														
															
																
																	Павел Раванов																
																
																	Риэлтор, Бургас																
															
														
													
														
															Продажа
																													
														
														
															Двухэтажный дом с участком в районе Лахана														
														
															г. Бургас															, кв. «Сарафово»														
														
															Замечательный дом в закрытом комплексе в квартале Сарафово														
														
															Двухэтажный дом с участком в районе Лахана - Замечательный дом в закрытом комплексе в квартале Сарафово														
													
												
														
															Продажа
																													
														
														
															Элегантный двухэтажный дом в закрытом комплексе в местности «Лахана»														
														
															г. Бургас															, кв. «Сарафово»														
														
															Прекрасный двухэтажный дом между Бургасом и Поморием														
														
															Элегантный двухэтажный дом в закрытом комплексе в местности «Лахана» - Прекрасный двухэтажный дом между Бургасом и Поморием														
													
												
														
															Продажа
																													
														
															
																																													
															
																
																	Люкс																
															ВТОРАЯ ЛИНИЯ
															
															
															
															
														
																													
														
															Отличная трехкомнатная квартира с видом на море в Бургас														
														
															г. Бургас															, кв. «Сарафово»														
														
															Меблированная квартира в стильном жилом доме в престижном районе Сарафово 														
														
															Отличная трехкомнатная квартира с видом на море в Бургас - Меблированная квартира в стильном жилом доме в престижном районе Сарафово 														
													
												
														
															Продажа
																													
														
														
															Новостройка с актом 14 в кв. Сарафово 														
														
															г. Бургас															, кв. «Сарафово»														
														
															Одно- и двухкомнатные квартиры в 300 метрах от пляжа и рядом с комплексом "Атлантис"														
														
															Новостройка с актом 14 в кв. Сарафово  - Одно- и двухкомнатные квартиры в 300 метрах от пляжа и рядом с комплексом "Атлантис"														
													
												
															от € 86 246
														
														
															(€/кв.м. 1 200 - €/кв.м. 1 400)Площадь: 63.96 - 106.78 кв.м. 
															
															
														
														
														
															
																
																	Павел Раванов																
																
																	Риэлтор, Бургас																
															
														
													
														
															Продажа
																													
														
														
															Новые дома с выгодным расположением в районе Лахана														
														
															г. Бургас															, кв. «Сарафово»														
														
															Отдельные двухэтажные дома с частным двором в 300 м от пляжа														
														
															Новые дома с выгодным расположением в районе Лахана - Отдельные двухэтажные дома с частным двором в 300 м от пляжа														
													
												
														
															Продажа
																													
														
															
																																													
															ПЕРВАЯ ЛИНИЯ
															
															
															
															
														
																											
													
														
															Просторная новая трехкомнатная квартира в кв. Сарафово														
														
															г. Бургас															, кв. «Сарафово»														
														
															Квартира с возможностью переоборудования в четырехкомнатную с садом над землей														
														
															Просторная новая трехкомнатная квартира в кв. Сарафово - Квартира с возможностью переоборудования в четырехкомнатную с садом над землей														
													
												
														
															Продажа
																													
														
															
																																													
															
																
																	Люкс																
															
															
															
															
															
														
																											
													
														
															Новые построенные дома в комплексе в Сарафово														
														
															г. Бургас															, кв. «Сарафово»														
														
															Дома в живописном районе в 500 м от пляжа														
														
															Новые построенные дома в комплексе в Сарафово - Дома в живописном районе в 500 м от пляжа														
													
												
														
															Продажа
																													
														
														
															Новое четырехэтажное здание в Сарафово														
														
															г. Бургас															, кв. «Сарафово»														
														
															Ограниченное количество квартир 400 м до пляжа, рядом магазины, школа, парк, автобусная остановка														
														
															Новое четырехэтажное здание в Сарафово - Ограниченное количество квартир 400 м до пляжа, рядом магазины, школа, парк, автобусная остановка														
													
												
															от € 90 326
														
														
															(€/кв.м. 1 270 - €/кв.м. 1 400)Площадь: 64.52 - 102.83 кв.м. 
															
															
														
														
														
															
																
																	Павел Раванов																
																
																	Риэлтор, Бургас																
															
														
													Еще объекты недвижимости в г. Бургас
													
														Продажа
																											
													
																													
																новинка															
															
																																										
														
														
														
														
														
													
																											
													
														Трёхкомнатная квартира с видом на море													
													
														г. Бургас														, кв. «Сарафово»													
													
														Недвижимость в здании с Актом 16 в р-не Сарафово													
													
														Трёхкомнатная квартира с видом на море - Недвижимость в здании с Актом 16 в р-не Сарафово													
												
											
													
														Продажа
																											
													
																													
																новинка															
															
																																										
														
														
														
														
														
													
																											
													
														Квартира-студия в Бургас													
													
														г. Бургас														, кв. «Крайморие»													
													
														Меблированная квартира с прилегающей террасой у моря
													
													
														Квартира-студия в Бургас - Меблированная квартира с прилегающей террасой у моря
													
												
											
													
														Продажа
																											
													
																													
																новинка															
															
																																										
														
														
														
														
														
													
																											
													
														Прекрасный двухэтажный дом с садом и бассейном рядом с Бургасом													
													
														с. Брястовец																											
													
														Панорамный вид, тишина, зелень и уют													
													
														Прекрасный двухэтажный дом с садом и бассейном рядом с Бургасом - Панорамный вид, тишина, зелень и уют													
												
											
													
														Продажа
																											
													
																													
																новинка															
															
																																										
														
															
																Люкс															
														
														
														
														
														
													
																											
													
														Высококлассный жилой проект с теплым соединением с торговым центром Grand Plaza													
													
														г. Бургас														, кв. «Хоризонт»													
													
														Резиденции в современном закрытом комплексе в Бургас													
													
														Высококлассный жилой проект с теплым соединением с торговым центром Grand Plaza - Резиденции в современном закрытом комплексе в Бургас													
												
											
													
														Продажа
																											
													
														
																																										
														
															
																Люкс															
														
														
														
														
														
													
																											
													
														Трехкомнатная квартира в комплексе высокого класса рядом с торговым центром Гранд Плаза													
													
														г. Бургас														, кв. «Хоризонт»													
													
														Трехкомнатная квартира в комплексе с многочисленными удобствами в Бургасе													
													
														Трехкомнатная квартира в комплексе высокого класса рядом с торговым центром Гранд Плаза - Трехкомнатная квартира в комплексе с многочисленными удобствами в Бургасе													
												
											
													
														Продажа
																											
													
														
														Хит продаж																												
														
															
																Люкс															
														
														
														
														
														
													
																											
													
														Разнообразные квартиры в районе Горизонт													
													
														г. Бургас														, кв. «Хоризонт»													
													
														Новый жилой дом рядом с Университетом им. проф. Асена Златарова													
													
														Разнообразные квартиры в районе Горизонт - Новый жилой дом рядом с Университетом им. проф. Асена Златарова													
												
											
													
														Продажа
																											
													
														
																																										
														
															
																Люкс															
														
														
														
														
														
													
																											
													
														Piccadilly Residence — Новое лицо городского роскоши и современной жизни													
													
														г. Бургас														, кв. «Зорница»													
													
														Топ-проект с впечатляющим видом, высоким качеством и стратегическим расположением													
													
														Piccadilly Residence — Новое лицо городского роскоши и современной жизни - Топ-проект с впечатляющим видом, высоким качеством и стратегическим расположением													
												
											
															от € 124 542
														
														
															(€/кв.м. 1 800 - €/кв.м. 2 400)Площадь: 62.73 - 127.37 кв.м. 
															
															
														
														
														
															
																
																	Георги Иванов																
																
																	Риэлтор, Бургас																
															
														
													
													
														Продажа
																											
													
													
														Двухкомнатная квартира  в жилом районе Славейков, рядом с парком													
													
														г. Бургас														, кв. «Славейков»													
													
														Теплая квартира с частичной мебелью в ухоженном подъезде													
													
														Двухкомнатная квартира  в жилом районе Славейков, рядом с парком - Теплая квартира с частичной мебелью в ухоженном подъезде													
												
											
													
														Продажа
																											
													
													
														Студия в новом современном здании в кв. Братя Миладинови													
													
														г. Бургас														, кв. «Братя Миладинови»													
													
														Отличная инвестиция и расположение рядом с парком													
													
														Студия в новом современном здании в кв. Братя Миладинови - Отличная инвестиция и расположение рядом с парком													
												
											
													
														Продажа
																											
													
													
														Двухэтажный дом с участком недалеко от центра района Банево, Бургас													
													
														г. Бургас														, кв. «Банево»													
													
														Дом на сваях с перспективой строительства рядом с остановкой общественного транспорта, магазинами и учебными заведениями													
													
														Двухэтажный дом с участком недалеко от центра района Банево, Бургас - Дом на сваях с перспективой строительства рядом с остановкой общественного транспорта, магазинами и учебными заведениями													
												
											
													
														Продажа
																											
													
													
														Разработанный магазин в жилом районе Меден Рудник – отличная инвестиция													
													
														г. Бургас														, кв. «Меден рудник - зона Г»													
													
														Работающий бизнес в удобном и оживлённом месте													
													
														Разработанный магазин в жилом районе Меден Рудник – отличная инвестиция - Работающий бизнес в удобном и оживлённом месте													
												
											
													
														Продажа
																											
													
													
														Двухкомнатная квартира с двориком в Grand Plaza Residence, Бургас													
													
														г. Бургас														, кв. «Хоризонт»													
													
														Новая квартира без отделки в современном жилом комплексе													
													
														Двухкомнатная квартира с двориком в Grand Plaza Residence, Бургас - Новая квартира без отделки в современном жилом комплексе													
												
											
													
														Продажа
																											
													
													
														Новый жилой проект в районе Крайморие													
													
														г. Бургас														, кв. «Крайморие»													
													
														Комфортабельные двухкомнатные квартиры для круглогодичного проживания в 400 м от пляжа													
													
														Новый жилой проект в районе Крайморие - Комфортабельные двухкомнатные квартиры для круглогодичного проживания в 400 м от пляжа													
												
											
													
														Продажа
																											
													
													
														Последняя трехкомнатная квартира в доме без платы за обслуживание  													
													
														г. Бургас														, кв. «Славейков»													
													
														Трехкомнатная квартира в здании высокого класса с оригинальной архитектурой 													
													
														Последняя трехкомнатная квартира в доме без платы за обслуживание   - Трехкомнатная квартира в здании высокого класса с оригинальной архитектурой 													
												
											
													
														Продажа
																											
													
													
														Современные односемейные дома с Актом 14 и выгодным местоположением в Бургасе													
													
														г. Бургас														, кв. «Крайморие»													
													
														Новый жилой комплекс с собственным двором и двумя парковочными местами в районе Крайморие, в 500 м от пляжа													
													
														Современные односемейные дома с Актом 14 и выгодным местоположением в Бургасе - Новый жилой комплекс с собственным двором и двумя парковочными местами в районе Крайморие, в 500 м от пляжа													
												
											
													
														Продажа
																											
													
													
														Современное жилое здание в районе Трапецица, Бургас													
													
														г. Бургас														, кв. «Братя Миладинови»													
													
														Новый проект с отличной локацией и функциональной архитектурой													
													
														Современное жилое здание в районе Трапецица, Бургас - Новый проект с отличной локацией и функциональной архитектурой													
												
											
															от € 98 798
														
														
															(€/кв.м. 1 400 - €/кв.м. 1 950)Площадь: 69.58 - 81.04 кв.м. 
															
															
														
														
														
															
																
																	Павел Раванов																
																
																	Риэлтор, Бургас																
															
														
													
													
														Аренда
																											
													
														
																																										
														
															
																Люкс															
														
														
														
														
														
													
																											
													
														Двухкомнатная квартира на первой линии у моря в Сарафово													
													
														г. Бургас														, кв. «Сарафово»													
													
														Квартира с мебелью и висом на море в аренду в Бургасе													
													
														Двухкомнатная квартира на первой линии у моря в Сарафово - Квартира с мебелью и висом на море в аренду в Бургасе													
												
											
													
														Продажа
																											
													
													
														Трапезица Резиденс - новый жилой комплекс с прекрасными видами в Бургас													
													
														г. Бургас														, кв. «Братя Миладинови»													
													
														Студии, квартиры с 1, 2 или 3 спальнями с легким доступом к центральным частям Бургас													
													
														Трапезица Резиденс - новый жилой комплекс с прекрасными видами в Бургас - Студии, квартиры с 1, 2 или 3 спальнями с легким доступом к центральным частям Бургас													
												
											
															от € 81 160
														
														
															(€/кв.м. 1 799 - €/кв.м. 2 662)Площадь: 45.09 - 234.48 кв.м. 
															
															
														
														
														
															
																
																	Павел Раванов																
																
																	Риэлтор, Бургас																
															
														
													
													
														Продажа
																											
													
														
																																										
														
															
																Люкс															
														
														
														
														
														
													
																											
													
														Современный жилой комплекс в центре города – комфорт, безопасность и стиль без компромиссов													
													
														г. Бургас														, кв. «Братя Миладинови»													
													
														Светлые и просторные апартаменты с 1, 2 или 3 спальнями в коммуникативном месте в Бургас 													
													
														Современный жилой комплекс в центре города – комфорт, безопасность и стиль без компромиссов - Светлые и просторные апартаменты с 1, 2 или 3 спальнями в коммуникативном месте в Бургас 													
												
											
															от € 119 280
														
														
															(€/кв.м. 1 700 - €/кв.м. 2 839)Площадь: 68.01 - 134.81 кв.м. 
															
															
														
														
														
															
																
																	Павел Раванов																
																
																	Риэлтор, Бургас																
															
														
													
													
														Продажа
																											
													
													
														Инновационный проект с современным видением и отличной архитектурой													
													
														г. Бургас														, кв. «Меден рудник - зона В»													
													
														Современны апартаментов, качественное строительство, в самом быстрорастущем комплексе в городе Бургас													
													
														Инновационный проект с современным видением и отличной архитектурой - Современны апартаментов, качественное строительство, в самом быстрорастущем комплексе в городе Бургас													
												
											
															от € 82 000
														
														
															(€/кв.м. 1 262 - €/кв.м. 1 371)Площадь: 62.00 - 65.00 кв.м. 
															
															
														
														
														
															
																
																	Павел Раванов																
																
																	Риэлтор, Бургас																
															
														
													
													
														Продажа
																											
													
													
														Четырехкомнатная квартира в. Меден Рудник зона А													
													
														г. Бургас														, кв. «Меден рудник»													
													
														Просторная квартира с панорамным видом на высоком этаже													
													
														Четырехкомнатная квартира в. Меден Рудник зона А - Просторная квартира с панорамным видом на высоком этаже													
												
											
													
														Продажа
																											
													
													
														Новый строящийся жилой дом в г.к. Зорница, Бургас													
													
														г. Бургас														, кв. «Зорница»													
													
														Двухкомнатные и трехкомнатные квартиры без платы за обслуживание в 600 м от моря													
													
														Новый строящийся жилой дом в г.к. Зорница, Бургас - Двухкомнатные и трехкомнатные квартиры без платы за обслуживание в 600 м от моря													
												
											
															от € 220 638
														
														
															(€/кв.м. 1 800 - €/кв.м. 1 930)Площадь: 114.32 - 134.22 кв.м. 
															
															
														
														
														
															
																
																	Павел Раванов																
																
																	Риэлтор, Бургас																
															
														
													
													
														Продажа
																											
													
													
														Трехуровневая квартира рядом с Морским садом в Бургас													
													
														г. Бургас														, кв. «Вызраждане»													
													
														Жилье с 4 спальнями, подвалом и гаражом в кв. Възраждане													
													
														Трехуровневая квартира рядом с Морским садом в Бургас - Жилье с 4 спальнями, подвалом и гаражом в кв. Възраждане													
												
											
													
														Продажа
																											
													
													
														Современный жилой дом в районе Зорница													
													
														г. Бургас														, кв. «Зорница»													
													
														Двухкомнатные и трёхкомнатные квартиры в тихом районе с отличной инфраструктурой													
													
														Современный жилой дом в районе Зорница - Двухкомнатные и трёхкомнатные квартиры в тихом районе с отличной инфраструктурой													
												
											
															от € 141 592
														
														
															(€/кв.м. 800 - €/кв.м. 2 300)Площадь: 61.56 - 323.51 кв.м. 
															
															
														
														
														
															
																
																	Георги Иванов																
																
																	Риэлтор, Бургас																
															
														
													
													
														Продажа
																											
													
													
														Новый строящийся жилой дом в кв. Сарафово													
													
														г. Бургас														, кв. «Сарафово»													
													
														Различные типы современных квартир в 500 м от пляжа													
													
														Новый строящийся жилой дом в кв. Сарафово - Различные типы современных квартир в 500 м от пляжа													
												
											
						
						Подписывайтесь на наш канал