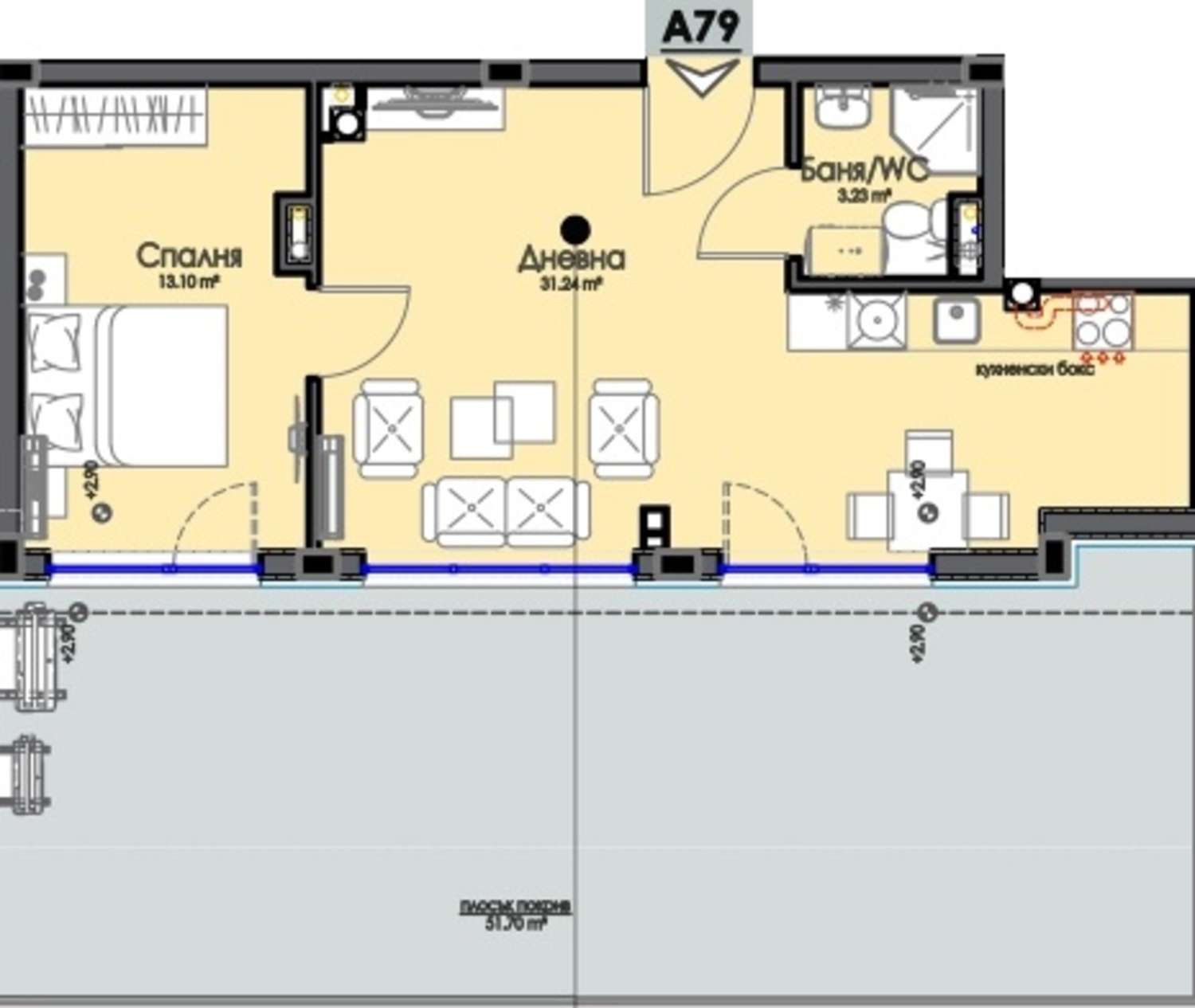
квартира A79 , общая площадь 115.09 кв.м. (жилая площадь 56.51 кв.м. + общие части 6.88 кв.м.).
Представляем вашему вниманию новый, уникальный жилой проект с функционально распределенными квартирами - одно-, двух- и трехкомнатными в г. Бургас - квартал Горизонт, недалеко от университета "Профессор д-р Асен Златаров" и студенческого кампуса, который планируется построить, до спортивного зала, факультета естественных наук, факультета технических наук, медицинского факультета - Бургас, больницы сердца и мозга, ресторанов и многих других городских достопримечательностей.
Проект призван предложить жителям комфорт, безопасность и стиль. Он отличается современным видом, элегантной архитектурой, инновационными технологиями и комфортом, разработанным с учетом будущего.
Ключевые особенности:
• Два отдельных входа с контролируемым доступом
• Два лифта в каждом подъезде
• Коммерческие помещения и гаражи на 1 этаже
• Открытые парковочные места и подземные гаражи
• Современное строительство с использованием высококачественных материалов и энергоэффективности
• Разнообразный и чрезвычайно современный вид
Квартиры оформляются в штукатурке и растворе, что дает покупателям возможность обустроить жилое пространство в соответствии со своими предпочтениями и стилем.
Кроме того, вы можете приобрести подземный гараж и парковочное место, а также наземный гараж.
Этот жилой комплекс представляет собой практичный вариант для тех, кто хочет инвестировать в новый дом или недвижимость с отличным потенциалом для последующей сдачи в аренду. Разнообразие типов жилья и акцент на базовых удобствах делают этот комплекс подходящим для тех, кто ищет современное и актуальное жилье в Бургасе. Если вы хотите узнать больше об этом проекте, пожалуйста, свяжитесь с нами для получения подробной информации.
Посмотреть недвижимость
Мы можем организовать просмотр объекта в соответствии с нашим графиком и наличием свободных мест. Запросите просмотр, связавшись с брокером, ответственным за предложение, по электронной почте или телефону.
Резервирование недвижимости
Объект может быть зарезервирован и снят с продажи при внесении задатка, после чего прекращаются просмотры с другими покупателями и начинается подготовка документов для заключения предварительного и окончательного контракта. Свяжитесь с ответственным брокером для получения подробной информации о процедуре покупки и порядке оплаты.
- Описание
- Характеристики
- Галерея
- Местоположение
- Прайс-лист
Характеристики
Тип недвижимости
Двухкомнатная квартира
Реф. номер
BS 87577
Площадь
115.09 м2 (жилая площадь: 108.21 м2 плюс общие части: 6.88 м2) еще
Спальни
1
Состояние
болгарский государственный стандарт
Этаж
9 из 9
Лифт
да
Меблировка
Немеблированная
Вид строительства
Кирпич, Новостройки
Окна выходят на:
Восток, Запад, На север, Юг
Год строительства
2028
Разнообразные квартиры в районе Горизонт дополнительная информация:
Планы
Планы
Прайс-лист
Качество воздуха
Меблировка
Фото с воздуха
Генплан
360° градусов
Инфо пакет
Референтный номер: BS 87577
Местоположение
г. Бургас, кв.«Хоризонт»Удобства района
- Университет "Факултет по природни науки" 50 м (1 мин.)
- Университет "Факултет по технически науки" 145 м (2 мин.)
- Почта "Еконт" 722 м (9 мин.)
- Ресторан 408 м (5 мин.)
- Ресторан "Юнашка Мръвка" 641 м (8 мин.)
- Детская площадка "Ваничарница Топли Закуски" 1.2 км (15 мин.)
ТРАНСПОРТ
УЧЕБНЫЕ ЗАВЕДЕНИЯ
УСЛУГИ
ЗАВЕДЕНИЯ
СПОРТ И СВОБОДНОЕ ВРЕМЯ
ОТПРАВЬТЕ ЗАПРОС
€ 126 603
- €
- руб.
- $
Платежи с карты и PayPal.
Располагаем онлайн ПОС терминалом
Располагаем онлайн ПОС терминалом
Комплекс строится
Ввод в эксплуатацию: 30.03.2028 г
Агенству причитается комиссия
Прайс-лист
*/ ?>
ПОДРОБНАЯ ИНФОРМАЦИЯ
Реф. номер: BS 87577
При звонке, пожалуйста, указывайте номер объекта недвижимости.
Объектов недвижимости в этом комплексе
39
объектов недвижимости
29
свободных
7
проданных
3
забронированных
ОТПРАВЬТЕ ЗАПРОС
Еще объекты недвижимости в в этом комплексе
Продажа
Хит продаж
Люкс
Двухкомнатная квартира в Разнообразные квартиры в районе Горизонт
г. Бургас , кв. «Хоризонт»
Новый жилой дом рядом с Университетом им. проф. Асена Златарова
Продажа
Хит продаж
Люкс
Двухкомнатная квартира в Разнообразные квартиры в районе Горизонт
г. Бургас , кв. «Хоризонт»
Новый жилой дом рядом с Университетом им. проф. Асена Златарова
Продажа
Хит продаж
Люкс
Трехкомнатная квартира в Разнообразные квартиры в районе Горизонт
г. Бургас , кв. «Хоризонт»
Новый жилой дом рядом с Университетом им. проф. Асена Златарова
Продажа
Хит продаж
Люкс
Двухкомнатная квартира в Разнообразные квартиры в районе Горизонт
г. Бургас , кв. «Хоризонт»
Новый жилой дом рядом с Университетом им. проф. Асена Златарова
Продажа
Хит продаж
Люкс
Двухкомнатная квартира в Разнообразные квартиры в районе Горизонт
г. Бургас , кв. «Хоризонт»
Новый жилой дом рядом с Университетом им. проф. Асена Златарова
Продажа
Хит продаж
Люкс
Двухкомнатная квартира в Разнообразные квартиры в районе Горизонт
г. Бургас , кв. «Хоризонт»
Новый жилой дом рядом с Университетом им. проф. Асена Златарова
Продажа
Хит продаж
Люкс
Двухкомнатная квартира в Разнообразные квартиры в районе Горизонт
г. Бургас , кв. «Хоризонт»
Новый жилой дом рядом с Университетом им. проф. Асена Златарова
Продажа
Хит продаж
Люкс
Двухкомнатная квартира в Разнообразные квартиры в районе Горизонт
г. Бургас , кв. «Хоризонт»
Новый жилой дом рядом с Университетом им. проф. Асена Златарова
Продажа
Хит продаж
Люкс
Трехкомнатная квартира в Разнообразные квартиры в районе Горизонт
г. Бургас , кв. «Хоризонт»
Новый жилой дом рядом с Университетом им. проф. Асена Златарова
Продажа
Хит продаж
Люкс
Двухкомнатная квартира в Разнообразные квартиры в районе Горизонт
г. Бургас , кв. «Хоризонт»
Новый жилой дом рядом с Университетом им. проф. Асена Златарова
Продажа
Хит продаж
Люкс
Двухкомнатная квартира в Разнообразные квартиры в районе Горизонт
г. Бургас , кв. «Хоризонт»
Новый жилой дом рядом с Университетом им. проф. Асена Златарова
Продажа
Хит продаж
Люкс
Двухкомнатная квартира в Разнообразные квартиры в районе Горизонт
г. Бургас , кв. «Хоризонт»
Новый жилой дом рядом с Университетом им. проф. Асена Златарова
Продажа
Хит продаж
Люкс
Двухкомнатная квартира в Разнообразные квартиры в районе Горизонт
г. Бургас , кв. «Хоризонт»
Новый жилой дом рядом с Университетом им. проф. Асена Златарова
Продажа
Хит продаж
Люкс
Двухкомнатная квартира в Разнообразные квартиры в районе Горизонт
г. Бургас , кв. «Хоризонт»
Новый жилой дом рядом с Университетом им. проф. Асена Златарова
Продажа
Хит продаж
Люкс
Двухкомнатная квартира в Разнообразные квартиры в районе Горизонт
г. Бургас , кв. «Хоризонт»
Новый жилой дом рядом с Университетом им. проф. Асена Златарова
Продажа
Хит продаж
Люкс
Трехкомнатная квартира в Разнообразные квартиры в районе Горизонт
г. Бургас , кв. «Хоризонт»
Новый жилой дом рядом с Университетом им. проф. Асена Златарова
Продажа
Хит продаж
Люкс
Двухкомнатная квартира в Разнообразные квартиры в районе Горизонт
г. Бургас , кв. «Хоризонт»
Новый жилой дом рядом с Университетом им. проф. Асена Златарова
Продажа
Хит продаж
Люкс
Двухкомнатная квартира в Разнообразные квартиры в районе Горизонт
г. Бургас , кв. «Хоризонт»
Новый жилой дом рядом с Университетом им. проф. Асена Златарова
Продажа
Хит продаж
Люкс
Двухкомнатная квартира в Разнообразные квартиры в районе Горизонт
г. Бургас , кв. «Хоризонт»
Новый жилой дом рядом с Университетом им. проф. Асена Златарова
Продажа
Хит продаж
Люкс
Трехкомнатная квартира в Разнообразные квартиры в районе Горизонт
г. Бургас , кв. «Хоризонт»
Новый жилой дом рядом с Университетом им. проф. Асена Златарова
Продажа
Хит продаж
Люкс
Трехкомнатная квартира в Разнообразные квартиры в районе Горизонт
г. Бургас , кв. «Хоризонт»
Новый жилой дом рядом с Университетом им. проф. Асена Златарова
Продажа
Хит продаж
Люкс
Трехкомнатная квартира в Разнообразные квартиры в районе Горизонт
г. Бургас , кв. «Хоризонт»
Новый жилой дом рядом с Университетом им. проф. Асена Златарова
Продажа
Хит продаж
Люкс
Трехкомнатная квартира в Разнообразные квартиры в районе Горизонт
г. Бургас , кв. «Хоризонт»
Новый жилой дом рядом с Университетом им. проф. Асена Златарова
Продажа
Хит продаж
Люкс
Четырехкомнатная квартира в Разнообразные квартиры в районе Горизонт
г. Бургас , кв. «Хоризонт»
Новый жилой дом рядом с Университетом им. проф. Асена Златарова
Продажа
Хит продаж
Люкс
Четырехкомнатная квартира в Разнообразные квартиры в районе Горизонт
г. Бургас , кв. «Хоризонт»
Новый жилой дом рядом с Университетом им. проф. Асена Златарова
Еще объекты недвижимости в кв. Хоризонт
Продажа
Люкс
Высококлассный жилой проект с теплым соединением с торговым центром Grand Plaza
г. Бургас , кв. «Хоризонт»
Резиденции в современном закрытом комплексе в Бургас
Высококлассный жилой проект с теплым соединением с торговым центром Grand Plaza - Резиденции в современном закрытом комплексе в Бургас
Продажа
новинка
Двухкомнатная квартира с двориком в Grand Plaza Residence, Бургас
г. Бургас , кв. «Хоризонт»
Новая квартира без отделки в современном жилом комплексе
Двухкомнатная квартира с двориком в Grand Plaza Residence, Бургас - Новая квартира без отделки в современном жилом комплексе
Продажа
новинка
Люкс
Новый жилой дом в районе «Горизонт»
г. Бургас , кв. «Хоризонт»
Роскошные дома в районе Бургасского метрополитена с быстрым доступом к автомагистрали и городской инфраструктуре
Новый жилой дом в районе «Горизонт» - Роскошные дома в районе Бургасского метрополитена с быстрым доступом к автомагистрали и городской инфраструктуре
Продажа
Люкс
Azimuth Ring – новый современный жилой квартал в Бургасе
г. Бургас , кв. «Хоризонт»
Масштабный городской проект с долгосрочной концепцией
Azimuth Ring – новый современный жилой квартал в Бургасе - Масштабный городской проект с долгосрочной концепцией
от € 61 167
(€/кв.м. 1 450 - €/кв.м. 1 670)Площадь: 38.47 - 127.50 кв.м.
Георги Иванов
Риэлтор, Бургас
Продажа
Двухкомнатная квартира в новом строительстве в районе «Азимут», г. Бургас
г. Бургас , кв. «Хоризонт»
Современный дом в самой динамично развивающейся части города, в 5 минутах от моря
Двухкомнатная квартира в новом строительстве в районе «Азимут», г. Бургас - Современный дом в самой динамично развивающейся части города, в 5 минутах от моря
Продажа
Двухкомнатная квартира в новом строительстве в кв. «Азимут», Бургас
г. Бургас , кв. «Хоризонт»
Современный дом в комплексе с удобствами в нескольких минутах от моря
Двухкомнатная квартира в новом строительстве в кв. «Азимут», Бургас - Современный дом в комплексе с удобствами в нескольких минутах от моря
Продажа
Двухкомнатная квартира в новом жилом комплексе в районе Азимут
г. Бургас , кв. «Хоризонт»
Современное жильё в самом перспективном районе города
Двухкомнатная квартира в новом жилом комплексе в районе Азимут - Современное жильё в самом перспективном районе города
Продажа
Люкс
Трехкомнатная квартира в комплексе высокого класса рядом с торговым центром Гранд Плаза
г. Бургас , кв. «Хоризонт»
Трехкомнатная квартира в комплексе с многочисленными удобствами в Бургасе
Трехкомнатная квартира в комплексе высокого класса рядом с торговым центром Гранд Плаза - Трехкомнатная квартира в комплексе с многочисленными удобствами в Бургасе
Продажа
Новостройка в элитном районе «Азимут»
г. Бургас , кв. «Хоризонт»
Квартиры высокого класса всего в 5 км от моря в Бургасе
Новостройка в элитном районе «Азимут» - Квартиры высокого класса всего в 5 км от моря в Бургасе
от € 67 733
(€/кв.м. 1 550 - €/кв.м. 1 829)Площадь: 41.05 - 148.27 кв.м.
Георги Иванов
Риэлтор, Бургас
Еще объекты недвижимости в г. Бургас
Продажа
Люкс
Высококлассный жилой проект с теплым соединением с торговым центром Grand Plaza
г. Бургас , кв. «Хоризонт»
Резиденции в современном закрытом комплексе в Бургас
Высококлассный жилой проект с теплым соединением с торговым центром Grand Plaza - Резиденции в современном закрытом комплексе в Бургас
Продажа
новинка
Новый построенный жилой комплекс в Сарафово
г. Бургас , кв. «Сарафово»
Последние просторные квартиры элитного строительства без платы за обслуживание
Новый построенный жилой комплекс в Сарафово - Последние просторные квартиры элитного строительства без платы за обслуживание
от € 94 380
(€/кв.м. 1 200 - €/кв.м. 1 250)Площадь: 78.65 - 103.29 кв.м.
Павел Раванов
Риэлтор, Бургас
Продажа
новинка
Новый жилой проект без платы за обслуживание в Меден Рудник
г. Бургас , кв. «Меден рудник - зона Д»
Просторные новые квартиры в закрытом комплексе рядом с супермаркетом, школой и детским садом
Новый жилой проект без платы за обслуживание в Меден Рудник - Просторные новые квартиры в закрытом комплексе рядом с супермаркетом, школой и детским садом
Продажа
новинка
Строящаяся новостройка в жилом комплексе Меден Рудник
г. Бургас , кв. «Меден рудник - зона Г»
Двухкомнатные квартиры с проверенным качеством, надежностью, безопасной и спокойной средой обитания
Строящаяся новостройка в жилом комплексе Меден Рудник - Двухкомнатные квартиры с проверенным качеством, надежностью, безопасной и спокойной средой обитания
Продажа
новинка
Двухкомнатная квартира с двориком в Grand Plaza Residence, Бургас
г. Бургас , кв. «Хоризонт»
Новая квартира без отделки в современном жилом комплексе
Двухкомнатная квартира с двориком в Grand Plaza Residence, Бургас - Новая квартира без отделки в современном жилом комплексе
Продажа
новинка
Двухкомнатная квартира с Актом 14 в новом жилом доме
г. Бургас , кв. «Меден рудник - зона Г»
Светлая квартира с удобной планировкой в районе Меден Рудник, Бургас
Двухкомнатная квартира с Актом 14 в новом жилом доме - Светлая квартира с удобной планировкой в районе Меден Рудник, Бургас
Продажа
новинка
Помещение на первом этаже в самом центре Бургаса
г. Бургас , «Центр»
Компактный объект с отличным бизнес-потенциалом
Помещение на первом этаже в самом центре Бургаса - Компактный объект с отличным бизнес-потенциалом
Продажа
новинка
Трёхкомнатная квартира с видом на море в районе Лазур
г. Бургас , кв. «Лазур»
Полностью отремонтированное жильё в нескольких минутах от моря
Трёхкомнатная квартира с видом на море в районе Лазур - Полностью отремонтированное жильё в нескольких минутах от моря
Аренда
новинка
Люкс
Современно меблированная трехкомнатная квартира в аренду в ж.к. Изгрев
г. Бургас , кв. «Изгрев»
Комфортное жильё в хорошо благоустроенном и предпочитаемом районе города Бургас
Современно меблированная трехкомнатная квартира в аренду в ж.к. Изгрев - Комфортное жильё в хорошо благоустроенном и предпочитаемом районе города Бургас
Продажа
новинка
Люкс
Новый жилой дом в районе «Горизонт»
г. Бургас , кв. «Хоризонт»
Роскошные дома в районе Бургасского метрополитена с быстрым доступом к автомагистрали и городской инфраструктуре
Новый жилой дом в районе «Горизонт» - Роскошные дома в районе Бургасского метрополитена с быстрым доступом к автомагистрали и городской инфраструктуре
Продажа
новинка
Новый строящийся жилой дом в кв. Сарафово
г. Бургас , кв. «Сарафово»
Различные типы современных квартир в 500 м от пляжа
Новый строящийся жилой дом в кв. Сарафово - Различные типы современных квартир в 500 м от пляжа
Продажа
новинка
Люкс
ВТОРАЯ ЛИНИЯ
Отличная трехкомнатная квартира с видом на море в Бургас
г. Бургас , кв. «Сарафово»
Меблированная квартира в стильном жилом доме в престижном районе Сарафово
Отличная трехкомнатная квартира с видом на море в Бургас - Меблированная квартира в стильном жилом доме в престижном районе Сарафово
Продажа
новинка
Здание без платы за обслуживание в кв. Славейков
г. Бургас , кв. «Славейков»
Двухкомнатные квартиры, трехкомнатные квартиры, офисы и магазины на бульваре. Янко Комитов
Здание без платы за обслуживание в кв. Славейков - Двухкомнатные квартиры, трехкомнатные квартиры, офисы и магазины на бульваре. Янко Комитов
от € 94 833
(€/кв.м. 1 750 - €/кв.м. 2 100)Площадь: 54.19 - 194.95 кв.м.
Павел Раванов
Риэлтор, Бургас
Продажа
новинка
ВТОРАЯ ЛИНИЯ
Новый жилой проект на улице Манастирской в районе Сарафово
г. Бургас , кв. «Сарафово»
Разнообразные квартиры на второй линии от пляжа
Новый жилой проект на улице Манастирской в районе Сарафово - Разнообразные квартиры на второй линии от пляжа
Продажа
новинка
Новый строящийся жилой дом в г.к. Зорница, Бургас
г. Бургас , кв. «Зорница»
Двухкомнатные и трехкомнатные квартиры без платы за обслуживание в 600 м от моря
Новый строящийся жилой дом в г.к. Зорница, Бургас - Двухкомнатные и трехкомнатные квартиры без платы за обслуживание в 600 м от моря
от € 220 638
(€/кв.м. 1 800 - €/кв.м. 1 930)Площадь: 114.32 - 134.22 кв.м.
Павел Раванов
Риэлтор, Бургас
Продажа
новинка
Современный жилой дом в районе Зорница
г. Бургас , кв. «Зорница»
Двухкомнатные и трёхкомнатные квартиры в тихом районе с отличной инфраструктурой
Современный жилой дом в районе Зорница - Двухкомнатные и трёхкомнатные квартиры в тихом районе с отличной инфраструктурой
от € 141 592
(€/кв.м. 800 - €/кв.м. 2 300)Площадь: 61.56 - 323.51 кв.м.
Георги Иванов
Риэлтор, Бургас
Продажа
Студия на главной дороге в Равде
с. Равда
Удобный объект для проживания или инвестиций
Студия на главной дороге в Равде - Удобный объект для проживания или инвестиций
Продажа
Двухкомнатная квартира с отличным расположением и потенциалом в районе Вазраждане
г. Бургас , кв. «Вызраждане»
Двухкомнатная квартира в удобном и коммуникабельном районе Бургаса
Двухкомнатная квартира с отличным расположением и потенциалом в районе Вазраждане - Двухкомнатная квартира в удобном и коммуникабельном районе Бургаса
Продажа
Люкс
Azimuth Ring – новый современный жилой квартал в Бургасе
г. Бургас , кв. «Хоризонт»
Масштабный городской проект с долгосрочной концепцией
Azimuth Ring – новый современный жилой квартал в Бургасе - Масштабный городской проект с долгосрочной концепцией
от € 61 167
(€/кв.м. 1 450 - €/кв.м. 1 670)Площадь: 38.47 - 127.50 кв.м.
Георги Иванов
Риэлтор, Бургас
Продажа
Новостройка с актом 14 в кв. Сарафово
г. Бургас , кв. «Сарафово»
Одно- и двухкомнатные квартиры в 300 метрах от пляжа и рядом с комплексом "Атлантис"
Новостройка с актом 14 в кв. Сарафово - Одно- и двухкомнатные квартиры в 300 метрах от пляжа и рядом с комплексом "Атлантис"
от € 88 000
(€/кв.м. 1 239 - €/кв.м. 1 295)Площадь: 70.93 - 88.77 кв.м.
Павел Раванов
Риэлтор, Бургас
Продажа
Светлая двухкомнатная квартира с панорамным видом в современном доме
г. Бургас , кв. «Изгрев»
Уютное жильё на последнем этаже в удобном районе Бургаса
Светлая двухкомнатная квартира с панорамным видом в современном доме - Уютное жильё на последнем этаже в удобном районе Бургаса
Продажа
Трехкомнатная квартира с потенциалом
г. Бургас , кв. «Изгрев»
Трехкомнатная квартира рядом с автобусной остановкой, магазинами, школой и детским садом.
Трехкомнатная квартира с потенциалом - Трехкомнатная квартира рядом с автобусной остановкой, магазинами, школой и детским садом.
Продажа
Однокомнатная квартира в закрытом комплексе в районе Сарафово, г. Бургас
г. Бургас , кв. «Сарафово»
Готовая для проживания или сдачи в аренду недвижимость рядом с морем
Однокомнатная квартира в закрытом комплексе в районе Сарафово, г. Бургас - Готовая для проживания или сдачи в аренду недвижимость рядом с морем
Аренда
Меблированный пентхаус в аренду с панорамным видом на море в районе Сарафово
г. Бургас , кв. «Сарафово»
Просторная квартира с большой террасой и впечатляющим морским пейзажем
Меблированный пентхаус в аренду с панорамным видом на море в районе Сарафово - Просторная квартира с большой террасой и впечатляющим морским пейзажем
Продажа
Разработанный магазин в жилом районе Меден Рудник – отличная инвестиция
г. Бургас , кв. «Меден рудник - зона Г»
Работающий бизнес в удобном и оживлённом месте
Разработанный магазин в жилом районе Меден Рудник – отличная инвестиция - Работающий бизнес в удобном и оживлённом месте
Подписывайтесь на наш канал