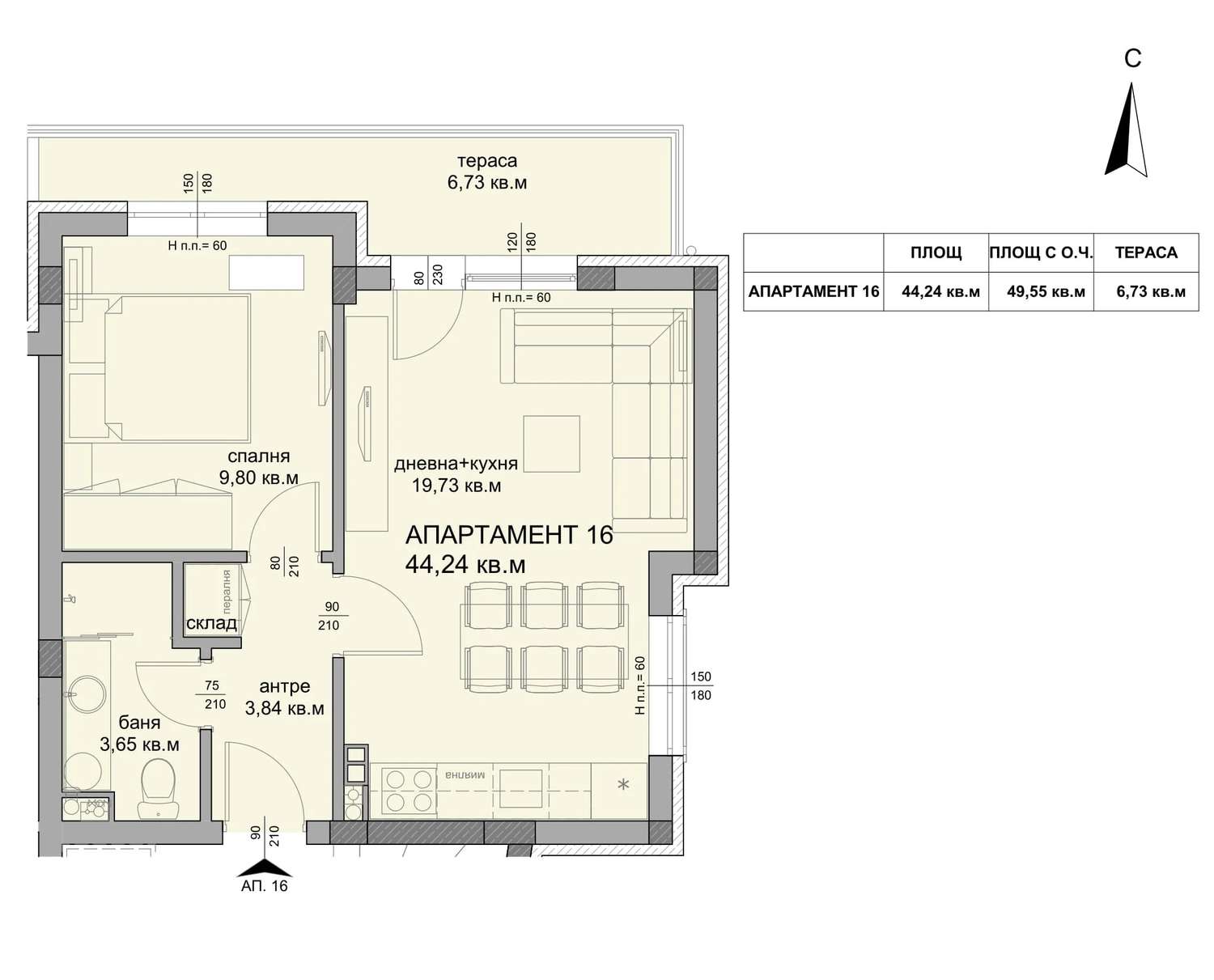
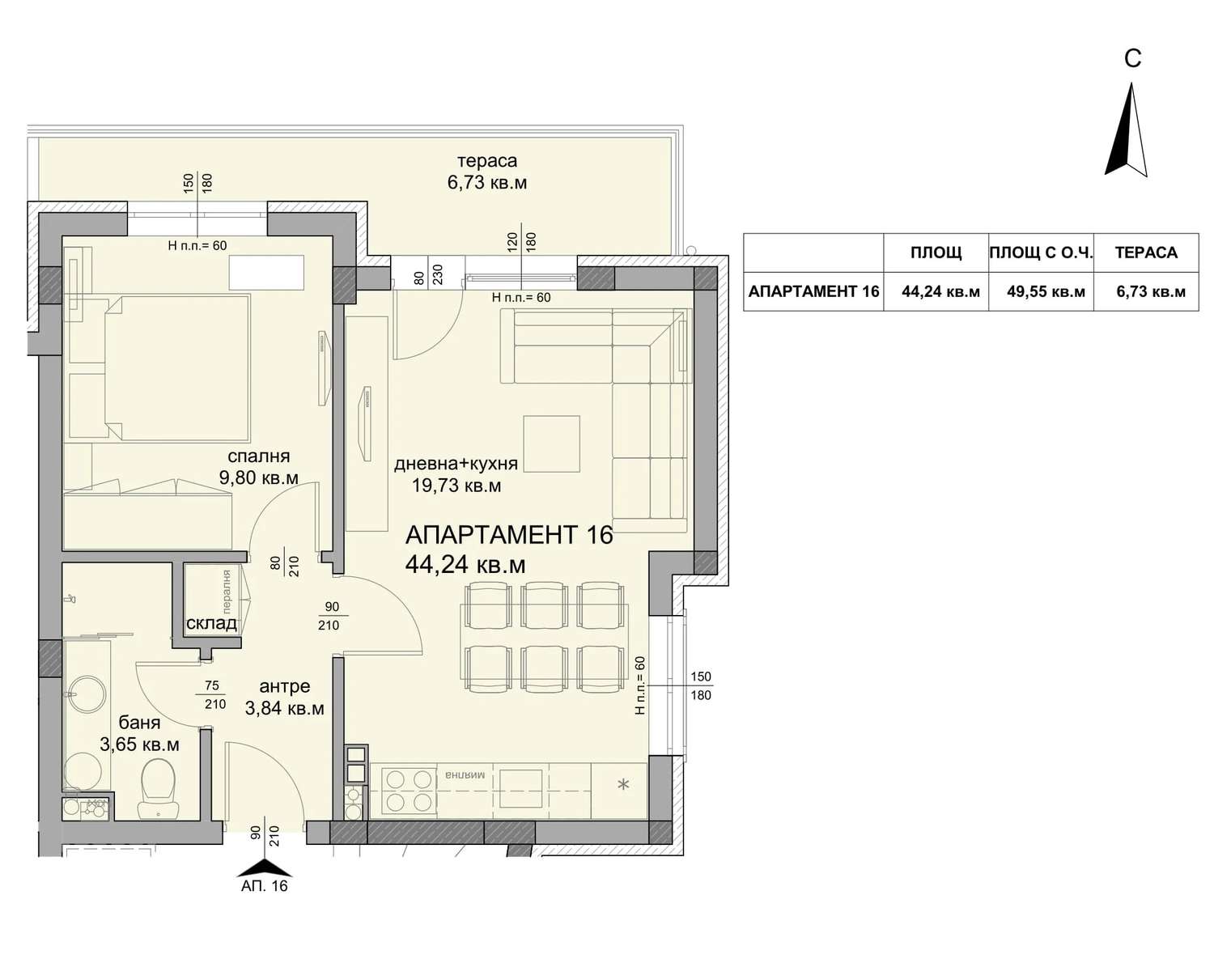
квартира 16 , общая площадь 57.00 кв.м. (жилая площадь 44.24 кв.м. + общие части 5.76 кв.м.), плюс терраса площадью 7.00 кв.м. - .
Выберите свой новый дом с одной или двумя спальнями в новом жилом комплексе, состоящем из трех зданий с Актом 16, построенном на участке 2500 м2 с чрезвычайно тихим и спокойным расположением в Кв. Недвижимость расположена в очень тихом и спокойном районе, в 150 м от пляжа, рядом с начальной школой, детским садом, остановками общественного транспорта, продуктовыми магазинами, кафе, ресторанами, ресторанами быстрого питания, медицинским центром, магазинами модной одежды и всеми городскими удобствами.
Проект сочетает в себе преимущества закрытого сообщества без навязанной платы за обслуживание. Здания расположены таким образом, что все дома максимально освещены солнцем. Каждый из них имеет четыре фасада с основными видами на юг, восток и запад. На все этажи можно подняться на бесшумных лифтах с автоматическими дверями.
В строительстве использованы материалы высочайшего класса:
• Железобетонная конструкция
• Кладка из многоячеистых керамических блоков
• Наружная теплоизоляция плитами толщиной 10 см с повышенной плотностью 15-18 кг/м2 для улучшения теплоизоляционных свойств
• Штукатурка ведущей марки "Baumit", с мягкими, нейтральными и приятными цветами
• Качественные 6-камерные немецкие оконные рамы ПВХ марки "Aluplast" с увеличенной толщиной рамы 8,5 см с немецкой фурнитурой "Rotto" и энергосберегающими стеклопакетами 4 сезона. Сочетание качественной столярки и надежной теплоизоляции гарантирует отличный климатический комфорт и низкие счета за электричество.
• Красивые антикоррозийные балконные перила из алюминия и стекла
• Роскошные общие зоны с полом из натурального гранита
Квартиры оформлены в соответствии с BDS:
• Оштукатуренные стены и потолки
• Пол - ровная цементная стяжка
• Стены ванной комнаты - облицовочная цементная штукатурка
• Террасы - морозостойкая керамогранитная плитка
• Выполненная электропроводка с предохранительными щитками
• Сантехническая разводка в соответствии с проектом с установленным индивидуальным счетчиком воды
• Установлена бронированная входная дверь с двумя замками
• Облицовка квартир первого этажа красивым натуральным камнем - травертином. Квартиры на первом этаже имеют собственный двор с богатым ландшафтным дизайном
Есть возможность завершения ремонта силами инвестора, обсуждается.
Имеются парковочные места на территории комплекса и в подземном паркинге, которые приобретаются отдельно.
Район Сарафово расположен на берегу моря и соединен велосипедными дорожками и пешеходной зоной с морским садом Бургаса. Совсем рядом с Сарафово находятся озера со знаменитой целебной бургасской щелочью. Прекрасные пляжи, круглогодичный мягкий черноморский климат, тишина и покой делают этот район желанным местом для жизни и отдыха. На автомобиле расстояние до центра города составляет 10 мин.
Вид недвижимости
Мы можем организовать просмотр недвижимости в удобное для вас время. Для этого свяжитесь с брокером, ответственным за данное предложение, и сообщите ему, когда вы хотели бы провести осмотр.
Резервирование недвижимости
Объект может быть зарезервирован и снят с продажи с внесением залога, после чего прекращаются просмотры с другими покупателями и начинается подготовка документов для заключения предварительного и окончательного контракта. Пожалуйста, свяжитесь с ответственным брокером по данному объекту недвижимости для получения подробной информации о процедуре покупки и порядке оплаты.
- Описание
- Характеристики
- Галерея
- Местоположение
- Прайс-лист
Характеристики
Тип недвижимости
Двухкомнатная квартира
Реф. номер
BS 86006
Площадь
57.00 м2 (жилая площадь: 51.24 м2 плюс общие части: 5.76 м2) еще
Спальни
1
Состояние
болгарский государственный стандарт
Этаж
3 из 4
Лифт
да
Меблировка
Немеблированная
Вид строительства
Новостройки
Год строительства
2024
Плата за обслуживание
нет
Акт 16
да
Новостройки с актом 16 в кв. Сарафово дополнительная информация:
Планы
Планы
Прайс-лист
Качество воздуха
Фото с воздуха
Генплан
360° градусов
Инфо пакет
Референтный номер: BS 86006
Местоположение
г. Бургас, кв.«Сарафово»- 150 м до пляжа
Удобства района
- Аэропорт "Летище Бургас" 1.0 км (13 мин.)
- Ресторан "Кедъра" 551 м (7 мин.)
- Пляж 150 м (2 мин.)
ТРАНСПОРТ
ЗАВЕДЕНИЯ
СПОРТ И СВОБОДНОЕ ВРЕМЯ
ОТПРАВЬТЕ ЗАПРОС
€ 105 000
- €
- руб.
- $
Платежи с карты и PayPal.
Располагаем онлайн ПОС терминалом
Располагаем онлайн ПОС терминалом
Комплекс сдан!
Дата сдачи: 01.11.2024 г
Агенству причитается комиссия
Прайс-лист
*/ ?>
ПОДРОБНАЯ ИНФОРМАЦИЯ
Реф. номер: BS 86006
При звонке, пожалуйста, указывайте номер объекта недвижимости.
Объектов недвижимости в этом комплексе
27
объектов недвижимости
10
свободных
15
проданных
2
забронированных
ОТПРАВЬТЕ ЗАПРОС
Еще объекты недвижимости в в этом комплексе
Продажа
Трехкомнатная квартира в Новостройки с актом 16 в кв. Сарафово
г. Бургас , кв. «Сарафово»
Продажа — трехкомнатная квартира
Продажа
Трехкомнатная квартира в Новостройки с актом 16 в кв. Сарафово
г. Бургас , кв. «Сарафово»
Продажа — трехкомнатная квартира
Продажа
Трехкомнатная квартира в Новостройки с актом 16 в кв. Сарафово
г. Бургас , кв. «Сарафово»
Продажа — трехкомнатная квартира
Продажа
Трехкомнатная квартира в Новостройки с актом 16 в кв. Сарафово
г. Бургас , кв. «Сарафово»
Продажа — трехкомнатная квартира
Продажа
Двухкомнатная квартира в Новостройки с актом 16 в кв. Сарафово
г. Бургас , кв. «Сарафово»
Продажа — двухкомнатная квартира
Продажа
Двухкомнатная квартира в Новостройки с актом 16 в кв. Сарафово
г. Бургас , кв. «Сарафово»
Продажа — двухкомнатная квартира
Продажа
Двухкомнатная квартира в Новостройки с актом 16 в кв. Сарафово
г. Бургас , кв. «Сарафово»
Продажа — двухкомнатная квартира
Продажа
Двухкомнатная квартира в Новостройки с актом 16 в кв. Сарафово
г. Бургас , кв. «Сарафово»
Продажа — двухкомнатная квартира
Продажа
Двухкомнатная квартира в Новостройки с актом 16 в кв. Сарафово
г. Бургас , кв. «Сарафово»
Продажа — двухкомнатная квартира
Продажа
Двухкомнатная квартира в Новостройки с актом 16 в кв. Сарафово
г. Бургас , кв. «Сарафово»
Продажа — двухкомнатная квартира
Еще объекты недвижимости в кв. Сарафово
Продажа
новинка
Люкс
ПЕРВАЯ ЛИНИЯ
Трехкомнатная квартира с видом на море на первой линии в Сарафово
г. Бургас , кв. «Сарафово»
Квартира с южной экспозицией в небольшом комплексе на берегу моря, на высоте 15 метров над уровнем моря
Трехкомнатная квартира с видом на море на первой линии в Сарафово - Квартира с южной экспозицией в небольшом комплексе на берегу моря, на высоте 15 метров над уровнем моря
Продажа
новинка
Элитный жилой дом с магазинами и детской площадкой в квартале Сарафово
г. Бургас , кв. «Сарафово»
Студии, двухкомнатные и трехкомнатные квартиры в здании без платы за обслуживание!
Элитный жилой дом с магазинами и детской площадкой в квартале Сарафово - Студии, двухкомнатные и трехкомнатные квартиры в здании без платы за обслуживание!
от € 48 000
(€/кв.м. 1 378 - €/кв.м. 1 552)Площадь: 31.41 - 102.73 кв.м.
Георги Иванов
Риэлтор, Бургас
Продажа
новинка
Новый построенный жилой комплекс в Сарафово
г. Бургас , кв. «Сарафово»
Последние просторные квартиры элитного строительства без платы за обслуживание
Новый построенный жилой комплекс в Сарафово - Последние просторные квартиры элитного строительства без платы за обслуживание
от € 94 380
(€/кв.м. 1 200 - €/кв.м. 1 250)Площадь: 78.65 - 103.29 кв.м.
Павел Раванов
Риэлтор, Бургас
Продажа
Новый строящийся жилой дом в кв. Сарафово
г. Бургас , кв. «Сарафово»
Различные типы современных квартир в 500 м от пляжа
Новый строящийся жилой дом в кв. Сарафово - Различные типы современных квартир в 500 м от пляжа
Продажа
Люкс
ВТОРАЯ ЛИНИЯ
Отличная трехкомнатная квартира с видом на море в Бургас
г. Бургас , кв. «Сарафово»
Меблированная квартира в стильном жилом доме в престижном районе Сарафово
Отличная трехкомнатная квартира с видом на море в Бургас - Меблированная квартира в стильном жилом доме в престижном районе Сарафово
Продажа
ВТОРАЯ ЛИНИЯ
Новый жилой проект на улице Манастирской в районе Сарафово
г. Бургас , кв. «Сарафово»
Разнообразные квартиры на второй линии от пляжа
Новый жилой проект на улице Манастирской в районе Сарафово - Разнообразные квартиры на второй линии от пляжа
Продажа
Новостройка с актом 14 в кв. Сарафово
г. Бургас , кв. «Сарафово»
Одно- и двухкомнатные квартиры в 300 метрах от пляжа и рядом с комплексом "Атлантис"
Новостройка с актом 14 в кв. Сарафово - Одно- и двухкомнатные квартиры в 300 метрах от пляжа и рядом с комплексом "Атлантис"
от € 88 000
(€/кв.м. 1 239 - €/кв.м. 1 241)Площадь: 70.93 - 88.77 кв.м.
Павел Раванов
Риэлтор, Бургас
Продажа
Однокомнатная квартира в закрытом комплексе в районе Сарафово, г. Бургас
г. Бургас , кв. «Сарафово»
Готовая для проживания или сдачи в аренду недвижимость рядом с морем
Однокомнатная квартира в закрытом комплексе в районе Сарафово, г. Бургас - Готовая для проживания или сдачи в аренду недвижимость рядом с морем
Аренда
Меблированный пентхаус в аренду с панорамным видом на море в районе Сарафово
г. Бургас , кв. «Сарафово»
Просторная квартира с большой террасой и впечатляющим морским пейзажем
Меблированный пентхаус в аренду с панорамным видом на море в районе Сарафово - Просторная квартира с большой террасой и впечатляющим морским пейзажем
Аренда
Двухкомнатная квартира недалеко от пляжа в Сарафово
г. Бургас , кв. «Сарафово»
Полностью меблированная квартира с видом на море и в тихом месте
Двухкомнатная квартира недалеко от пляжа в Сарафово - Полностью меблированная квартира с видом на море и в тихом месте
Продажа
Люкс
ПЕРВАЯ ЛИНИЯ
Трехкомнатная квартира Бургас
г. Бургас , кв. «Сарафово»
трехкомнатных квартир, Бургас
Трехкомнатная квартира Бургас - трехкомнатных квартир, Бургас
Продажа
Новый жилой проект в 300 м от пляжа в районе Сарафово
г. Бургас , кв. «Сарафово»
Последная квартира на берегу моря без таксы обслуживания рядом с магазинами, парками, школой, офисами и ресторанами
Новый жилой проект в 300 м от пляжа в районе Сарафово - Последная квартира на берегу моря без таксы обслуживания рядом с магазинами, парками, школой, офисами и ресторанами
Продажа
Последние квартиры с Актом 16 в кв. Сарафово
г. Бургас , кв. «Сарафово»
Последние квартиры на продажу в нескольких метрах от порта «Сарафово»
Последние квартиры с Актом 16 в кв. Сарафово - Последние квартиры на продажу в нескольких метрах от порта «Сарафово»
от € 130 000
(€/кв.м. 1 138 - €/кв.м. 1 990)Площадь: 67.43 - 316.33 кв.м.
Павел Раванов
Риэлтор, Бургас
Продажа
Трёхкомнатная квартира с видом на море
г. Бургас , кв. «Сарафово»
Недвижимость в здании с Актом 16 в р-не Сарафово
Трёхкомнатная квартира с видом на море - Недвижимость в здании с Актом 16 в р-не Сарафово
Аренда
Люкс
Двухкомнатная квартира на первой линии у моря в Сарафово
г. Бургас , кв. «Сарафово»
Квартира с мебелью и висом на море в аренду в Бургасе
Двухкомнатная квартира на первой линии у моря в Сарафово - Квартира с мебелью и висом на море в аренду в Бургасе
Продажа
Новый жилой проект с современной архитектурой и отличной локацией у моря
г. Бургас , кв. «Сарафово»
Отличные квартиры в новом здании в кв. Сарафово
Новый жилой проект с современной архитектурой и отличной локацией у моря - Отличные квартиры в новом здании в кв. Сарафово
от € 128 174
(€/кв.м. 690 - €/кв.м. 1 380)Площадь: 113.08 - 185.76 кв.м.
Павел Раванов
Риэлтор, Бургас
Продажа
Двухэтажный дом с участком в районе Лахана
г. Бургас , кв. «Сарафово»
Замечательный дом в закрытом комплексе в квартале Сарафово
Двухэтажный дом с участком в районе Лахана - Замечательный дом в закрытом комплексе в квартале Сарафово
Продажа
Элегантный двухэтажный дом в закрытом комплексе в местности «Лахана»
г. Бургас , кв. «Сарафово»
Прекрасный двухэтажный дом между Бургасом и Поморием
Элегантный двухэтажный дом в закрытом комплексе в местности «Лахана» - Прекрасный двухэтажный дом между Бургасом и Поморием
Продажа
Новые дома с выгодным расположением в районе Лахана
г. Бургас , кв. «Сарафово»
Отдельные двухэтажные дома с частным двором в 300 м от пляжа
Новые дома с выгодным расположением в районе Лахана - Отдельные двухэтажные дома с частным двором в 300 м от пляжа
Продажа
ПЕРВАЯ ЛИНИЯ
Просторная новая трехкомнатная квартира в кв. Сарафово
г. Бургас , кв. «Сарафово»
Квартира с возможностью переоборудования в четырехкомнатную с садом над землей
Просторная новая трехкомнатная квартира в кв. Сарафово - Квартира с возможностью переоборудования в четырехкомнатную с садом над землей
Продажа
Люкс
Новые построенные дома в комплексе в Сарафово
г. Бургас , кв. «Сарафово»
Дома в живописном районе в 500 м от пляжа
Новые построенные дома в комплексе в Сарафово - Дома в живописном районе в 500 м от пляжа
Еще объекты недвижимости в г. Бургас
Продажа
Люкс
Высококлассный жилой проект с теплым соединением с торговым центром Grand Plaza
г. Бургас , кв. «Хоризонт»
Резиденции в современном закрытом комплексе в Бургас
Высококлассный жилой проект с теплым соединением с торговым центром Grand Plaza - Резиденции в современном закрытом комплексе в Бургас
Продажа
новинка
Хит продаж
Люкс
Разнообразные квартиры в районе Горизонт
г. Бургас , кв. «Хоризонт»
Новый жилой дом рядом с Университетом им. проф. Асена Златарова
Разнообразные квартиры в районе Горизонт - Новый жилой дом рядом с Университетом им. проф. Асена Златарова
Продажа
новинка
Новое жилое здание в районе Меден Рудник, зона B
г. Бургас , кв. «Меден рудник - зона В»
Современная архитектура, функциональные квартиры и удобная городская локация
Новое жилое здание в районе Меден Рудник, зона B - Современная архитектура, функциональные квартиры и удобная городская локация
от € 66 643
(€/кв.м. 1 100 - €/кв.м. 1 150)Площадь: 57.95 - 120.02 кв.м.
Павел Раванов
Риэлтор, Бургас
Продажа
новинка
Люкс
ПЕРВАЯ ЛИНИЯ
Трехкомнатная квартира с видом на море на первой линии в Сарафово
г. Бургас , кв. «Сарафово»
Квартира с южной экспозицией в небольшом комплексе на берегу моря, на высоте 15 метров над уровнем моря
Трехкомнатная квартира с видом на море на первой линии в Сарафово - Квартира с южной экспозицией в небольшом комплексе на берегу моря, на высоте 15 метров над уровнем моря
Продажа
новинка
Люкс
Azimuth Ring – новый современный жилой квартал в Бургасе
г. Бургас , кв. «Хоризонт»
Масштабный городской проект с долгосрочной концепцией
Azimuth Ring – новый современный жилой квартал в Бургасе - Масштабный городской проект с долгосрочной концепцией
от € 61 167
(€/кв.м. 1 450 - €/кв.м. 1 670)Площадь: 38.47 - 127.50 кв.м.
Георги Иванов
Риэлтор, Бургас
Продажа
новинка
Ресторан, бар Бургас
г. Бургас , кв. «Вызраждане»
ресторанов и баров, Бургас
Ресторан, бар Бургас - ресторанов и баров, Бургас
Продажа
новинка
Новый современный жилой проект в престижном районе г. Бургас
г. Бургас , кв. «Меден рудник - зона Г»
Современное здание с функциональными квартирами, удобное расположение и отличный инвестиционный потенциал
Новый современный жилой проект в престижном районе г. Бургас - Современное здание с функциональными квартирами, удобное расположение и отличный инвестиционный потенциал
Продажа
новинка
Элитный жилой дом с магазинами и детской площадкой в квартале Сарафово
г. Бургас , кв. «Сарафово»
Студии, двухкомнатные и трехкомнатные квартиры в здании без платы за обслуживание!
Элитный жилой дом с магазинами и детской площадкой в квартале Сарафово - Студии, двухкомнатные и трехкомнатные квартиры в здании без платы за обслуживание!
от € 48 000
(€/кв.м. 1 378 - €/кв.м. 1 552)Площадь: 31.41 - 102.73 кв.м.
Георги Иванов
Риэлтор, Бургас
Продажа
новинка
Новый построенный жилой комплекс в Сарафово
г. Бургас , кв. «Сарафово»
Последние просторные квартиры элитного строительства без платы за обслуживание
Новый построенный жилой комплекс в Сарафово - Последние просторные квартиры элитного строительства без платы за обслуживание
от € 94 380
(€/кв.м. 1 200 - €/кв.м. 1 250)Площадь: 78.65 - 103.29 кв.м.
Павел Раванов
Риэлтор, Бургас
Продажа
новинка
Новый жилой проект без платы за обслуживание в Меден Рудник
г. Бургас , кв. «Меден рудник - зона Д»
Просторные новые квартиры в закрытом комплексе рядом с супермаркетом, школой и детским садом
Новый жилой проект без платы за обслуживание в Меден Рудник - Просторные новые квартиры в закрытом комплексе рядом с супермаркетом, школой и детским садом
Продажа
новинка
Строящаяся новостройка в жилом комплексе Меден Рудник
г. Бургас , кв. «Меден рудник - зона Г»
Двухкомнатные квартиры с проверенным качеством, надежностью, безопасной и спокойной средой обитания
Строящаяся новостройка в жилом комплексе Меден Рудник - Двухкомнатные квартиры с проверенным качеством, надежностью, безопасной и спокойной средой обитания
Продажа
новинка
Двухкомнатная квартира с двориком в Grand Plaza Residence, Бургас
г. Бургас , кв. «Хоризонт»
Новая квартира без отделки в современном жилом комплексе
Двухкомнатная квартира с двориком в Grand Plaza Residence, Бургас - Новая квартира без отделки в современном жилом комплексе
Продажа
Двухкомнатная квартира с Актом 14 в новом жилом доме
г. Бургас , кв. «Меден рудник - зона Г»
Светлая квартира с удобной планировкой в районе Меден Рудник, Бургас
Двухкомнатная квартира с Актом 14 в новом жилом доме - Светлая квартира с удобной планировкой в районе Меден Рудник, Бургас
Продажа
Помещение на первом этаже в самом центре Бургаса
г. Бургас , «Центр»
Компактный объект с отличным бизнес-потенциалом
Помещение на первом этаже в самом центре Бургаса - Компактный объект с отличным бизнес-потенциалом
Аренда
Люкс
Современно меблированная трехкомнатная квартира в аренду в ж.к. Изгрев
г. Бургас , кв. «Изгрев»
Комфортное жильё в хорошо благоустроенном и предпочитаемом районе города Бургас
Современно меблированная трехкомнатная квартира в аренду в ж.к. Изгрев - Комфортное жильё в хорошо благоустроенном и предпочитаемом районе города Бургас
Продажа
Люкс
Новый жилой дом в районе «Горизонт»
г. Бургас , кв. «Хоризонт»
Роскошные дома в районе Бургасского метрополитена с быстрым доступом к автомагистрали и городской инфраструктуре
Новый жилой дом в районе «Горизонт» - Роскошные дома в районе Бургасского метрополитена с быстрым доступом к автомагистрали и городской инфраструктуре
Продажа
Новый строящийся жилой дом в кв. Сарафово
г. Бургас , кв. «Сарафово»
Различные типы современных квартир в 500 м от пляжа
Новый строящийся жилой дом в кв. Сарафово - Различные типы современных квартир в 500 м от пляжа
Продажа
Люкс
ВТОРАЯ ЛИНИЯ
Отличная трехкомнатная квартира с видом на море в Бургас
г. Бургас , кв. «Сарафово»
Меблированная квартира в стильном жилом доме в престижном районе Сарафово
Отличная трехкомнатная квартира с видом на море в Бургас - Меблированная квартира в стильном жилом доме в престижном районе Сарафово
Продажа
Здание без платы за обслуживание в кв. Славейков
г. Бургас , кв. «Славейков»
Двухкомнатные квартиры, трехкомнатные квартиры, офисы и магазины на бульваре. Янко Комитов
Здание без платы за обслуживание в кв. Славейков - Двухкомнатные квартиры, трехкомнатные квартиры, офисы и магазины на бульваре. Янко Комитов
от € 94 833
(€/кв.м. 1 750 - €/кв.м. 2 100)Площадь: 54.19 - 194.95 кв.м.
Павел Раванов
Риэлтор, Бургас
Продажа
ВТОРАЯ ЛИНИЯ
Новый жилой проект на улице Манастирской в районе Сарафово
г. Бургас , кв. «Сарафово»
Разнообразные квартиры на второй линии от пляжа
Новый жилой проект на улице Манастирской в районе Сарафово - Разнообразные квартиры на второй линии от пляжа
Продажа
Новый строящийся жилой дом в г.к. Зорница, Бургас
г. Бургас , кв. «Зорница»
Двухкомнатные и трехкомнатные квартиры без платы за обслуживание в 600 м от моря
Новый строящийся жилой дом в г.к. Зорница, Бургас - Двухкомнатные и трехкомнатные квартиры без платы за обслуживание в 600 м от моря
от € 220 638
(€/кв.м. 1 800 - €/кв.м. 1 930)Площадь: 114.32 - 134.22 кв.м.
Павел Раванов
Риэлтор, Бургас
Продажа
Современный жилой дом в районе Зорница
г. Бургас , кв. «Зорница»
Двухкомнатные и трёхкомнатные квартиры в тихом районе с отличной инфраструктурой
Современный жилой дом в районе Зорница - Двухкомнатные и трёхкомнатные квартиры в тихом районе с отличной инфраструктурой
от € 146 942
(€/кв.м. 800 - €/кв.м. 2 200)Площадь: 71.40 - 323.51 кв.м.
Георги Иванов
Риэлтор, Бургас
Продажа
Студия на главной дороге в Равде
с. Равда
Удобный объект для проживания или инвестиций
Студия на главной дороге в Равде - Удобный объект для проживания или инвестиций
Продажа
Двухкомнатная квартира с отличным расположением и потенциалом в районе Вазраждане
г. Бургас , кв. «Вызраждане»
Двухкомнатная квартира в удобном и коммуникабельном районе Бургаса
Двухкомнатная квартира с отличным расположением и потенциалом в районе Вазраждане - Двухкомнатная квартира в удобном и коммуникабельном районе Бургаса
Продажа
Новостройка с актом 14 в кв. Сарафово
г. Бургас , кв. «Сарафово»
Одно- и двухкомнатные квартиры в 300 метрах от пляжа и рядом с комплексом "Атлантис"
Новостройка с актом 14 в кв. Сарафово - Одно- и двухкомнатные квартиры в 300 метрах от пляжа и рядом с комплексом "Атлантис"
от € 88 000
(€/кв.м. 1 239 - €/кв.м. 1 241)Площадь: 70.93 - 88.77 кв.м.
Павел Раванов
Риэлтор, Бургас
Подписывайтесь на наш канал