0
Здравствуйте,
Любимые предложения (0)
Сохраненные поиски
Специально для вас
Уведомления
Подписки
Настройки
Выход
Закрыть

Удобства района

    ТРАНСПОРТ

  • Автобусная остановка "УЛ. ЛУИ АЙЕР" 232 м (3 мин.) - Автобус No: 801
  • Остановка троллейбуса "Ж.К. ГОЦЕ ДЕЛЧЕВ" 360 м (5 мин.) - Троллейбус No: 8, 7
  • Остановка трамвая "КВ. МАНАСТИРСКИ ЛИВАДИ - ЗАПАД" 1.0 км (13 мин.) - Трамвай No: 27, 7
  • УСЛУГИ

  • Почта "Speedy" 464 м (6 мин.)
  • Почта "Еконт" 468 м (6 мин.)
  • Салон красоты "R" 406 м (5 мин.)
  • ЗАВЕДЕНИЯ

  • Ресторан "Yany steak&wine" 397 м (5 мин.)
  • Ресторан 598 м (8 мин.)
  • Бар "Емералд Бар & Лаундж" 570 м (7 мин.)
  • СПОРТ И СВОБОДНОЕ ВРЕМЯ

  • Детская площадка "Бримекс" 445 м (6 мин.)
  • Фитнес 564 м (7 мин.)
  • ПРИРОДА И РАЗВЛЕЧЕНИЯ

  • Сад 333 м (5 мин.)

ОТПРАВЬТЕ ЗАПРОС

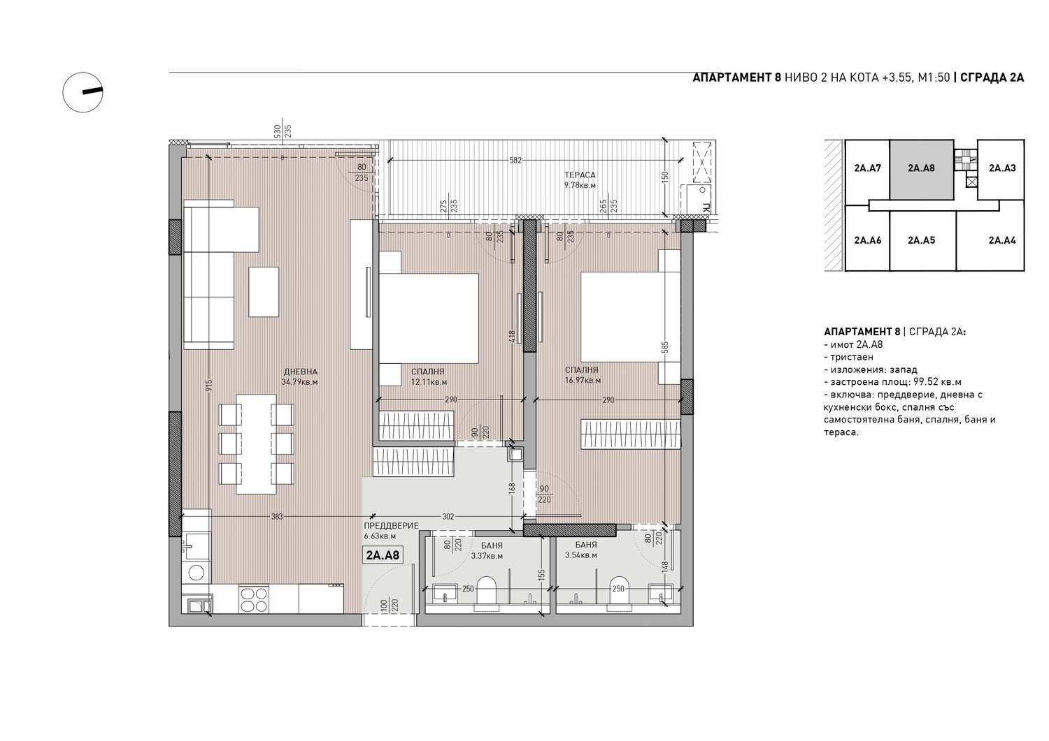
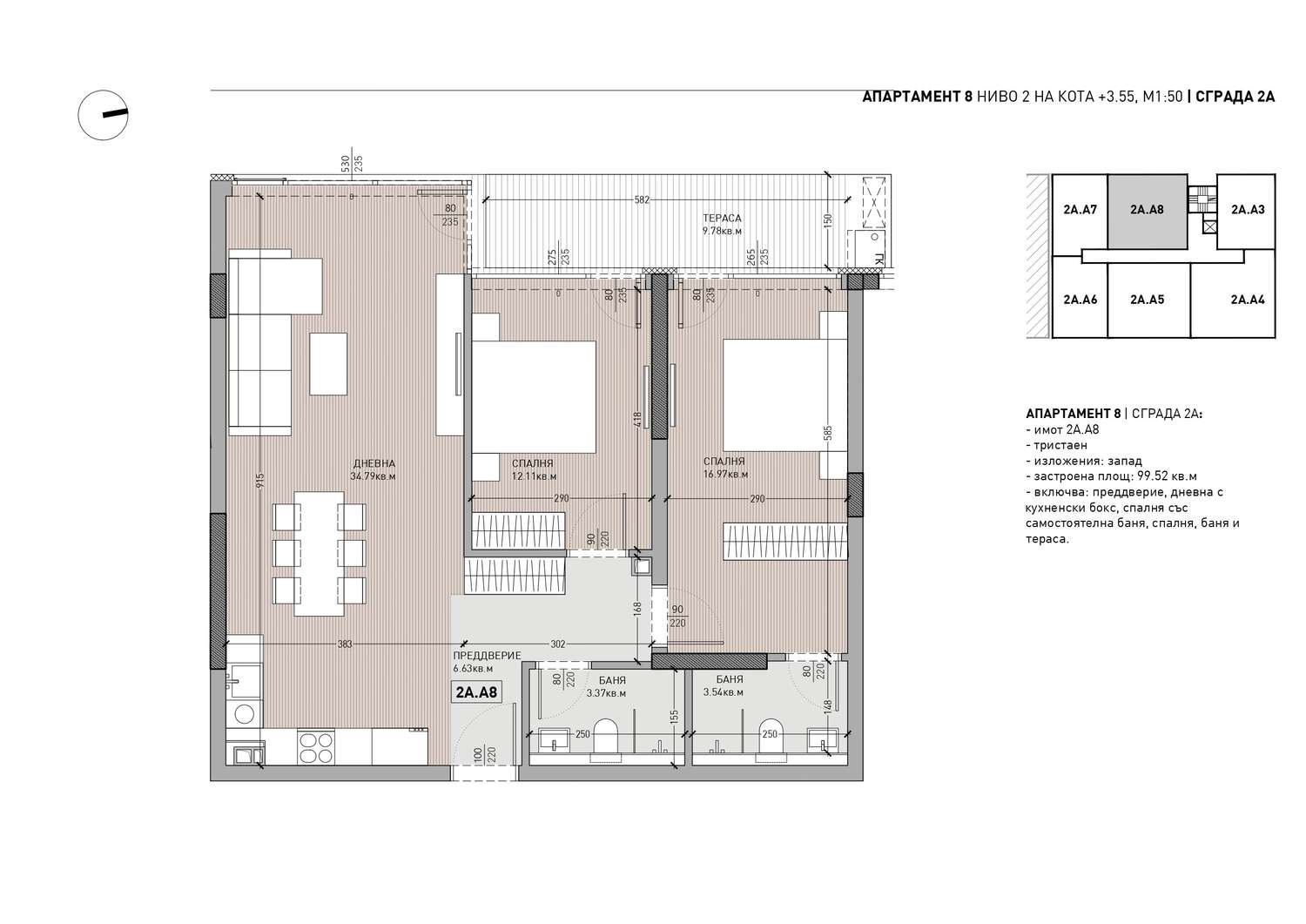
308 000
(2 605 €/кв.м.) Площадь: 118.23 кв.м.   
  • руб.
  • $
Платежи с карты и PayPal.
Располагаем онлайн ПОС терминалом
Комплекс строится Ввод в эксплуатацию: 30.06.2029 г
Агенству причитается комиссия
Прайс-лист
ПОДРОБНАЯ ИНФОРМАЦИЯ Реф. номер: Sfb 88614

При звонке, пожалуйста, указывайте номер объекта недвижимости.

Иванка Стойкова

Иванка Стойкова

Офис София - Бъкстон
р-он Бъкстон, бул. Братя Бъкстон 31А, г. София, Болгария Все объекты (110)
Объектов недвижимости в этом комплексе
147
объектов недвижимости
128
свободных
12
проданных
7
забронированных

ОТПРАВЬТЕ ЗАПРОС

Еще объекты недвижимости в в этом комплексе

Функциональные и просторные квартиры, высококачественное строительство, окруженный зеленью, рядом с детским садом, с удобным доступом к основным бульварам
Продажа
Трехкомнатная квартира в Жилой комплекс класса «бутик» в квартале «Манастирски Ливади-Восток» г. София , кв. «Манастирски Ливади» Функциональные и просторные квартиры, высококачественное строительство, окруженный зеленью, рядом с детским садом, с удобным доступом к основным бульварам
Функциональные и просторные квартиры, высококачественное строительство, окруженный зеленью, рядом с детским садом, с удобным доступом к основным бульварам
Продажа
Трехкомнатная квартира в Жилой комплекс класса «бутик» в квартале «Манастирски Ливади-Восток» г. София , кв. «Манастирски Ливади» Функциональные и просторные квартиры, высококачественное строительство, окруженный зеленью, рядом с детским садом, с удобным доступом к основным бульварам
Функциональные и просторные квартиры, высококачественное строительство, окруженный зеленью, рядом с детским садом, с удобным доступом к основным бульварам
Продажа
Трехкомнатная квартира в Жилой комплекс класса «бутик» в квартале «Манастирски Ливади-Восток» г. София , кв. «Манастирски Ливади» Функциональные и просторные квартиры, высококачественное строительство, окруженный зеленью, рядом с детским садом, с удобным доступом к основным бульварам
Функциональные и просторные квартиры, высококачественное строительство, окруженный зеленью, рядом с детским садом, с удобным доступом к основным бульварам
Продажа
Трехкомнатная квартира в Жилой комплекс класса «бутик» в квартале «Манастирски Ливади-Восток» г. София , кв. «Манастирски Ливади» Функциональные и просторные квартиры, высококачественное строительство, окруженный зеленью, рядом с детским садом, с удобным доступом к основным бульварам
Функциональные и просторные квартиры, высококачественное строительство, окруженный зеленью, рядом с детским садом, с удобным доступом к основным бульварам
Продажа
Трехкомнатная квартира в Жилой комплекс класса «бутик» в квартале «Манастирски Ливади-Восток» г. София , кв. «Манастирски Ливади» Функциональные и просторные квартиры, высококачественное строительство, окруженный зеленью, рядом с детским садом, с удобным доступом к основным бульварам
Функциональные и просторные квартиры, высококачественное строительство, окруженный зеленью, рядом с детским садом, с удобным доступом к основным бульварам
Продажа
Трехкомнатная квартира в Жилой комплекс класса «бутик» в квартале «Манастирски Ливади-Восток» г. София , кв. «Манастирски Ливади» Функциональные и просторные квартиры, высококачественное строительство, окруженный зеленью, рядом с детским садом, с удобным доступом к основным бульварам
Функциональные и просторные квартиры, высококачественное строительство, окруженный зеленью, рядом с детским садом, с удобным доступом к основным бульварам
Продажа
Трехкомнатная квартира в Жилой комплекс класса «бутик» в квартале «Манастирски Ливади-Восток» г. София , кв. «Манастирски Ливади» Функциональные и просторные квартиры, высококачественное строительство, окруженный зеленью, рядом с детским садом, с удобным доступом к основным бульварам
Функциональные и просторные квартиры, высококачественное строительство, окруженный зеленью, рядом с детским садом, с удобным доступом к основным бульварам
Продажа
Магазин в Жилой комплекс класса «бутик» в квартале «Манастирски Ливади-Восток» г. София , кв. «Манастирски Ливади» Функциональные и просторные квартиры, высококачественное строительство, окруженный зеленью, рядом с детским садом, с удобным доступом к основным бульварам
Функциональные и просторные квартиры, высококачественное строительство, окруженный зеленью, рядом с детским садом, с удобным доступом к основным бульварам
Продажа
Магазин в Жилой комплекс класса «бутик» в квартале «Манастирски Ливади-Восток» г. София , кв. «Манастирски Ливади» Функциональные и просторные квартиры, высококачественное строительство, окруженный зеленью, рядом с детским садом, с удобным доступом к основным бульварам
Функциональные и просторные квартиры, высококачественное строительство, окруженный зеленью, рядом с детским садом, с удобным доступом к основным бульварам
Продажа
Двухкомнатная квартира в Жилой комплекс класса «бутик» в квартале «Манастирски Ливади-Восток» г. София , кв. «Манастирски Ливади» Функциональные и просторные квартиры, высококачественное строительство, окруженный зеленью, рядом с детским садом, с удобным доступом к основным бульварам
Функциональные и просторные квартиры, высококачественное строительство, окруженный зеленью, рядом с детским садом, с удобным доступом к основным бульварам
Продажа
Трехкомнатная квартира в Жилой комплекс класса «бутик» в квартале «Манастирски Ливади-Восток» г. София , кв. «Манастирски Ливади» Функциональные и просторные квартиры, высококачественное строительство, окруженный зеленью, рядом с детским садом, с удобным доступом к основным бульварам
Функциональные и просторные квартиры, высококачественное строительство, окруженный зеленью, рядом с детским садом, с удобным доступом к основным бульварам
Продажа
Двухкомнатная квартира в Жилой комплекс класса «бутик» в квартале «Манастирски Ливади-Восток» г. София , кв. «Манастирски Ливади» Функциональные и просторные квартиры, высококачественное строительство, окруженный зеленью, рядом с детским садом, с удобным доступом к основным бульварам
Функциональные и просторные квартиры, высококачественное строительство, окруженный зеленью, рядом с детским садом, с удобным доступом к основным бульварам
Продажа
Трехкомнатная квартира в Жилой комплекс класса «бутик» в квартале «Манастирски Ливади-Восток» г. София , кв. «Манастирски Ливади» Функциональные и просторные квартиры, высококачественное строительство, окруженный зеленью, рядом с детским садом, с удобным доступом к основным бульварам
Функциональные и просторные квартиры, высококачественное строительство, окруженный зеленью, рядом с детским садом, с удобным доступом к основным бульварам
Продажа
Двухкомнатная квартира в Жилой комплекс класса «бутик» в квартале «Манастирски Ливади-Восток» г. София , кв. «Манастирски Ливади» Функциональные и просторные квартиры, высококачественное строительство, окруженный зеленью, рядом с детским садом, с удобным доступом к основным бульварам
Функциональные и просторные квартиры, высококачественное строительство, окруженный зеленью, рядом с детским садом, с удобным доступом к основным бульварам
Продажа
Трехкомнатная квартира в Жилой комплекс класса «бутик» в квартале «Манастирски Ливади-Восток» г. София , кв. «Манастирски Ливади» Функциональные и просторные квартиры, высококачественное строительство, окруженный зеленью, рядом с детским садом, с удобным доступом к основным бульварам
Функциональные и просторные квартиры, высококачественное строительство, окруженный зеленью, рядом с детским садом, с удобным доступом к основным бульварам
Продажа
Двухкомнатная квартира в Жилой комплекс класса «бутик» в квартале «Манастирски Ливади-Восток» г. София , кв. «Манастирски Ливади» Функциональные и просторные квартиры, высококачественное строительство, окруженный зеленью, рядом с детским садом, с удобным доступом к основным бульварам
Функциональные и просторные квартиры, высококачественное строительство, окруженный зеленью, рядом с детским садом, с удобным доступом к основным бульварам
Продажа
Трехкомнатная квартира в Жилой комплекс класса «бутик» в квартале «Манастирски Ливади-Восток» г. София , кв. «Манастирски Ливади» Функциональные и просторные квартиры, высококачественное строительство, окруженный зеленью, рядом с детским садом, с удобным доступом к основным бульварам
Функциональные и просторные квартиры, высококачественное строительство, окруженный зеленью, рядом с детским садом, с удобным доступом к основным бульварам
Продажа
Двухкомнатная квартира в Жилой комплекс класса «бутик» в квартале «Манастирски Ливади-Восток» г. София , кв. «Манастирски Ливади» Функциональные и просторные квартиры, высококачественное строительство, окруженный зеленью, рядом с детским садом, с удобным доступом к основным бульварам
Функциональные и просторные квартиры, высококачественное строительство, окруженный зеленью, рядом с детским садом, с удобным доступом к основным бульварам
Продажа
Трехкомнатная квартира в Жилой комплекс класса «бутик» в квартале «Манастирски Ливади-Восток» г. София , кв. «Манастирски Ливади» Функциональные и просторные квартиры, высококачественное строительство, окруженный зеленью, рядом с детским садом, с удобным доступом к основным бульварам
Функциональные и просторные квартиры, высококачественное строительство, окруженный зеленью, рядом с детским садом, с удобным доступом к основным бульварам
Продажа
Двухкомнатная квартира в Жилой комплекс класса «бутик» в квартале «Манастирски Ливади-Восток» г. София , кв. «Манастирски Ливади» Функциональные и просторные квартиры, высококачественное строительство, окруженный зеленью, рядом с детским садом, с удобным доступом к основным бульварам
Функциональные и просторные квартиры, высококачественное строительство, окруженный зеленью, рядом с детским садом, с удобным доступом к основным бульварам
Продажа
Трехкомнатная квартира в Жилой комплекс класса «бутик» в квартале «Манастирски Ливади-Восток» г. София , кв. «Манастирски Ливади» Функциональные и просторные квартиры, высококачественное строительство, окруженный зеленью, рядом с детским садом, с удобным доступом к основным бульварам
Функциональные и просторные квартиры, высококачественное строительство, окруженный зеленью, рядом с детским садом, с удобным доступом к основным бульварам
Продажа
Двухкомнатная квартира в Жилой комплекс класса «бутик» в квартале «Манастирски Ливади-Восток» г. София , кв. «Манастирски Ливади» Функциональные и просторные квартиры, высококачественное строительство, окруженный зеленью, рядом с детским садом, с удобным доступом к основным бульварам
Функциональные и просторные квартиры, высококачественное строительство, окруженный зеленью, рядом с детским садом, с удобным доступом к основным бульварам
Продажа
Трехкомнатная квартира в Жилой комплекс класса «бутик» в квартале «Манастирски Ливади-Восток» г. София , кв. «Манастирски Ливади» Функциональные и просторные квартиры, высококачественное строительство, окруженный зеленью, рядом с детским садом, с удобным доступом к основным бульварам
Функциональные и просторные квартиры, высококачественное строительство, окруженный зеленью, рядом с детским садом, с удобным доступом к основным бульварам
Продажа
Трехкомнатная квартира в Жилой комплекс класса «бутик» в квартале «Манастирски Ливади-Восток» г. София , кв. «Манастирски Ливади» Функциональные и просторные квартиры, высококачественное строительство, окруженный зеленью, рядом с детским садом, с удобным доступом к основным бульварам
Функциональные и просторные квартиры, высококачественное строительство, окруженный зеленью, рядом с детским садом, с удобным доступом к основным бульварам
Продажа
Трехкомнатная квартира в Жилой комплекс класса «бутик» в квартале «Манастирски Ливади-Восток» г. София , кв. «Манастирски Ливади» Функциональные и просторные квартиры, высококачественное строительство, окруженный зеленью, рядом с детским садом, с удобным доступом к основным бульварам

Еще объекты недвижимости в кв. Манастирски Ливади

Роскошный комплекс с панорамными видами, топовой локацией и впечатляющим силуэтом, расположенный между городской динамикой и горами.
Продажа
эксклюзивно Люкс
SKY TOWERS by AMur — Новый архитектурный символ Софии г. София , кв. «Манастирски Ливади» Роскошный комплекс с панорамными видами, топовой локацией и впечатляющим силуэтом, расположенный между городской динамикой и горами. SKY TOWERS by AMur — Новый архитектурный символ Софии - Роскошный комплекс с панорамными видами, топовой локацией и впечатляющим силуэтом, расположенный между городской динамикой и горами.
Здание, объединяющее городскую динамику и близость к природе
Продажа
эксклюзивно Люкс
Synera Residence — новые квартиры в р-не Манастирски Ливади г. София , кв. «Манастирски Ливади» Здание, объединяющее городскую динамику и близость к природе Synera Residence — новые квартиры в р-не Манастирски Ливади - Здание, объединяющее городскую динамику и близость к природе
от 130 000
(€/кв.м. 2 492 - €/кв.м. 3 382)Площадь: 52.17 - 208.03 кв.м.
Даниела Тотева Риэлтор, София - Центральный
Квартиры с 1, 2 или 3 спальнями рядом с Витошей и с удобным сообщением с центром столицы
Продажа
Новое здание всего с 16 квартирами в кв. Манастирски Ливади г. София , кв. «Манастирски Ливади» Квартиры с 1, 2 или 3 спальнями рядом с Витошей и с удобным сообщением с центром столицы Новое здание всего с 16 квартирами в кв. Манастирски Ливади - Квартиры с 1, 2 или 3 спальнями рядом с Витошей и с удобным сообщением с центром столицы
Новые дома с современной архитектурой и престижным расположением от проверенного застройщика
Продажа
новинка
Элитный жилой комплекс в Манастирски Ливади – Восточный район г. София , кв. «Манастирски Ливади» Новые дома с современной архитектурой и престижным расположением от проверенного застройщика Элитный жилой комплекс в Манастирски Ливади – Восточный район - Новые дома с современной архитектурой и престижным расположением от проверенного застройщика
от 182 607
(€/кв.м. 2 319 - €/кв.м. 3 179)Площадь: 71.50 - 193.67 кв.м.
Савина Божилова Риэлтор, София - Центральный
Современный комплекс с отличным расположением, зеленой средой и долгосрочной инвестиционной ценностью
Продажа
новинка
Жилой комплекс высокого класса в Манастирски ливади – Восток г. София , кв. «Манастирски Ливади» Современный комплекс с отличным расположением, зеленой средой и долгосрочной инвестиционной ценностью Жилой комплекс высокого класса в Манастирски ливади – Восток - Современный комплекс с отличным расположением, зеленой средой и долгосрочной инвестиционной ценностью
от 163 827
(€/кв.м. 2 260 - €/кв.м. 3 075)Площадь: 71.40 - 180.23 кв.м.
Савина Божилова Риэлтор, София - Центральный
Современная квартира с двумя санузлами в новом жилом доме
Продажа
новинка Люкс
Трёхкомнатная квартира в комплексе Jade 2, Манастирски ливади – восток г. София , кв. «Манастирски Ливади» Современная квартира с двумя санузлами в новом жилом доме Трёхкомнатная квартира в комплексе Jade 2, Манастирски ливади – восток - Современная квартира с двумя санузлами в новом жилом доме
Современная архитектура, надёжный застройщик и панорамный вид на гору Витоша
Продажа
Южная двухкомнатная квартира по акционной цене в районе Манастирски Ливади г. София , кв. «Манастирски Ливади» Современная архитектура, надёжный застройщик и панорамный вид на гору Витоша Южная двухкомнатная квартира по акционной цене в районе Манастирски Ливади - Современная архитектура, надёжный застройщик и панорамный вид на гору Витоша
Квартира с южной ориентацией на среднем этаже с видом на Копитото
Продажа
Люкс
Двухкомнатная квартира по акционной цене в кв. Манастирски ливади г. София , кв. «Манастирски Ливади» Квартира с южной ориентацией на среднем этаже с видом на Копитото Двухкомнатная квартира по акционной цене в кв. Манастирски ливади - Квартира с южной ориентацией на среднем этаже с видом на Копитото
Новое жилье высокого класса с городской панорамой
Продажа
Светлая трехкомнатная квартира в районе Манастирски ливади г. София , кв. «Манастирски Ливади» Новое жилье высокого класса с городской панорамой Светлая трехкомнатная квартира в районе Манастирски ливади - Новое жилье высокого класса с городской панорамой
Светлая квартира с двумя спальнями и двумя ванными комнатами в отличной локации
Продажа
Просторная южная трёхкомнатная квартира в районе Манастирски Ливади, София г. София , кв. «Манастирски Ливади» Светлая квартира с двумя спальнями и двумя ванными комнатами в отличной локации Просторная южная трёхкомнатная квартира в районе Манастирски Ливади, София - Светлая квартира с двумя спальнями и двумя ванными комнатами в отличной локации
Новое жильё с южной ориентацией и панорамным видом на Витошу и Копитото
Продажа
Двухкомнатная квартира по акционной цене в районе Манастирски ливади г. София , кв. «Манастирски Ливади» Новое жильё с южной ориентацией и панорамным видом на Витошу и Копитото Двухкомнатная квартира по акционной цене в районе Манастирски ливади - Новое жильё с южной ориентацией и панорамным видом на Витошу и Копитото
Премиум качество, функциональная планировка и отличное расположение
Продажа
Люкс
Трёхкомнатная квартира в современном жилом доме в кв. Манастирски ливади г. София , кв. «Манастирски Ливади» Премиум качество, функциональная планировка и отличное расположение Трёхкомнатная квартира в современном жилом доме в кв. Манастирски ливади - Премиум качество, функциональная планировка и отличное расположение
Парковочные места в здании с Актом 16, контролируемым доступом и престижным расположением рядом с Amur Residence
Аренда
Наружные парковочные места в аренду в районе Манастирски ливади – Запад г. София , кв. «Манастирски Ливади» Парковочные места в здании с Актом 16, контролируемым доступом и престижным расположением рядом с Amur Residence Наружные парковочные места в аренду в районе Манастирски ливади – Запад - Парковочные места в здании с Актом 16, контролируемым доступом и престижным расположением рядом с Amur Residence
Современная архитектура, надёжный застройщик и отличное расположение
Продажа
Южная двухкомнатная квартира с уникальным видом на Копитото – Манастирски Ливади г. София , кв. «Манастирски Ливади» Современная архитектура, надёжный застройщик и отличное расположение Южная двухкомнатная квартира с уникальным видом на Копитото – Манастирски Ливади - Современная архитектура, надёжный застройщик и отличное расположение
Современная архитектура, проверенный инвестор и отличная локация на юге Софии
Продажа
Люкс Акция
Жилой проект высокого класса в районе Манастирски ливади – престиж, комфорт и современное видение г. София , кв. «Манастирски Ливади» Современная архитектура, проверенный инвестор и отличная локация на юге Софии Жилой проект высокого класса в районе Манастирски ливади – престиж, комфорт и современное видение - Современная архитектура, проверенный инвестор и отличная локация на юге Софии
Меблированная квартира с парковкой и удобным расположением
Аренда
Трёхкомнатная квартира в аренду в районе Манастирски ливади, София г. София , кв. «Манастирски Ливади» Меблированная квартира с парковкой и удобным расположением Трёхкомнатная квартира в аренду в районе Манастирски ливади, София - Меблированная квартира с парковкой и удобным расположением
Полностью меблированное современное жильё с газовым отоплением и отличным расположением
Аренда
Двухкомнатная квартира в аренду в районе Манастирски ливади г. София , кв. «Манастирски Ливади» Полностью меблированное современное жильё с газовым отоплением и отличным расположением Двухкомнатная квартира в аренду в районе Манастирски ливади - Полностью меблированное современное жильё с газовым отоплением и отличным расположением
Новая квартира на последнем этаже с панорамным видом
Продажа
Трёхкомнатная квартира в комплексе Mona 4, Манастирски ливади г. София , кв. «Манастирски Ливади» Новая квартира на последнем этаже с панорамным видом Трёхкомнатная квартира в комплексе Mona 4, Манастирски ливади - Новая квартира на последнем этаже с панорамным видом
Парковочное место с отличным доступом к новым зданиям в районе Манастирски ливади.
Продажа
Место для парковки на улице рядом с Amur Residence и магазином KiK в кв. Манастирски ливади г. София , кв. «Манастирски Ливади» Парковочное место с отличным доступом к новым зданиям в районе Манастирски ливади. Место для парковки на улице рядом с Amur Residence и магазином KiK в кв. Манастирски ливади - Парковочное место с отличным доступом к новым зданиям в районе Манастирски ливади.
Элитный энергоэффективный комплекс вблизи Южного парка, станции метро и крупных торговых центров
Продажа
Современный жилой дом в Монастырские луга-Восток г. София , кв. «Манастирски Ливади» Элитный энергоэффективный комплекс вблизи Южного парка, станции метро и крупных торговых центров Современный жилой дом в Монастырские луга-Восток - Элитный энергоэффективный комплекс вблизи Южного парка, станции метро и крупных торговых центров
от 239 200
(€/кв.м. 2 969 - €/кв.м. 3 700)Площадь: 69.72 - 267.34 кв.м.
Иванка Стойкова Риэлтор / Партнер, София - Бъкстон
Жилье с тремя спальнями и кабинетом в престижном здании с детским садом и целостным современным визионом
Продажа
Люкс
Последний квартира в современном здании с Актом 16 до бул. България г. София , кв. «Манастирски Ливади» Жилье с тремя спальнями и кабинетом в престижном здании с детским садом и целостным современным визионом Последний квартира в современном здании с Актом 16 до бул. България - Жилье с тремя спальнями и кабинетом в престижном здании с детским садом и целостным современным визионом
Качественные квартиры с просторной и комфортной жилой площадью рядом с городскими достопримечательностями
Продажа
Современный жилой дом в Манастирски ливади-изток г. София , кв. «Манастирски Ливади» Качественные квартиры с просторной и комфортной жилой площадью рядом с городскими достопримечательностями Современный жилой дом в Манастирски ливади-изток - Качественные квартиры с просторной и комфортной жилой площадью рядом с городскими достопримечательностями
от 309 000
(€/кв.м. 1 959 - €/кв.м. 3 410)Площадь: 121.00 - 180.64 кв.м.
Иванка Стойкова Риэлтор / Партнер, София - Бъкстон
Подземный гараж в здании на бул. Тодор Каблешков в 400 метрах от бул. България
Продажа
Последний гараж в здании с Актом 16, кв. Манастирски ливади – запад г. София , кв. «Манастирски Ливади» Подземный гараж в здании на бул. Тодор Каблешков в 400 метрах от бул. България Последний гараж в здании с Актом 16, кв. Манастирски ливади – запад - Подземный гараж в здании на бул. Тодор Каблешков в 400 метрах от бул. България
Современный бизнес-объект в новом здании – идеально подходит для магазина, детского центра, офиса или шоурума
Продажа
Просторный торговый объект в престижном комплексе рядом с ключевыми бульварами в районе «Манастирски ливади» г. София , кв. «Манастирски Ливади» Современный бизнес-объект в новом здании – идеально подходит для магазина, детского центра, офиса или шоурума Просторный торговый объект в престижном комплексе рядом с ключевыми бульварами в районе «Манастирски ливади» - Современный бизнес-объект в новом здании – идеально подходит для магазина, детского центра, офиса или шоурума
Комфортабельная меблированная квартира рядом с торговым центром «Болгария» и магазином «Джумбо»
Аренда
Новая двухкомнатная квартира в районе Манастирски Ливади г. София , кв. «Манастирски Ливади» Комфортабельная меблированная квартира рядом с торговым центром «Болгария» и магазином «Джумбо» Новая двухкомнатная квартира в районе Манастирски Ливади - Комфортабельная меблированная квартира рядом с торговым центром «Болгария» и магазином «Джумбо»
Смотреть все

Еще объекты недвижимости в г. София

Уникальный жилой комплекс, воссоздающий стиль и атмосферу знаменитого парка Central Park в Нью-Йорке. Самый продаваемый комплекс в 2022, 2023, 2024 и 2025 годах!
Продажа
эксклюзивноХит продаж
Central Park – 7 зданий с парком площадью 12 декара. Здания А, Б и В получили Акт 16! г. София , кв. «Банишора» Уникальный жилой комплекс, воссоздающий стиль и атмосферу знаменитого парка Central Park в Нью-Йорке. Самый продаваемый комплекс в 2022, 2023, 2024 и 2025 годах! Central Park – 7 зданий с парком площадью 12 декара. Здания А, Б и В получили Акт 16! - Уникальный жилой комплекс, воссоздающий стиль и атмосферу знаменитого парка Central Park в Нью-Йорке. Самый продаваемый комплекс в 2022, 2023, 2024 и 2025 годах!
от 185 874
(€/кв.м. 2 200 - €/кв.м. 2 800)Площадь: 71.49 - 187.57 кв.м.
Иван Крумов Риэлтор, София - Центральный
Роскошный комплекс с панорамными видами, топовой локацией и впечатляющим силуэтом, расположенный между городской динамикой и горами.
Продажа
эксклюзивно Люкс
SKY TOWERS by AMur — Новый архитектурный символ Софии г. София , кв. «Манастирски Ливади» Роскошный комплекс с панорамными видами, топовой локацией и впечатляющим силуэтом, расположенный между городской динамикой и горами. SKY TOWERS by AMur — Новый архитектурный символ Софии - Роскошный комплекс с панорамными видами, топовой локацией и впечатляющим силуэтом, расположенный между городской динамикой и горами.
Здание, объединяющее городскую динамику и близость к природе
Продажа
эксклюзивно Люкс
Synera Residence — новые квартиры в р-не Манастирски Ливади г. София , кв. «Манастирски Ливади» Здание, объединяющее городскую динамику и близость к природе Synera Residence — новые квартиры в р-не Манастирски Ливади - Здание, объединяющее городскую динамику и близость к природе
от 130 000
(€/кв.м. 2 492 - €/кв.м. 3 382)Площадь: 52.17 - 208.03 кв.м.
Даниела Тотева Риэлтор, София - Центральный
Современная архитектура, отличное расположение и гибкие условия оплаты
Продажа
эксклюзивно Люкс
Corner Park – новый жилой комплекс в Софии, район Сухая река г. София , кв. «Сухата Река» Современная архитектура, отличное расположение и гибкие условия оплаты Corner Park – новый жилой комплекс в Софии, район Сухая река - Современная архитектура, отличное расположение и гибкие условия оплаты
от 98 538
(€/кв.м. 1 850 - €/кв.м. 2 500)Площадь: 44.79 - 249.28 кв.м.
Иван Каменов Старший консультант, Центральный
Современный комфорт и инвестиционная безопасность в сердце Малинова долина
Продажа
эксклюзивно
Стильный новый проект в Малинова долина – современное жилье в формирующейся приятной жилой зоне г. София , кв. «Малинова Долина» Современный комфорт и инвестиционная безопасность в сердце Малинова долина Стильный новый проект в Малинова долина – современное жилье в формирующейся приятной жилой зоне - Современный комфорт и инвестиционная безопасность в сердце Малинова долина
от 134 500
(€/кв.м. 1 683 - €/кв.м. 2 200)Площадь: 67.03 - 143.95 кв.м.
Магдалена Цоклинова Риэлтор , Центральный
Последние гаражи в новом здании с Актом 14 в кв. Малинова долина
Продажа
эксклюзивноХит продаж
Наземные гаражи в новом здании в отличном месте рядом с НСА г. София , кв. «Малинова Долина» Последние гаражи в новом здании с Актом 14 в кв. Малинова долина Наземные гаражи в новом здании в отличном месте рядом с НСА - Последние гаражи в новом здании с Актом 14 в кв. Малинова долина
Квартиры с 1, 2 или 3 спальнями рядом с Витошей и с удобным сообщением с центром столицы
Продажа
Новое здание всего с 16 квартирами в кв. Манастирски Ливади г. София , кв. «Манастирски Ливади» Квартиры с 1, 2 или 3 спальнями рядом с Витошей и с удобным сообщением с центром столицы Новое здание всего с 16 квартирами в кв. Манастирски Ливади - Квартиры с 1, 2 или 3 спальнями рядом с Витошей и с удобным сообщением с центром столицы
2- и 3-комнатные квартиры, качественное строительство
Продажа
эксклюзивно
Элитный городской комплекс из двух корпусов Green View Apartments в районе Княжево г. София , кв. «Княжево» 2- и 3-комнатные квартиры, качественное строительство Элитный городской комплекс из двух корпусов Green View Apartments в районе Княжево - 2- и 3-комнатные квартиры, качественное строительство
от 210 000
(€/кв.м. 1 860 - €/кв.м. 3 331)Площадь: 68.07 - 268.82 кв.м.
Иванка Стойкова Риэлтор / Партнер, София - Бъкстон
Квартиры с 1, 2 или 3 спальнями в элитном 9-этажном здании
Продажа
Резиденции с центральным расположением на бул. Сливница с Акт 14 г. София , «Центр» Квартиры с 1, 2 или 3 спальнями в элитном 9-этажном здании Резиденции с центральным расположением на бул. Сливница с Акт 14 - Квартиры с 1, 2 или 3 спальнями в элитном 9-этажном здании
от 167 664
(€/кв.м. 2 450 - €/кв.м. 2 800)Площадь: 59.88 - 170.01 кв.м.
Иванка Стойкова Риэлтор / Партнер, София - Бъкстон
Последние апартаменты в комплексе с зелеными насаждениями и полученным Актом 16
Продажа
Люкс
Reina Sofia Residence - элитное жилье энергетического класса А рядом с Софийским зоопарком и Охотничьим парком г. София , кв. «Крыстова Вада» Последние апартаменты в комплексе с зелеными насаждениями и полученным Актом 16 Reina Sofia Residence - элитное жилье энергетического класса А рядом с Софийским зоопарком и Охотничьим парком - Последние апартаменты в комплексе с зелеными насаждениями и полученным Актом 16
Новые апартаменты с отличным расположением у подножия Витоши
Продажа
Жилой дом из двух секций рядом с Национальной академией спорта г. София , кв. «Малинова Долина» Новые апартаменты с отличным расположением у подножия Витоши Жилой дом из двух секций рядом с Национальной академией спорта - Новые апартаменты с отличным расположением у подножия Витоши
от 120 395
(€/кв.м. 2 350 - €/кв.м. 2 560)Площадь: 49.75 - 160.33 кв.м.
Иванка Стойкова Риэлтор / Партнер, София - Бъкстон
Современные квартиры с просторной планировкой, качественным строительством
Продажа
эксклюзивноХит продаж
Малинова Долина, София Апартаментный комплекс - на стадии строительства г. София , кв. «Малинова Долина» Современные квартиры с просторной планировкой, качественным строительством Малинова Долина, София Апартаментный комплекс - на стадии строительства - Современные квартиры с просторной планировкой, качественным строительством
от 310 000
(€/кв.м. 1 863 - €/кв.м. 2 042)Площадь: 151.80 - 191.62 кв.м.
Магдалена Цоклинова Риэлтор , Центральный
Эксклюзивный жилой комплекс в 2 км от трасс горного курорта Витоша
Продажа
эксклюзивноХит продаж
Витоша Вью / Vitosha View - знаковый комплекс в Софии г. София , кв. «Крыстова Вада» Эксклюзивный жилой комплекс в 2 км от трасс горного курорта Витоша Витоша Вью / Vitosha View - знаковый комплекс в Софии - Эксклюзивный жилой комплекс в 2 км от трасс горного курорта Витоша
Квартиры с 1, 2 и 3 спальнями в новом комплексе в р-не Младост 4
Продажа
Новостройка рядом с бизнес-парком «София» и метро г. София , кв. «Младост 4» Квартиры с 1, 2 и 3 спальнями в новом комплексе в р-не Младост 4 Новостройка рядом с бизнес-парком «София» и метро - Квартиры с 1, 2 и 3 спальнями в новом комплексе в р-не Младост 4
от 219 678
(€/кв.м. 2 350 - €/кв.м. 2 705)Площадь: 87.80 - 202.38 кв.м.
Николай Попов Риэлтор, София - Центральный
Отличная инвестиция в развивающемся районе с удобным доступом ко всем коммуникациям
Продажа
новинка
Участок под застройку в 10 км от Софии – идеален для строительства г. София , кв. «Илиянци» Отличная инвестиция в развивающемся районе с удобным доступом ко всем коммуникациям Участок под застройку в 10 км от Софии – идеален для строительства - Отличная инвестиция в развивающемся районе с удобным доступом ко всем коммуникациям
Светлая и просторная квартира с отличной южной экспозицией в хорошо поддерживаемом здании с контролируемым доступом
Продажа
новинка
Солнечная двухкомнатная квартира рядом метро в Дружбе 2 г. София , кв. «Дружба 2» Светлая и просторная квартира с отличной южной экспозицией в хорошо поддерживаемом здании с контролируемым доступом Солнечная двухкомнатная квартира рядом метро в Дружбе 2 - Светлая и просторная квартира с отличной южной экспозицией в хорошо поддерживаемом здании с контролируемым доступом
Участок с видом на Витошу
Продажа
новинка
Земельный участок для инвестиций в селе Железница с. Железница , Последната спирка на автобус № 69 Участок с видом на Витошу Земельный участок для инвестиций в селе Железница - Участок с видом на Витошу
Новые дома с современной архитектурой и престижным расположением от проверенного застройщика
Продажа
новинка
Элитный жилой комплекс в Манастирски Ливади – Восточный район г. София , кв. «Манастирски Ливади» Новые дома с современной архитектурой и престижным расположением от проверенного застройщика Элитный жилой комплекс в Манастирски Ливади – Восточный район - Новые дома с современной архитектурой и престижным расположением от проверенного застройщика
от 182 607
(€/кв.м. 2 319 - €/кв.м. 3 179)Площадь: 71.50 - 193.67 кв.м.
Савина Божилова Риэлтор, София - Центральный
Трёхкомнатная квартира с потенциалом и идеальной локацией в престижном районе столицы
Продажа
новинка эксклюзивно
Квартира с отличной планировкой рядом с Борисовым садом и отелем «Плиска» г. София , кв. «Изток» Трёхкомнатная квартира с потенциалом и идеальной локацией в престижном районе столицы Квартира с отличной планировкой рядом с Борисовым садом и отелем «Плиска» - Трёхкомнатная квартира с потенциалом и идеальной локацией в престижном районе столицы
Трёхкомнатная квартира в аренду — комфорт и удобство в ухоженном доме
Аренда
новинка
Просторная и полностью меблированная квартира в районе Овча Купел г. София , кв. «Овча Купел» Трёхкомнатная квартира в аренду — комфорт и удобство в ухоженном доме Просторная и полностью меблированная квартира в районе Овча Купел - Трёхкомнатная квартира в аренду — комфорт и удобство в ухоженном доме
Роскошная трехкомнатная квартира между зоопарком и охотничьим парком
Продажа
новинка Люкс
Пентхаус с панорамными террасами и зелеными насаждениями в районе Лозенец г. София , кв. «Лозенец» Роскошная трехкомнатная квартира между зоопарком и охотничьим парком Пентхаус с панорамными террасами и зелеными насаждениями в районе Лозенец - Роскошная трехкомнатная квартира между зоопарком и охотничьим парком
Современная трёхкомнатная квартира в тихом месте рядом со станцией метро «Константин Величков»
Продажа -8%
новинка
Двухуровневая квартира в центральной части Софии г. София , кв. «Зона Б-19» Современная трёхкомнатная квартира в тихом месте рядом со станцией метро «Константин Величков» Двухуровневая квартира в центральной части Софии - Современная трёхкомнатная квартира в тихом месте рядом со станцией метро «Константин Величков»
Новая квартира на высоком этаже с панорамным видом и возможностью приобретения подземного парковочного места в районе Банишора
Продажа
новинка
Студия с возможностью переоборудования в однокомнатную квартиру в комплексе Capital Residence г. София , кв. «Банишора» Новая квартира на высоком этаже с панорамным видом и возможностью приобретения подземного парковочного места в районе Банишора Студия с возможностью переоборудования в однокомнатную квартиру в комплексе Capital Residence - Новая квартира на высоком этаже с панорамным видом и возможностью приобретения подземного парковочного места в районе Банишора
Современный комплекс с отличным расположением, зеленой средой и долгосрочной инвестиционной ценностью
Продажа
новинка
Жилой комплекс высокого класса в Манастирски ливади – Восток г. София , кв. «Манастирски Ливади» Современный комплекс с отличным расположением, зеленой средой и долгосрочной инвестиционной ценностью Жилой комплекс высокого класса в Манастирски ливади – Восток - Современный комплекс с отличным расположением, зеленой средой и долгосрочной инвестиционной ценностью
от 163 827
(€/кв.м. 2 260 - €/кв.м. 3 075)Площадь: 71.40 - 180.23 кв.м.
Савина Божилова Риэлтор, София - Центральный
Светлая квартира с подвалом рядом с детским садом №13 «Калинка»
Продажа
новинка
Переустроенная квартира с красивым видом в ж.к. Дружба 1 г. София , кв. «Дружба 1» Светлая квартира с подвалом рядом с детским садом №13 «Калинка» Переустроенная квартира с красивым видом в ж.к. Дружба 1 - Светлая квартира с подвалом рядом с детским садом №13 «Калинка»
Смотреть все

Посмотрите еще:

ОТПРАВЬТЕ ЗАПРОС