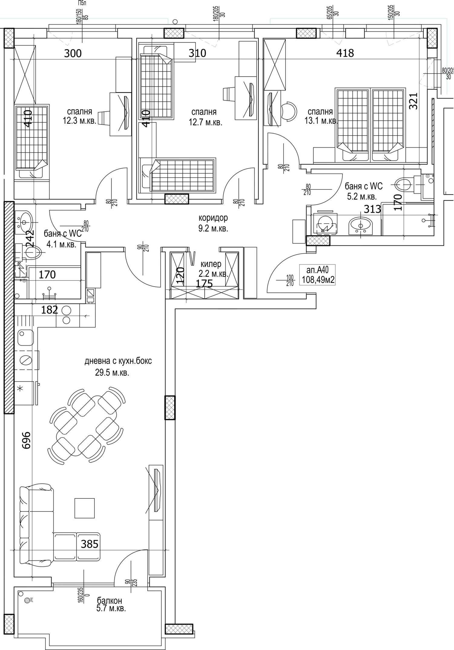
квартира A40 , общая площадь 127.30 кв.м. (жилая площадь 108.49 кв.м. + общие части 18.81 кв.м.).
Предлагаются к продаже разнообразные по функциональному назначению квартиры в новом масштабном проекте проверенной компании в квартале. Абрикосовый сад. Он отличается ярко выраженным городским обликом и эстетически сбалансированным фасадом, разнообразием цветовых элементов и функциональным распределением объемов. Объект расположен в динамично развивающемся районе с удобной инфраструктурой и близостью к зеленым зонам - отличное сочетание удобства, стиля и спокойствия.
• Здание 1 спроектировано с пятью отдельными входами. Концепция сочетает в себе современную композицию фасада с теплыми цветовыми акцентами, которые придают силуэту динамичность и элегантность. Подземный уровень полностью отведен под гаражи и парковочные места, а во внутреннем дворе расположены открытые парковочные зоны и зеленые насаждения.
• Здание 2 состоит из 4 входов, распределенных таким образом, чтобы обеспечить удобство и функциональность для жителей. На подземном уровне расположены гаражи и парковочные места, а на прилегающей к зданию территории - дополнительные открытые парковочные места и зеленые зоны отдыха. Контраст между теплыми и нейтральными тонами создает эстетический баланс, а широкие балконы и большие окна обеспечивают максимум света в каждой квартире.
Фасад здания выполнен с использованием сочетания современных материалов, обеспечивающих энергоэффективность и экологичность. Комплекс построен в соответствии с современными инженерными стандартами с использованием железобетонных элементов и надежной системы изоляции.
• Конструкция обеспечивает стабильность, долговечность и защиту при любых погодных условиях.
• Входы и коридоры спроектированы с учетом комфорта жильцов - просторные лестницы, хорошо освещенные помещения и высококачественные материалы.
• Общие зоны имеют законченный вид и создают комфортные условия для жизни.
• В каждом подъезде установлен современный лифт, который обеспечивает легкий и бесшумный доступ на все этажи, включая подземные гаражи. Это обеспечивает удобство как для семей с детьми, так и для людей с ограниченными возможностями передвижения.
• Крыша здания плоская и заполнена высококлассной гидро- и теплоизоляцией, отвечающей современным энергетическим стандартам.
• Водопроводная система построена из материалов проверенного качества, которые гарантируют надежность и оптимальное давление в любое время. Система спроектирована таким образом, чтобы обеспечить простоту обслуживания и долговечность.
• Здания оснащены современной электропроводкой и предусматривают интеграцию решений "умного дома". Во всех квартирах предусмотрены многочисленные точки питания и надежные электрические панели, отвечающие самым современным стандартам.
Для владельцев квартир предусмотрена подземная парковка с гаражами и парковочными местами, доступными непосредственно через лифты здания. Парковочные места также доступны во внутреннем дворе.
Квартиры разнообразны по площади и планировке - от функциональных, подходящих для молодых семей, до просторных домов с панорамными видами. Цены на сайте указаны для варианта оплаты 1. Позвоните нам для получения дополнительной информации и просмотра.
Посмотреть недвижимость
Мы можем организовать просмотр недвижимости в соответствии с нашим графиком и наличием свободных мест. Запросите просмотр, связавшись с брокером, ответственным за предложение, по электронной почте или телефону.
Резервирование недвижимости
Объект может быть зарезервирован и снят с продажи при внесении задатка, после чего прекращаются просмотры с другими покупателями и начинается подготовка документов для заключения предварительного и окончательного контракта. Свяжитесь с ответственным брокером для получения подробной информации о процедуре покупки и порядке оплаты.
- Описание
- Характеристики
- Галерея
- Местоположение
- Прайс-лист
Продажа
Четырехкомнатная квартира в Новый масштабный жилой проект в районе Кайсиева Градина
г. Варна, кв.«Кайсиева градина»Современная городская архитектура в динамично развивающемся районе с удобной инфраструктурой и близостью к зеленым насаждениям – превосходное сочетание комфорта, стиля и спокойствия
Прочитайте больше
Характеристики
Тип недвижимости
Четырехкомнатная квартира
Реф. номер
Vna 88180
Площадь
127.30 м2 (жилая площадь: 108.49 м2 плюс общие части: 18.81 м2) еще
Спальни
1,2,3
Состояние
болгарский государственный стандарт
Этаж
9 из 9
Лифт
да
Меблировка
Немеблированная
Отопление
Отопление кондиционером
Вид строительства
Кирпич, Новостройки
Окна выходят на:
Восток, Запад, На север, Юг
Год строительства
2028
Новый масштабный жилой проект в районе Кайсиева Градина дополнительная информация:
Планы
Планы
Прайс-лист
Качество воздуха
Меблировка
Плащане
План на строителство
Фото с воздуха
Генплан
360° градусов
Инфо пакет
Референтный номер: Vna 88180
Местоположение
г. Варна, кв.«Кайсиева градина»Удобства района
- Автобусная остановка "ОБЩЕЖИТИЕТО-2" 300 м (4 мин.) - Автобус No: 14, 41
- Детский сад "ДГ 39 "Приказка"" 58 м (1 мин.)
- Детский сад 903 м (11 мин.)
- Школа "ОУ Стоян Михайловски" 102 м (2 мин.)
- Школа "ОУ Патриарх Евтимий" 787 м (10 мин.)
- Медицинский центр 243 м (3 мин.)
- Продуктовый магазин 257 м (4 мин.)
- Супермаркет 154 м (2 мин.)
- Супермаркет "My Market, бл. 11" 750 м (10 мин.)
- Рынок 1.1 км (14 мин.)
- Пекарня 1.0 км (13 мин.)
- Аптека 254 м (4 мин.)
- Почта "Speedy" 720 м (9 мин.)
- Почта "Пощенски клон 23 (9023)" 1.1 км (14 мин.)
- Парикмахер 1.1 км (14 мин.)
- Ресторан "Борисовата воденица" 396 м (5 мин.)
- Ресторан 922 м (12 мин.)
- Кафе "Парадайс" 331 м (4 мин.)
- Бар "Shisha Pharaohs" 980 м (12 мин.)
- Музей "Музей Владислав Варненчик" 990 м (12 мин.)
- Парк 420 м (6 мин.)
- Парковка 272 м (4 мин.)
- Бензозаправочная станция "Sevi Oil" 420 м (6 мин.)
- Зарядная станция "Fines - Alpha Motors" 483 м (6 мин.)
- Мойка автомобилей "Bubbles Bay" 447 м (6 мин.)
- Автосервис "Колор груп ЕООД" 400 м (5 мин.)
ТРАНСПОРТ
УЧЕБНЫЕ ЗАВЕДЕНИЯ
МЕДИЦИНСКИЕ УЧРЕЖДЕНИЯ
ШОПИНГ
УСЛУГИ
ЗАВЕДЕНИЯ
СПОРТ И СВОБОДНОЕ ВРЕМЯ
ПРИРОДА И РАЗВЛЕЧЕНИЯ
АВТОМОБИЛЬНЫЕ УСЛУГИ
ОТПРАВЬТЕ ЗАПРОС
€ 169 500
- €
- руб.
- $
Платежи с карты и PayPal.
Располагаем онлайн ПОС терминалом
Располагаем онлайн ПОС терминалом
Комплекс строится
Ввод в эксплуатацию: 30.12.2028 г
Агенству причитается комиссия
Прайс-лист
*/ ?>
ПОДРОБНАЯ ИНФОРМАЦИЯ
Реф. номер: Vna 88180
При звонке, пожалуйста, указывайте номер объекта недвижимости.
Объектов недвижимости в этом комплексе
226
объектов недвижимости
80
свободных
119
проданных
27
забронированных
ОТПРАВЬТЕ ЗАПРОС
Еще объекты недвижимости в в этом комплексе
Продажа
Четырехкомнатная квартира в Новый масштабный жилой проект в районе Кайсиева Градина
г. Варна , кв. «Кайсиева градина»
Современная городская архитектура в динамично развивающемся районе с удобной инфраструктурой и близостью к зеленым насаждениям – превосходное сочетание комфорта, стиля и спокойствия
Продажа
Четырехкомнатная квартира в Новый масштабный жилой проект в районе Кайсиева Градина
г. Варна , кв. «Кайсиева градина»
Современная городская архитектура в динамично развивающемся районе с удобной инфраструктурой и близостью к зеленым насаждениям – превосходное сочетание комфорта, стиля и спокойствия
Продажа
Четырехкомнатная квартира в Новый масштабный жилой проект в районе Кайсиева Градина
г. Варна , кв. «Кайсиева градина»
Современная городская архитектура в динамично развивающемся районе с удобной инфраструктурой и близостью к зеленым насаждениям – превосходное сочетание комфорта, стиля и спокойствия
Продажа
Четырехкомнатная квартира в Новый масштабный жилой проект в районе Кайсиева Градина
г. Варна , кв. «Кайсиева градина»
Современная городская архитектура в динамично развивающемся районе с удобной инфраструктурой и близостью к зеленым насаждениям – превосходное сочетание комфорта, стиля и спокойствия
Продажа
Четырехкомнатная квартира в Новый масштабный жилой проект в районе Кайсиева Градина
г. Варна , кв. «Кайсиева градина»
Современная городская архитектура в динамично развивающемся районе с удобной инфраструктурой и близостью к зеленым насаждениям – превосходное сочетание комфорта, стиля и спокойствия
Продажа
Двухкомнатная квартира в Новый масштабный жилой проект в районе Кайсиева Градина
г. Варна , кв. «Кайсиева градина»
Современная городская архитектура в динамично развивающемся районе с удобной инфраструктурой и близостью к зеленым насаждениям – превосходное сочетание комфорта, стиля и спокойствия
Продажа
Трехкомнатная квартира в Новый масштабный жилой проект в районе Кайсиева Градина
г. Варна , кв. «Кайсиева градина»
Современная городская архитектура в динамично развивающемся районе с удобной инфраструктурой и близостью к зеленым насаждениям – превосходное сочетание комфорта, стиля и спокойствия
Продажа
Трехкомнатная квартира в Новый масштабный жилой проект в районе Кайсиева Градина
г. Варна , кв. «Кайсиева градина»
Современная городская архитектура в динамично развивающемся районе с удобной инфраструктурой и близостью к зеленым насаждениям – превосходное сочетание комфорта, стиля и спокойствия
Продажа
Трехкомнатная квартира в Новый масштабный жилой проект в районе Кайсиева Градина
г. Варна , кв. «Кайсиева градина»
Современная городская архитектура в динамично развивающемся районе с удобной инфраструктурой и близостью к зеленым насаждениям – превосходное сочетание комфорта, стиля и спокойствия
Продажа
Двухкомнатная квартира в Новый масштабный жилой проект в районе Кайсиева Градина
г. Варна , кв. «Кайсиева градина»
Современная городская архитектура в динамично развивающемся районе с удобной инфраструктурой и близостью к зеленым насаждениям – превосходное сочетание комфорта, стиля и спокойствия
Продажа
Трехкомнатная квартира в Новый масштабный жилой проект в районе Кайсиева Градина
г. Варна , кв. «Кайсиева градина»
Современная городская архитектура в динамично развивающемся районе с удобной инфраструктурой и близостью к зеленым насаждениям – превосходное сочетание комфорта, стиля и спокойствия
Продажа
Трехкомнатная квартира в Новый масштабный жилой проект в районе Кайсиева Градина
г. Варна , кв. «Кайсиева градина»
Современная городская архитектура в динамично развивающемся районе с удобной инфраструктурой и близостью к зеленым насаждениям – превосходное сочетание комфорта, стиля и спокойствия
Продажа
Трехкомнатная квартира в Новый масштабный жилой проект в районе Кайсиева Градина
г. Варна , кв. «Кайсиева градина»
Современная городская архитектура в динамично развивающемся районе с удобной инфраструктурой и близостью к зеленым насаждениям – превосходное сочетание комфорта, стиля и спокойствия
Продажа
Двухкомнатная квартира в Новый масштабный жилой проект в районе Кайсиева Градина
г. Варна , кв. «Кайсиева градина»
Современная городская архитектура в динамично развивающемся районе с удобной инфраструктурой и близостью к зеленым насаждениям – превосходное сочетание комфорта, стиля и спокойствия
Продажа
Двухкомнатная квартира в Новый масштабный жилой проект в районе Кайсиева Градина
г. Варна , кв. «Кайсиева градина»
Современная городская архитектура в динамично развивающемся районе с удобной инфраструктурой и близостью к зеленым насаждениям – превосходное сочетание комфорта, стиля и спокойствия
Продажа
Двухкомнатная квартира в Новый масштабный жилой проект в районе Кайсиева Градина
г. Варна , кв. «Кайсиева градина»
Современная городская архитектура в динамично развивающемся районе с удобной инфраструктурой и близостью к зеленым насаждениям – превосходное сочетание комфорта, стиля и спокойствия
Продажа
Двухкомнатная квартира в Новый масштабный жилой проект в районе Кайсиева Градина
г. Варна , кв. «Кайсиева градина»
Современная городская архитектура в динамично развивающемся районе с удобной инфраструктурой и близостью к зеленым насаждениям – превосходное сочетание комфорта, стиля и спокойствия
Продажа
Двухкомнатная квартира в Новый масштабный жилой проект в районе Кайсиева Градина
г. Варна , кв. «Кайсиева градина»
Современная городская архитектура в динамично развивающемся районе с удобной инфраструктурой и близостью к зеленым насаждениям – превосходное сочетание комфорта, стиля и спокойствия
Продажа
Двухкомнатная квартира в Новый масштабный жилой проект в районе Кайсиева Градина
г. Варна , кв. «Кайсиева градина»
Современная городская архитектура в динамично развивающемся районе с удобной инфраструктурой и близостью к зеленым насаждениям – превосходное сочетание комфорта, стиля и спокойствия
Продажа
Двухкомнатная квартира в Новый масштабный жилой проект в районе Кайсиева Градина
г. Варна , кв. «Кайсиева градина»
Современная городская архитектура в динамично развивающемся районе с удобной инфраструктурой и близостью к зеленым насаждениям – превосходное сочетание комфорта, стиля и спокойствия
Продажа
Двухкомнатная квартира в Новый масштабный жилой проект в районе Кайсиева Градина
г. Варна , кв. «Кайсиева градина»
Современная городская архитектура в динамично развивающемся районе с удобной инфраструктурой и близостью к зеленым насаждениям – превосходное сочетание комфорта, стиля и спокойствия
Продажа
Двухкомнатная квартира в Новый масштабный жилой проект в районе Кайсиева Градина
г. Варна , кв. «Кайсиева градина»
Современная городская архитектура в динамично развивающемся районе с удобной инфраструктурой и близостью к зеленым насаждениям – превосходное сочетание комфорта, стиля и спокойствия
Продажа
Двухкомнатная квартира в Новый масштабный жилой проект в районе Кайсиева Градина
г. Варна , кв. «Кайсиева градина»
Современная городская архитектура в динамично развивающемся районе с удобной инфраструктурой и близостью к зеленым насаждениям – превосходное сочетание комфорта, стиля и спокойствия
Продажа
Двухкомнатная квартира в Новый масштабный жилой проект в районе Кайсиева Градина
г. Варна , кв. «Кайсиева градина»
Современная городская архитектура в динамично развивающемся районе с удобной инфраструктурой и близостью к зеленым насаждениям – превосходное сочетание комфорта, стиля и спокойствия
Продажа
Трехкомнатная квартира в Новый масштабный жилой проект в районе Кайсиева Градина
г. Варна , кв. «Кайсиева градина»
Современная городская архитектура в динамично развивающемся районе с удобной инфраструктурой и близостью к зеленым насаждениям – превосходное сочетание комфорта, стиля и спокойствия
Еще объекты недвижимости в кв. Кайсиева градина
Продажа
Двухкомнатная квартира напротив Акта 16 в кв. Кайсиева градина
г. Варна , кв. «Кайсиева градина»
Квартира в новостройке рядом с бульваром в Варне
Двухкомнатная квартира напротив Акта 16 в кв. Кайсиева градина - Квартира в новостройке рядом с бульваром в Варне
Продажа
Современный жилой комплекс в районе Кайсиева градина
г. Варна , кв. «Кайсиева градина»
Современная архитектура, просторные квартиры и удобное расположение
Современный жилой комплекс в районе Кайсиева градина - Современная архитектура, просторные квартиры и удобное расположение
Продажа
Новое здание, сочетающее в себе современную архитектуру и природные элементы
г. Варна , кв. «Кайсиева градина»
Идеально распределенные апартаменты с 1, 2 и 3 спальнями в престижном районе Варна
Новое здание, сочетающее в себе современную архитектуру и природные элементы - Идеально распределенные апартаменты с 1, 2 и 3 спальнями в престижном районе Варна
от € 100 000
(€/кв.м. 1 443 - €/кв.м. 1 574)Площадь: 63.53 - 119.44 кв.м.
Калина Иванова
Старший консультант, Варна
Продажа
Квартиры в районе Кайсиева градина в Варне
г. Варна , кв. «Кайсиева градина»
Жилье в комплексе-новостройке
Квартиры в районе Кайсиева градина в Варне - Жилье в комплексе-новостройке
от € 104 970
(€/кв.м. 1 350 - €/кв.м. 1 390)Площадь: 77.76 - 119.42 кв.м.
Калина Иванова
Старший консультант, Варна
Еще объекты недвижимости в г. Варна
Продажа
Хит продаж
Люкс
Жилье в небоскребе - элитный комплекс в Младосте, Варна!
г. Варна , кв. «Младост 1»
Высококлассные апартаменты с уникальными видами в Младосте. Младост 1 - морская столица
Жилье в небоскребе - элитный комплекс в Младосте, Варна! - Высококлассные апартаменты с уникальными видами в Младосте. Младост 1 - морская столица
от € 107 900
(€/кв.м. 1 518 - €/кв.м. 1 751)Площадь: 68.20 - 122.26 кв.м.
Калина Иванова
Старший консультант, Варна
Продажа
Хит продаж
Люкс
Жилой комплекс рядом с пляжем Кабакум, Варна
г. Варна , кв. «м-т Ален мак»
Роскошные апартаменты, прямой доступ к пляжу
Жилой комплекс рядом с пляжем Кабакум, Варна - Роскошные апартаменты, прямой доступ к пляжу
от € 256 000
(€/кв.м. 1 199 - €/кв.м. 2 100)Площадь: 186.80 - 213.49 кв.м.
Анна Ицова
Риэлтор, Варна
Продажа
новинка
Панорамная четырёхкомнатная квартира в районе Винница
г. Варна , кв. «Виница»
Просторная новая квартира напротив Акта 16 с солнечной стороны, видом на лес и инфраструктурой
Панорамная четырёхкомнатная квартира в районе Винница - Просторная новая квартира напротив Акта 16 с солнечной стороны, видом на лес и инфраструктурой
Продажа
новинка
Люкс
ПЕРВАЯ ЛИНИЯ
Четырёхкомнатная квартира с морской панорамой рядом с пляжем Кабакум
г. Варна , кв. «к.к. Чайка»
Роскошно меблированная квартира с 3 спальнями в закрытом комплексе Cabacum Beach Residence
Четырёхкомнатная квартира с морской панорамой рядом с пляжем Кабакум - Роскошно меблированная квартира с 3 спальнями в закрытом комплексе Cabacum Beach Residence
Продажа
новинка
Регулируемый земельный участок с инвестиционным потенциалом
г. Варна , кв. «Христо Ботев»
Участок под застройку в удобном городском районе, районе Христо Ботев
Регулируемый земельный участок с инвестиционным потенциалом - Участок под застройку в удобном городском районе, районе Христо Ботев
Продажа
новинка
Просторная квартира под реновацию рядом с парком Аспарухово
г. Варна , кв. «Аспарухово»
Панорамная квартира с парковочным местом и удобным доступом к пляжу
Просторная квартира под реновацию рядом с парком Аспарухово - Панорамная квартира с парковочным местом и удобным доступом к пляжу
Продажа
новинка
ПЕРВАЯ ЛИНИЯ
Меблированная квартира с красивым видом на первой линии от пляжа в Аспарухово
г. Варна , кв. «Аспарухово»
Двухкомнатная квартира в комплексе Varna South Bay
Меблированная квартира с красивым видом на первой линии от пляжа в Аспарухово - Двухкомнатная квартира в комплексе Varna South Bay
Аренда
новинка
Просторный дом с 4 спальнями в районе Святого Николая
г. Варна , кв. «м-т Св. Никола»
Современный дом с видом на море, садом, современными удобствами и комфортом
Просторный дом с 4 спальнями в районе Святого Николая - Современный дом с видом на море, садом, современными удобствами и комфортом
Продажа
новинка
Двухэтажный дом в местности Горна Трака, Варна
г. Варна , кв. «м-т Горна Трака»
Семейный дом с тремя спальнями, собственным садом, двумя парковочными местами и прекрасной морской панорамой
Двухэтажный дом в местности Горна Трака, Варна - Семейный дом с тремя спальнями, собственным садом, двумя парковочными местами и прекрасной морской панорамой
Продажа
новинка
Трехкомнатная меблированная квартира с отличной планировкой в районе Макдрайв
г. Варна , «Центр»
Недвижимость в ухоженном здании рядом с торговыми объектами, школами, удобными транспортными развязками
Трехкомнатная меблированная квартира с отличной планировкой в районе Макдрайв - Недвижимость в ухоженном здании рядом с торговыми объектами, школами, удобными транспортными развязками
Продажа
новинка
Трёхэтажный дом с панорамным видом на море в местности Долна Трака
г. Варна , кв. «м-т Долна Трака»
Объект с отличным потенциалом, просторным двором и красивой террасой с видом на море
Трёхэтажный дом с панорамным видом на море в местности Долна Трака - Объект с отличным потенциалом, просторным двором и красивой террасой с видом на море
Аренда
новинка
Меблированная четырехкомнатная квартира в районе Аспарухово – рядом со Свободным университетом
г. Варна , кв. «Аспарухово»
Жилье в ухоженном здании с отличной локацией в Варна
Меблированная четырехкомнатная квартира в районе Аспарухово – рядом со Свободным университетом - Жилье в ухоженном здании с отличной локацией в Варна
Продажа
новинка
Новое жилое здание в центре Варны
г. Варна , «Центр»
Строительство высокого класса рядом с рынком Колхозен
Новое жилое здание в центре Варны - Строительство высокого класса рядом с рынком Колхозен
от € 76 500
(€/кв.м. 1 650 - €/кв.м. 1 994)Площадь: 38.50 - 92.09 кв.м.
Анна Ицова
Риэлтор, Варна
Продажа
-5%
новинка
Большой промышленный участок рядом с будущей промышленной зоной села Тополи
г. Варна , кв. «Западна промишлена зона»
Участок под застройку с удобным доступом, выходящий на трассу Девня-Варна
Большой промышленный участок рядом с будущей промышленной зоной села Тополи - Участок под застройку с удобным доступом, выходящий на трассу Девня-Варна
Продажа
новинка
гарантированная аренда
Гостевой дом в местности Ален мак, Варна
г. Варна , кв. «м-т Ален мак»
Разработанный четырёхэтажный бизнес-объект с видом на море, меблированными помещениями и двором
Гостевой дом в местности Ален мак, Варна - Разработанный четырёхэтажный бизнес-объект с видом на море, меблированными помещениями и двором
Продажа
новинка
Люкс
Бутик-отель – архитектурная жемчужина в сердце старой Варна
г. Варна , «Центр»
Знаковый бутик-отель в историческом центре Варны, сочетающий аристократический стиль, современные удобства и высокий инвестиционный потенциал.
Бутик-отель – архитектурная жемчужина в сердце старой Варна - Знаковый бутик-отель в историческом центре Варны, сочетающий аристократический стиль, современные удобства и высокий инвестиционный потенциал.
Продажа
новинка
гарантированная аренда
Меблированная двухкомнатная квартира в районе «Колхозен пазар» – г. Варна
г. Варна , кв. «Колхозен пазар»
Светлая и уютная двухкомнатная квартира – отличная инвестиция в районе «Колхозен пазар»
Меблированная двухкомнатная квартира в районе «Колхозен пазар» – г. Варна - Светлая и уютная двухкомнатная квартира – отличная инвестиция в районе «Колхозен пазар»
Продажа
новинка
Люкс
Квартира в районе Морского сада Варны, местность Салтанат
г. Варна , кв. «м-т Салтанат»
Полностью меблированная квартира с панорамной террасой в закрытом комплексе с бассейном
Квартира в районе Морского сада Варны, местность Салтанат - Полностью меблированная квартира с панорамной террасой в закрытом комплексе с бассейном
Продажа
новинка
Новый жилой проект в престижном районе Гръцка махала
г. Варна , кв. «Грыцка махала»
Роскошное здание с современной архитектурой и морской панорамой
Новый жилой проект в престижном районе Гръцка махала - Роскошное здание с современной архитектурой и морской панорамой
от € 142 000
(€/кв.м. 2 002 - €/кв.м. 2 702)Площадь: 56.76 - 98.90 кв.м.
Анна Ицова
Риэлтор, Варна
Аренда
новинка
Двухкомнатная меблированная квартира в аренду в районе Окружной больницы – г. Варна
г. Варна , «Центр»
Уютная и светлая квартира рядом с Медицинским университетом – отличный выбор для студентов, работающих или семьи
Двухкомнатная меблированная квартира в аренду в районе Окружной больницы – г. Варна - Уютная и светлая квартира рядом с Медицинским университетом – отличный выбор для студентов, работающих или семьи
Продажа
-5%
новинка
Меблированный дом с участком в районе Горна Трака
г. Варна , кв. «м-т Горна Трака»
Жилой и цокольный этажи рядом с комплексом «Белла Вита» и курортом «Св. Св. Св. Константин и Елена»
Меблированный дом с участком в районе Горна Трака - Жилой и цокольный этажи рядом с комплексом «Белла Вита» и курортом «Св. Св. Св. Константин и Елена»
Продажа
новинка
Хит продаж
Люкс
Элитный жилой комплекс – всего в шагах от пляжа Кабакум, Варна
г. Варна , кв. «м-т Ален мак»
Современный образ жизни с видом на море и отличным местоположением
Элитный жилой комплекс – всего в шагах от пляжа Кабакум, Варна - Современный образ жизни с видом на море и отличным местоположением
от € 78 500
(€/кв.м. 1 263 - €/кв.м. 2 790)Площадь: 50.30 - 201.60 кв.м.
Анна Ицова
Риэлтор, Варна
Продажа
новинка
Люкс
Просторные дома с видом на море и лес
г. Варна , кв. «м-т Зеленика»
Дома всего в 10 минутах от центра Варны
Просторные дома с видом на море и лес - Дома всего в 10 минутах от центра Варны
Аренда
новинка
Этаж дома в аренду с панорамным видом на море в м-т Акчелар
г. Варна , кв. «м-т Акчелар»
Меблированная недвижимость с верандой, парковочным местом и впечатляющим видом на море в тихом и зелёном районе
Этаж дома в аренду с панорамным видом на море в м-т Акчелар - Меблированная недвижимость с верандой, парковочным местом и впечатляющим видом на море в тихом и зелёном районе
Продажа
новинка
Отремонтированное помещение в районе «Колхозен пазар» – Варна
г. Варна , кв. «Колхозен пазар»
Недвижимость подходит для коктейль-бара, офиса, ателье, магазина или малого бизнеса
Отремонтированное помещение в районе «Колхозен пазар» – Варна - Недвижимость подходит для коктейль-бара, офиса, ателье, магазина или малого бизнеса
Подписывайтесь на наш канал