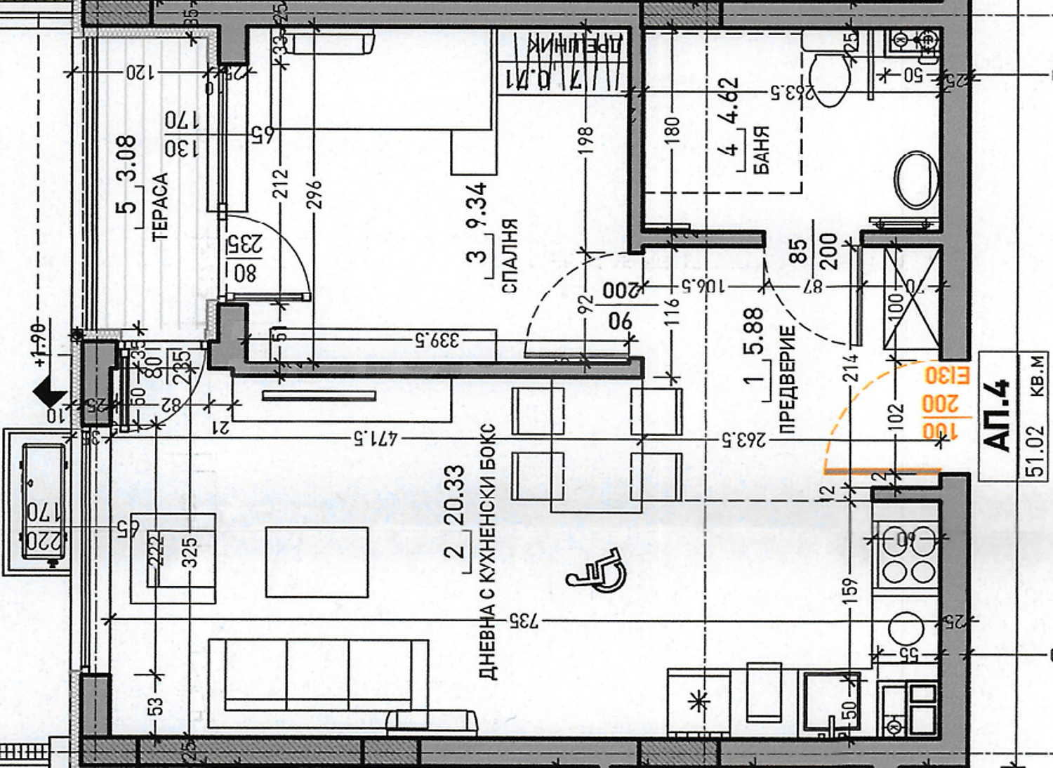
Предлагаем на продажу просторную двухкомнатную квартиру, расположенную в центре района Малинова долина — одного из самых перспективных и активно развивающихся районов Софии. Квартира находится на первом (партерном) этаже и имеет общую площадь 61,8 кв.м, с функциональной и удобной планировкой.
Планировка включает прихожую, ведущую в светлую гостиную с кухонной зоной открытого типа, объединяющую основное жилое пространство. Из гостиной предусмотрен переход в уютную спальню, обеспечивающую комфорт и уединение. В квартире есть ванная комната с туалетом, а также терраса, создающая дополнительное пространство для отдыха. Ориентация — западная, что обеспечивает приятное естественное освещение во второй половине дня.
Квартира предлагается в состоянии “шпаклёвка и стяжка”, что даёт новым владельцам возможность реализовать индивидуальный дизайнерский проект и оформить интерьер по своему вкусу.
Локация является одним из ключевых преимуществ — в непосредственной близости находятся детские сады, школы, парк НСА, а также магазины, услуги и удобный общественный транспорт. Объект подходит как для собственного проживания, так и для инвестиций с хорошим потенциалом аренды.
Также имеется возможность приобретения подземного гаража и кладового помещения, что увеличивает удобство и инвестиционную стойностъ объекта.
Посмотреть недвижимость
Мы можем организовать просмотр недвижимости в зависимости от нашего графика и доступности. Запросите просмотр, связавшись с ответственным агентом.
Резервирование недвижимости
Объект может быть зарезервирован и снят с продажи с внесением залога, после чего прекращаются просмотры с другими покупателями и начинается подготовка документов для заключения предварительного и окончательного договора. Пожалуйста, свяжитесь с ответственным брокером по данному объекту недвижимости для получения подробной информации о процедуре покупки и порядке оплаты.
Характеристики
Тип недвижимости
Двухкомнатная квартира
Реф. номер
Sfa 89116
Площадь
61.80 м2 (жилая площадь: 51.02 м2 плюс общие части: 10.78 м2) еще
Спальни
1
Состояние
болгарский государственный стандарт
Этаж
Первый этаж из 7
Лифт
да
Меблировка
Немеблированная
Отопление
Отопление кондиционером / Отопление на электрических радиаторах / Центральное отопление
Вид строительства
Кирпич, Новостройки
Двор
нет
Год строительства
2026
Кондиционирование
Система кондиционирования
Окна выходят на:
Запад
Двухкомнатная квартира в самом сердце Малиновой долины дополнительная информация:
Планы
Качество воздуха
Фото с воздуха
Генплан
360° градусов
Инфо пакет
Референтный номер: Sfa 89116
Местоположение
г. София, кв.«Малинова Долина»Удобства района
- Автобусная остановка "УЛ. ТОДОР ЙОНЧЕВ" 60 м (1 мин.) - Автобус No: 97
- Университет "Национална спортна академия "Васил Левски"" 878 м (11 мин.)
- Почта "Speedy" 669 м (9 мин.)
- Почта "ПТТС София 134-1734" 688 м (9 мин.)
- Салон красоты 474 м (6 мин.)
- Ресторан "Evergreen" 439 м (6 мин.)
- Ресторан "Щип Щип" 456 м (6 мин.)
- Бар "Glitch eSports Hub" 809 м (10 мин.)
- Фитнес "Фитнес 33" 716 м (9 мин.)
- Сад 898 м (11 мин.)
ТРАНСПОРТ
УЧЕБНЫЕ ЗАВЕДЕНИЯ
УСЛУГИ
ЗАВЕДЕНИЯ
СПОРТ И СВОБОДНОЕ ВРЕМЯ
ПРИРОДА И РАЗВЛЕЧЕНИЯ
ОТПРАВЬТЕ ЗАПРОС
€ 154 000
- €
- руб.
- $
Платежи с карты и PayPal.
Располагаем онлайн ПОС терминалом
Располагаем онлайн ПОС терминалом
Агенству причитается комиссия
*/ ?>
ПОДРОБНАЯ ИНФОРМАЦИЯ
Реф. номер: Sfa 89116
При звонке, пожалуйста, указывайте номер объекта недвижимости.
Савина Божилова
Офис София - Центральный р-он Лозенец, ул. Златен рог, эт. 4, офис 7, г. София, Болгария, 1407 Все объекты (4)ОТПРАВЬТЕ ЗАПРОС
Еще объекты недвижимости в кв. Малинова Долина
Продажа
эксклюзивно
Стильный новый проект в Малинова долина – современное жилье в формирующейся приятной жилой зоне
г. София , кв. «Малинова Долина»
Современный комфорт и инвестиционная безопасность в сердце Малинова долина
Стильный новый проект в Малинова долина – современное жилье в формирующейся приятной жилой зоне - Современный комфорт и инвестиционная безопасность в сердце Малинова долина
Продажа
эксклюзивноХит продаж
Наземные гаражи в новом здании в отличном месте рядом с НСА
г. София , кв. «Малинова Долина»
Последние гаражи в новом здании с Актом 14 в кв. Малинова долина
Наземные гаражи в новом здании в отличном месте рядом с НСА - Последние гаражи в новом здании с Актом 14 в кв. Малинова долина
Продажа
Жилой дом из двух секций рядом с Национальной академией спорта
г. София , кв. «Малинова Долина»
Новые апартаменты с отличным расположением у подножия Витоши
Жилой дом из двух секций рядом с Национальной академией спорта - Новые апартаменты с отличным расположением у подножия Витоши
Продажа
эксклюзивноХит продаж
Малинова Долина, София Апартаментный комплекс - на стадии строительства
г. София , кв. «Малинова Долина»
Современные квартиры с просторной планировкой, качественным строительством
Малинова Долина, София Апартаментный комплекс - на стадии строительства - Современные квартиры с просторной планировкой, качественным строительством
Продажа
новинка
Светлая двухкомнатная квартира с отличной локацией рядом с НСА – кв. Малинова долина
г. София , кв. «Малинова Долина»
Просторная и светлая двухкомнатная квартира в новом здании с высоким инвестиционным потенциалом
Светлая двухкомнатная квартира с отличной локацией рядом с НСА – кв. Малинова долина - Просторная и светлая двухкомнатная квартира в новом здании с высоким инвестиционным потенциалом
Продажа
новинка
Трёхкомнатная квартира с двором в кв. Малинова долина
г. София , кв. «Малинова Долина»
Новое просторное жильё с двумя спальнями, двумя ванными комнатами и собственным двором
Трёхкомнатная квартира с двором в кв. Малинова долина - Новое просторное жильё с двумя спальнями, двумя ванными комнатами и собственным двором
Продажа
новинка
Двухкомнатная квартира с отличной локацией в районе Малинова долина
г. София , кв. «Малинова Долина»
Функциональное жильё с высоким инвестиционным потенциалом
Двухкомнатная квартира с отличной локацией в районе Малинова долина - Функциональное жильё с высоким инвестиционным потенциалом
Продажа
новинка
Просторная двухкомнатная квартира в сердце района Малинова Долина
г. София , кв. «Малинова Долина»
Квартира без мебели с оборудованной ванной комнатой, балконом и функциональной планировкой
Просторная двухкомнатная квартира в сердце района Малинова Долина - Квартира без мебели с оборудованной ванной комнатой, балконом и функциональной планировкой
Продажа
Солнечная студия в бутиковом комплексе в районе Малинова долина
г. София , кв. «Малинова Долина»
Инвестиционная недвижимость в развивающемся районе рядом с ключевыми транспортными связями
Солнечная студия в бутиковом комплексе в районе Малинова долина - Инвестиционная недвижимость в развивающемся районе рядом с ключевыми транспортными связями
Аренда
Просторный гараж в стратегически выгодном месте в районе Малинова Долина
г. София , кв. «Малинова Долина»
Премиум-подземный гараж с автоматическими воротами и видеонаблюдением
Просторный гараж в стратегически выгодном месте в районе Малинова Долина - Премиум-подземный гараж с автоматическими воротами и видеонаблюдением
Продажа
-1%
эксклюзивно
Люкс
Дизайнерская двухкомнатная квартира с Актом 16
г. София , кв. «Малинова Долина»
Современный и полностью меблированный апартамент по авторскому проекту
Дизайнерская двухкомнатная квартира с Актом 16 - Современный и полностью меблированный апартамент по авторскому проекту
Аренда
Современная меблированная двухкомнатная квартира в районе Малинова Долина
г. София , кв. «Малинова Долина»
Комфортабельная двухкомнатная квартира с удобным доступом к бульвару Симеоновско Шоссе
Современная меблированная двухкомнатная квартира в районе Малинова Долина - Комфортабельная двухкомнатная квартира с удобным доступом к бульвару Симеоновско Шоссе
Продажа
Южный трехкомнатный квартира в новом комплексе с Актом 16 в кв. Малинова долина
г. София , кв. «Малинова Долина»
Двухкомнатная квартира в современном здании рядом с магазином Фантастико
Южный трехкомнатный квартира в новом комплексе с Актом 16 в кв. Малинова долина - Двухкомнатная квартира в современном здании рядом с магазином Фантастико
Продажа
Люкс
Просторная трёхкомнатная квартира в р-не Малинова долина
г. София , кв. «Малинова Долина»
Современная квартира с двумя спальнями, двумя ванными комнатами и двумя балконами
Просторная трёхкомнатная квартира в р-не Малинова долина - Современная квартира с двумя спальнями, двумя ванными комнатами и двумя балконами
Продажа
Подземные гаражи и парковочные места в районе Малинова Долина
г. София , кв. «Малинова Долина»
Гаражи и парковочные места в элитном комплексе из трёх многоквартирных жилых домов с Актом 16
Подземные гаражи и парковочные места в районе Малинова Долина - Гаражи и парковочные места в элитном комплексе из трёх многоквартирных жилых домов с Актом 16
Продажа
Квартира с двумя комнатами, восточная, с просторной террасой в районе Малинова Долина
г. София , кв. «Малинова Долина»
Роскошное жильё в новом комплексе, готовое к заселению весной 2026 года
Квартира с двумя комнатами, восточная, с просторной террасой в районе Малинова Долина - Роскошное жильё в новом комплексе, готовое к заселению весной 2026 года
Продажа
Небольшое бутиковое здание в районе Студенческий
г. София , кв. «Малинова Долина»
Ограниченное количество квартир с современным дизайном планировки
Небольшое бутиковое здание в районе Студенческий - Ограниченное количество квартир с современным дизайном планировки
Продажа
Современный комплекс из двух зданий у подножия Витоши
г. София , кв. «Малинова Долина»
Одно- и двухкомнатные квартиры с отличным расположением в Малинова долина
Современный комплекс из двух зданий у подножия Витоши - Одно- и двухкомнатные квартиры с отличным расположением в Малинова долина
Продажа
Люкс
Роскошная двухкомнатная квартира в районе Малинова Долина
г. София , кв. «Малинова Долина»
Современное жильё с дизайнерским интерьером и высоким уровнем комфорта
Роскошная двухкомнатная квартира в районе Малинова Долина - Современное жильё с дизайнерским интерьером и высоким уровнем комфорта
Продажа
Жилой комплекс из двух зданий в кв. Долина Малинова
г. София , кв. «Малинова Долина»
Последние квартиры в комплексе из двух зданий в кв. Малинова долина
Жилой комплекс из двух зданий в кв. Долина Малинова - Последние квартиры в комплексе из двух зданий в кв. Малинова долина
Продажа
Новый жилой комплекс в Малиновой долине
г. София , кв. «Малинова Долина»
Качественное строительство и стильный внешний вид
Новый жилой комплекс в Малиновой долине - Качественное строительство и стильный внешний вид
Продажа
Инновационный жилой комплекс с Акт 16 в Малиновая долина
г. София , кв. «Малинова Долина»
Функциональные квартиры в 200 м от будущей станции метро
Инновационный жилой комплекс с Акт 16 в Малиновая долина - Функциональные квартиры в 200 м от будущей станции метро
Продажа
Новое здание с актом 16 между пл. Дианабад и Студенческим проездом
г. София , кв. «Малинова Долина»
Комфортабельные квартиры рядом со Студенческим парком, бульвар Дяганова. Г. М. Димитрова, университетов и метро
Новое здание с актом 16 между пл. Дианабад и Студенческим проездом - Комфортабельные квартиры рядом со Студенческим парком, бульвар Дяганова. Г. М. Димитрова, университетов и метро
Продажа
Четырехкомнатная квартира в Lux Building 9 в кв. Малинова долина
г. София , кв. «Малинова Долина»
Высокое качество строительства в районе с развитой инфраструктурой
Четырехкомнатная квартира в Lux Building 9 в кв. Малинова долина - Высокое качество строительства в районе с развитой инфраструктурой
Продажа
Жилой дом в непосредственной близости от НСА
г. София , кв. «Малинова Долина»
Апартаменты с 1, 2 или 3 спальнями в новом здании в кв. Малинова долина
Жилой дом в непосредственной близости от НСА - Апартаменты с 1, 2 или 3 спальнями в новом здании в кв. Малинова долина
Еще объекты недвижимости в г. София
Продажа
эксклюзивноХит продаж
Предложение недели
Central Park - 7 зданий с парковой территорией. Лидер рынка за 2024г!
г. София , кв. «Банишора»
Уникальный комплекс, воссоздающий стиль и атмосферу одноименного парка в Нью-Йорке
Central Park - 7 зданий с парковой территорией. Лидер рынка за 2024г! - Уникальный комплекс, воссоздающий стиль и атмосферу одноименного парка в Нью-Йорке
Продажа
эксклюзивно
Люкс
SKY TOWERS by AMur — Новый архитектурный символ Софии
г. София , кв. «Манастирски Ливади»
Роскошный комплекс с панорамными видами, топовой локацией и впечатляющим силуэтом, расположенный между городской динамикой и горами.
SKY TOWERS by AMur — Новый архитектурный символ Софии - Роскошный комплекс с панорамными видами, топовой локацией и впечатляющим силуэтом, расположенный между городской динамикой и горами.
Продажа
эксклюзивно
Люкс
Synera Residence — новые квартиры в р-не Манастирски Ливади
г. София , кв. «Манастирски Ливади»
Здание, объединяющее городскую динамику и близость к природе
Synera Residence — новые квартиры в р-не Манастирски Ливади - Здание, объединяющее городскую динамику и близость к природе
Продажа
эксклюзивно
Люкс
Corner Park – новый жилой комплекс в Софии, район Сухая река
г. София , кв. «Сухата Река»
Современная архитектура, отличное расположение и гибкие условия оплаты
Corner Park – новый жилой комплекс в Софии, район Сухая река - Современная архитектура, отличное расположение и гибкие условия оплаты
Продажа
эксклюзивно
Стильный новый проект в Малинова долина – современное жилье в формирующейся приятной жилой зоне
г. София , кв. «Малинова Долина»
Современный комфорт и инвестиционная безопасность в сердце Малинова долина
Стильный новый проект в Малинова долина – современное жилье в формирующейся приятной жилой зоне - Современный комфорт и инвестиционная безопасность в сердце Малинова долина
Продажа
эксклюзивноХит продаж
Наземные гаражи в новом здании в отличном месте рядом с НСА
г. София , кв. «Малинова Долина»
Последние гаражи в новом здании с Актом 14 в кв. Малинова долина
Наземные гаражи в новом здании в отличном месте рядом с НСА - Последние гаражи в новом здании с Актом 14 в кв. Малинова долина
Продажа
новинка
Новое здание всего с 16 квартирами в кв. Манастирски Ливади
г. София , кв. «Манастирски Ливади»
Квартиры с 1, 2 или 3 спальнями рядом с Витошей и с удобным сообщением с центром столицы
Новое здание всего с 16 квартирами в кв. Манастирски Ливади - Квартиры с 1, 2 или 3 спальнями рядом с Витошей и с удобным сообщением с центром столицы
Продажа
новинка
эксклюзивно
Элитный городской комплекс из двух корпусов Green View Apartments в районе Княжево
г. София , кв. «Княжево»
2- и 3-комнатные квартиры, качественное строительство
Элитный городской комплекс из двух корпусов Green View Apartments в районе Княжево - 2- и 3-комнатные квартиры, качественное строительство
Продажа
Резиденции с центральным расположением на бул. Сливница с Акт 14
г. София , «Центр»
Квартиры с 1, 2 или 3 спальнями в элитном 9-этажном здании
Резиденции с центральным расположением на бул. Сливница с Акт 14 - Квартиры с 1, 2 или 3 спальнями в элитном 9-этажном здании
Продажа
Люкс
Reina Sofia Residence - элитное жилье энергетического класса А рядом с Софийским зоопарком и Охотничьим парком
г. София , кв. «Крыстова Вада»
Последние магазины и апартаменты с 2 спальнями в комплексе с зелеными насаждениями и полученным Актом 16
Reina Sofia Residence - элитное жилье энергетического класса А рядом с Софийским зоопарком и Охотничьим парком - Последние магазины и апартаменты с 2 спальнями в комплексе с зелеными насаждениями и полученным Актом 16
Продажа
Жилой дом из двух секций рядом с Национальной академией спорта
г. София , кв. «Малинова Долина»
Новые апартаменты с отличным расположением у подножия Витоши
Жилой дом из двух секций рядом с Национальной академией спорта - Новые апартаменты с отличным расположением у подножия Витоши
Продажа
эксклюзивноХит продаж
Малинова Долина, София Апартаментный комплекс - на стадии строительства
г. София , кв. «Малинова Долина»
Современные квартиры с просторной планировкой, качественным строительством
Малинова Долина, София Апартаментный комплекс - на стадии строительства - Современные квартиры с просторной планировкой, качественным строительством
Продажа
эксклюзивноХит продаж
Витоша Вью / Vitosha View - знаковый комплекс в Софии
г. София , кв. «Крыстова Вада»
Эксклюзивный жилой комплекс в 2 км от трасс горного курорта Витоша
Витоша Вью / Vitosha View - знаковый комплекс в Софии - Эксклюзивный жилой комплекс в 2 км от трасс горного курорта Витоша
Продажа
Новостройка рядом с бизнес-парком «София» и метро
г. София , кв. «Младост 4»
Квартиры с 1, 2 и 3 спальнями в новом комплексе в р-не Младост 4
Новостройка рядом с бизнес-парком «София» и метро - Квартиры с 1, 2 и 3 спальнями в новом комплексе в р-не Младост 4
Продажа
новинка
Меблированная четырёхкомнатная квартира в Младост 4
г. София , кв. «Младост 4»
Просторная квартира - отличный выбор в столице
Меблированная четырёхкомнатная квартира в Младост 4 - Просторная квартира - отличный выбор в столице
Продажа
новинка
Южная двухкомнатная квартира по акционной цене в районе Манастирски Ливади
г. София , кв. «Манастирски Ливади»
Современная архитектура, надёжный застройщик и панорамный вид на гору Витоша
Южная двухкомнатная квартира по акционной цене в районе Манастирски Ливади - Современная архитектура, надёжный застройщик и панорамный вид на гору Витоша
Продажа
новинка
Люкс
Двухкомнатная квартира по акционной цене в кв. Манастирски ливади
г. София , кв. «Манастирски Ливади»
Квартира с южной ориентацией на среднем этаже с видом на Копитото
Двухкомнатная квартира по акционной цене в кв. Манастирски ливади - Квартира с южной ориентацией на среднем этаже с видом на Копитото
Продажа
новинка
Светлая трехкомнатная квартира в районе Манастирски ливади
г. София , кв. «Манастирски Ливади»
Новое жилье высокого класса с городской панорамой
Светлая трехкомнатная квартира в районе Манастирски ливади - Новое жилье высокого класса с городской панорамой
Продажа
новинка
Просторная южная трёхкомнатная квартира в районе Манастирски Ливади, София
г. София , кв. «Манастирски Ливади»
Светлая квартира с двумя спальнями и двумя ванными комнатами в отличной локации
Просторная южная трёхкомнатная квартира в районе Манастирски Ливади, София - Светлая квартира с двумя спальнями и двумя ванными комнатами в отличной локации
Продажа
новинка
Светлая двухкомнатная квартира с отличной локацией рядом с НСА – кв. Малинова долина
г. София , кв. «Малинова Долина»
Просторная и светлая двухкомнатная квартира в новом здании с высоким инвестиционным потенциалом
Светлая двухкомнатная квартира с отличной локацией рядом с НСА – кв. Малинова долина - Просторная и светлая двухкомнатная квартира в новом здании с высоким инвестиционным потенциалом
Продажа
новинка
Трёхкомнатная квартира с двором в кв. Малинова долина
г. София , кв. «Малинова Долина»
Новое просторное жильё с двумя спальнями, двумя ванными комнатами и собственным двором
Трёхкомнатная квартира с двором в кв. Малинова долина - Новое просторное жильё с двумя спальнями, двумя ванными комнатами и собственным двором
Аренда
новинка
Полностью южная двухкомнатная квартира в престижном районе
г. София , кв. «Белите брези»
Светлая квартира с отличной транспортной доступностью
Полностью южная двухкомнатная квартира в престижном районе - Светлая квартира с отличной транспортной доступностью
Продажа
новинка
Двухкомнатная квартира по акционной цене в районе Манастирски ливади
г. София , кв. «Манастирски Ливади»
Новое жильё с южной ориентацией и панорамным видом на Витошу и Копитото
Двухкомнатная квартира по акционной цене в районе Манастирски ливади - Новое жильё с южной ориентацией и панорамным видом на Витошу и Копитото
Аренда
новинка
Полностью меблированная квартира с тремя спальнями в аренду, ж.к. Красна Поляна 2
г. София , кв. «Красна поляна 2»
Удобное жильё в районе с развитой инфраструктурой
Полностью меблированная квартира с тремя спальнями в аренду, ж.к. Красна Поляна 2 - Удобное жильё в районе с развитой инфраструктурой
Подписывайтесь на наш канал