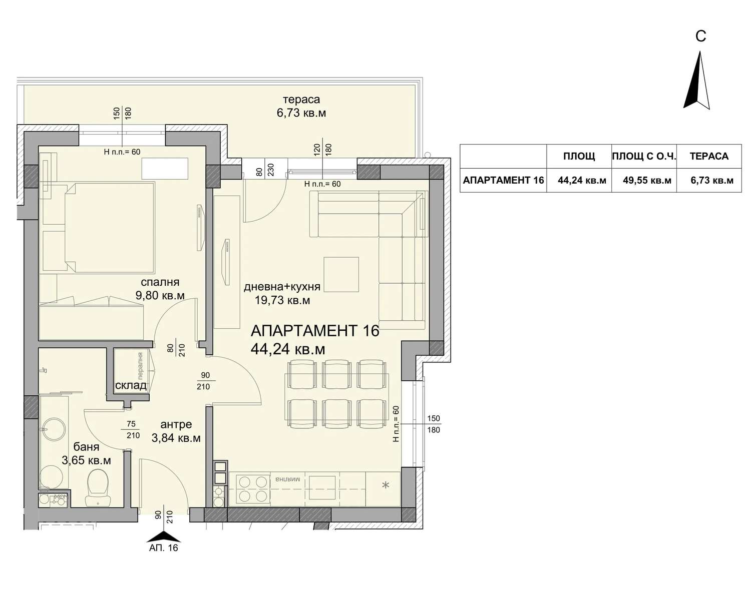
квартира 16 , общая площадь 57.00 кв.м. (жилая площадь 44.24 кв.м. + общие части 5.76 кв.м.), плюс терраса площадью 7.00 кв.м. - .
Выберите свой новый дом с одной или двумя спальнями в новом жилом комплексе, состоящем из трех зданий с Актом 16, построенном на участке 2500 м2 с чрезвычайно тихим и спокойным расположением в Кв. Недвижимость расположена в очень тихом и спокойном районе, в 150 м от пляжа, рядом с начальной школой, детским садом, остановками общественного транспорта, продуктовыми магазинами, кафе, ресторанами, ресторанами быстрого питания, медицинским центром, магазинами модной одежды и всеми городскими удобствами.
Проект сочетает в себе преимущества закрытого сообщества без навязанной платы за обслуживание. Здания расположены таким образом, что все дома максимально освещены солнцем. Каждый из них имеет четыре фасада с основными видами на юг, восток и запад. На все этажи можно подняться на бесшумных лифтах с автоматическими дверями.
В строительстве использованы материалы высочайшего класса:
• Железобетонная конструкция
• Кладка из многоячеистых керамических блоков
• Наружная теплоизоляция плитами толщиной 10 см с повышенной плотностью 15-18 кг/м2 для улучшения теплоизоляционных свойств
• Штукатурка ведущей марки "Baumit", с мягкими, нейтральными и приятными цветами
• Качественные 6-камерные немецкие оконные рамы ПВХ марки "Aluplast" с увеличенной толщиной рамы 8,5 см с немецкой фурнитурой "Rotto" и энергосберегающими стеклопакетами 4 сезона. Сочетание качественной столярки и надежной теплоизоляции гарантирует отличный климатический комфорт и низкие счета за электричество.
• Красивые антикоррозийные балконные перила из алюминия и стекла
• Роскошные общие зоны с полом из натурального гранита
Квартиры оформлены в соответствии с BDS:
• Оштукатуренные стены и потолки
• Пол - ровная цементная стяжка
• Стены ванной комнаты - облицовочная цементная штукатурка
• Террасы - морозостойкая керамогранитная плитка
• Выполненная электропроводка с предохранительными щитками
• Сантехническая разводка в соответствии с проектом с установленным индивидуальным счетчиком воды
• Установлена бронированная входная дверь с двумя замками
• Облицовка квартир первого этажа красивым натуральным камнем - травертином. Квартиры на первом этаже имеют собственный двор с богатым ландшафтным дизайном
Есть возможность завершения ремонта силами инвестора, обсуждается.
Имеются парковочные места на территории комплекса и в подземном паркинге, которые приобретаются отдельно.
Район Сарафово расположен на берегу моря и соединен велосипедными дорожками и пешеходной зоной с морским садом Бургаса. Совсем рядом с Сарафово находятся озера со знаменитой целебной бургасской щелочью. Прекрасные пляжи, круглогодичный мягкий черноморский климат, тишина и покой делают этот район желанным местом для жизни и отдыха. На автомобиле расстояние до центра города составляет 10 мин.
Вид недвижимости
Мы можем организовать просмотр недвижимости в удобное для вас время. Для этого свяжитесь с брокером, ответственным за данное предложение, и сообщите ему, когда вы хотели бы провести осмотр.
Резервирование недвижимости
Объект может быть зарезервирован и снят с продажи с внесением залога, после чего прекращаются просмотры с другими покупателями и начинается подготовка документов для заключения предварительного и окончательного контракта. Пожалуйста, свяжитесь с ответственным брокером по данному объекту недвижимости для получения подробной информации о процедуре покупки и порядке оплаты.
- Описание
- Характеристики
- Галерея
- Местоположение
- Прайс-лист
Характеристики
Тип недвижимости
Двухкомнатная квартира
Реф. номер
BS 86006
Площадь
57.00 м2 (жилая площадь: 51.24 м2 плюс общие части: 5.76 м2) еще
Спальни
1
Состояние
болгарский государственный стандарт
Этаж
3 из 4
Лифт
да
Меблировка
Немеблированная
Вид строительства
Новостройки
Год строительства
2024
Плата за обслуживание
нет
Акт 16
да
Новостройки с актом 16 в кв. Сарафово дополнительная информация:
Планы
Планы
Прайс-лист
Качество воздуха
Фото с воздуха
Генплан
360° градусов
Инфо пакет
Референтный номер: BS 86006
Местоположение
г. Бургас, кв.«Сарафово»- 150 м до пляжа
Удобства района
- Аэропорт "Летище Бургас" 1.0 км (13 мин.)
- Детский сад "ЦДГ N19 “Ален мак”" 774 м (10 мин.)
- Школа "ОУ "Христо Ботев"" 445 м (6 мин.)
- Продуктовый магазин "Arito" 363 м (5 мин.)
- Супермаркет 245 м (3 мин.)
- Супермаркет "Dextyr" 476 м (6 мин.)
- Банк "D Commerce Bank" 583 м (8 мин.)
- Банк "D Commerce Bank" 583 м (8 мин.)
- Аптека 488 м (6 мин.)
- Ресторан "Кедъра" 551 м (7 мин.)
- Кафе "Cotta" 554 м (7 мин.)
- Пляж 150 м (2 мин.)
- Плавательный бассейн 146 м (2 мин.)
- Музей "Авиационнен музей" 923 м (12 мин.)
- Парк 223 м (3 мин.)
- Парковка 273 м (4 мин.)
ТРАНСПОРТ
УЧЕБНЫЕ ЗАВЕДЕНИЯ
ШОПИНГ
УСЛУГИ
ЗАВЕДЕНИЯ
СПОРТ И СВОБОДНОЕ ВРЕМЯ
ПРИРОДА И РАЗВЛЕЧЕНИЯ
АВТОМОБИЛЬНЫЕ УСЛУГИ
ОТПРАВЬТЕ ЗАПРОС
€ 105 000
- €
- руб.
- $
Платежи с карты и PayPal.
Располагаем онлайн ПОС терминалом
Располагаем онлайн ПОС терминалом
Комплекс сдан!
Дата сдачи: 01.11.2024 г
Агенству причитается комиссия
Прайс-лист
*/ ?>
ПОДРОБНАЯ ИНФОРМАЦИЯ
Реф. номер: BS 86006
При звонке, пожалуйста, указывайте номер объекта недвижимости.
Объектов недвижимости в этом комплексе
27
объектов недвижимости
9
свободных
15
проданных
3
забронированных
ОТПРАВЬТЕ ЗАПРОС
Еще объекты недвижимости в в этом комплексе
Продажа
новинка
Трехкомнатная квартира в Новостройки с актом 16 в кв. Сарафово
г. Бургас , кв. «Сарафово»
Продажа — трехкомнатная квартира
Продажа
новинка
Трехкомнатная квартира в Новостройки с актом 16 в кв. Сарафово
г. Бургас , кв. «Сарафово»
Продажа — трехкомнатная квартира
Продажа
новинка
Трехкомнатная квартира в Новостройки с актом 16 в кв. Сарафово
г. Бургас , кв. «Сарафово»
Продажа — трехкомнатная квартира
Продажа
новинка
Трехкомнатная квартира в Новостройки с актом 16 в кв. Сарафово
г. Бургас , кв. «Сарафово»
Продажа — трехкомнатная квартира
Продажа
новинка
Двухкомнатная квартира в Новостройки с актом 16 в кв. Сарафово
г. Бургас , кв. «Сарафово»
Продажа — двухкомнатная квартира
Продажа
новинка
Двухкомнатная квартира в Новостройки с актом 16 в кв. Сарафово
г. Бургас , кв. «Сарафово»
Продажа — двухкомнатная квартира
Продажа
новинка
Двухкомнатная квартира в Новостройки с актом 16 в кв. Сарафово
г. Бургас , кв. «Сарафово»
Продажа — двухкомнатная квартира
Продажа
новинка
Двухкомнатная квартира в Новостройки с актом 16 в кв. Сарафово
г. Бургас , кв. «Сарафово»
Продажа — двухкомнатная квартира
Продажа
новинка
Двухкомнатная квартира в Новостройки с актом 16 в кв. Сарафово
г. Бургас , кв. «Сарафово»
Продажа — двухкомнатная квартира
Еще объекты недвижимости в кв. Сарафово
Продажа
новинка
Трёхкомнатная квартира с парковочным местом в районе Сарафово, Бургас
г. Бургас , кв. «Сарафово»
Обставленный дом в шаге от пляжа, полностью готовый к заселению
Трёхкомнатная квартира с парковочным местом в районе Сарафово, Бургас - Обставленный дом в шаге от пляжа, полностью готовый к заселению
Продажа
новинка
Люкс
ПЕРВАЯ ЛИНИЯ
Трехкомнатная квартира Бургас
г. Бургас , кв. «Сарафово»
трехкомнатных квартир, Бургас
Трехкомнатная квартира Бургас - трехкомнатных квартир, Бургас
Продажа
Люкс
ПЕРВАЯ ЛИНИЯ
Трехкомнатная квартира на первой линии в районе Сарафово
г. Бургас , кв. «Сарафово»
Полностью меблированная квартира в современном закрытом жилом комплексе
Трехкомнатная квартира на первой линии в районе Сарафово - Полностью меблированная квартира в современном закрытом жилом комплексе
Аренда
Пентхаус с двумя спальнями в центре района Сарафово
г. Бургас , кв. «Сарафово»
Уютная квартира с парковочным местом и панорамным видом в 200 м от пляжа
Пентхаус с двумя спальнями в центре района Сарафово - Уютная квартира с парковочным местом и панорамным видом в 200 м от пляжа
Продажа
ВТОРАЯ ЛИНИЯ
Новый жилой проект на улице Манастирской в районе Сарафово
г. Бургас , кв. «Сарафово»
Разнообразные квартиры на второй линии от пляжа
Новый жилой проект на улице Манастирской в районе Сарафово - Разнообразные квартиры на второй линии от пляжа
от € 94 813
(€/кв.м. 1 170 - €/кв.м. 1 650)Площадь: 60.78 - 100.01 кв.м.
Павел Раванов
Риэлтор, Бургас
Продажа
Новый жилой комплекс в 200 метрах от пляжа в Сарафово
г. Бургас , кв. «Сарафово»
Современное здание с разнообразием квартир у моря
Новый жилой комплекс в 200 метрах от пляжа в Сарафово - Современное здание с разнообразием квартир у моря
Продажа
Новый строящийся жилой дом в кв. Сарафово
г. Бургас , кв. «Сарафово»
Различные типы современных квартир в 500 м от пляжа
Новый строящийся жилой дом в кв. Сарафово - Различные типы современных квартир в 500 м от пляжа
Аренда
Меблированный пентхаус в аренду с панорамным видом на море в районе Сарафово
г. Бургас , кв. «Сарафово»
Просторная квартира с большой террасой и впечатляющим морским пейзажем
Меблированный пентхаус в аренду с панорамным видом на море в районе Сарафово - Просторная квартира с большой террасой и впечатляющим морским пейзажем
Продажа
Люкс
ПЕРВАЯ ЛИНИЯ
Трехкомнатная квартира с видом на море на первой линии в Сарафово
г. Бургас , кв. «Сарафово»
Квартира с южной экспозицией в небольшом комплексе на берегу моря, на высоте 15 метров над уровнем моря
Трехкомнатная квартира с видом на море на первой линии в Сарафово - Квартира с южной экспозицией в небольшом комплексе на берегу моря, на высоте 15 метров над уровнем моря
Продажа
Люкс
ПЕРВАЯ ЛИНИЯ
Дома на первой линии у моря с панорамными террасами
г. Бургас , кв. «Сарафово»
Элитный комплекс рядом с Бургаским заливом в районе г. Бургас
Дома на первой линии у моря с панорамными террасами - Элитный комплекс рядом с Бургаским заливом в районе г. Бургас
Аренда
Люкс
Двухкомнатная квартира на первой линии у моря в Сарафово
г. Бургас , кв. «Сарафово»
Квартира с мебелью и висом на море в аренду в Бургасе
Двухкомнатная квартира на первой линии у моря в Сарафово - Квартира с мебелью и висом на море в аренду в Бургасе
Продажа
Двухэтажный дом с участком в районе Лахана
г. Бургас , кв. «Сарафово»
Замечательный дом в закрытом комплексе в квартале Сарафово
Двухэтажный дом с участком в районе Лахана - Замечательный дом в закрытом комплексе в квартале Сарафово
Аренда
Двухкомнатная квартира недалеко от пляжа в Сарафово
г. Бургас , кв. «Сарафово»
Полностью меблированная квартира с видом на море, в тихом месте, с 6 месяцев предоплаченного телевидения и интернета
Двухкомнатная квартира недалеко от пляжа в Сарафово - Полностью меблированная квартира с видом на море, в тихом месте, с 6 месяцев предоплаченного телевидения и интернета
Продажа
Трёхкомнатная квартира с видом на море
г. Бургас , кв. «Сарафово»
Недвижимость в здании с Актом 16 в р-не Сарафово
Трёхкомнатная квартира с видом на море - Недвижимость в здании с Актом 16 в р-не Сарафово
Продажа
Элитный жилой дом с магазинами и детской площадкой в квартале Сарафово
г. Бургас , кв. «Сарафово»
Студии, двухкомнатные и трехкомнатные квартиры в здании без платы за обслуживание!
Элитный жилой дом с магазинами и детской площадкой в квартале Сарафово - Студии, двухкомнатные и трехкомнатные квартиры в здании без платы за обслуживание!
от € 55 000
(€/кв.м. 1 586 - €/кв.м. 1 784)Площадь: 31.41 - 102.73 кв.м.
Георги Иванов
Риэлтор, Бургас
Продажа
Новый построенный жилой комплекс в Сарафово
г. Бургас , кв. «Сарафово»
Последние просторные квартиры элитного строительства без платы за обслуживание
Новый построенный жилой комплекс в Сарафово - Последние просторные квартиры элитного строительства без платы за обслуживание
от € 99 312
(€/кв.м. 1 250 - €/кв.м. 1 263)Площадь: 78.65 - 103.29 кв.м.
Павел Раванов
Риэлтор, Бургас
Продажа
Новостройка с актом 14 в кв. Сарафово
г. Бургас , кв. «Сарафово»
Одно- и двухкомнатные квартиры в 300 метрах от пляжа и рядом с комплексом "Атлантис"
Новостройка с актом 14 в кв. Сарафово - Одно- и двухкомнатные квартиры в 300 метрах от пляжа и рядом с комплексом "Атлантис"
от € 88 000
(€/кв.м. 1 239 - €/кв.м. 1 241)Площадь: 70.93 - 88.77 кв.м.
Павел Раванов
Риэлтор, Бургас
Продажа
Последние квартиры с Актом 16 в кв. Сарафово
г. Бургас , кв. «Сарафово»
Последние квартиры на продажу в нескольких метрах от порта «Сарафово»
Последние квартиры с Актом 16 в кв. Сарафово - Последние квартиры на продажу в нескольких метрах от порта «Сарафово»
от € 188 000
(€/кв.м. 1 138 - €/кв.м. 1 456)Площадь: 129.11 - 316.33 кв.м.
Павел Раванов
Риэлтор, Бургас
Продажа
Новый жилой проект с современной архитектурой и отличной локацией у моря
г. Бургас , кв. «Сарафово»
Отличные квартиры в новом здании в кв. Сарафово
Новый жилой проект с современной архитектурой и отличной локацией у моря - Отличные квартиры в новом здании в кв. Сарафово
от € 128 174
(€/кв.м. 690 - €/кв.м. 1 380)Площадь: 113.08 - 185.76 кв.м.
Павел Раванов
Риэлтор, Бургас
Продажа
Элегантный двухэтажный дом в закрытом комплексе в местности «Лахана»
г. Бургас , кв. «Сарафово»
Прекрасный двухэтажный дом между Бургасом и Поморием
Элегантный двухэтажный дом в закрытом комплексе в местности «Лахана» - Прекрасный двухэтажный дом между Бургасом и Поморием
Продажа
Новые дома с выгодным расположением в районе Лахана
г. Бургас , кв. «Сарафово»
Отдельные двухэтажные дома с частным двором в 300 м от пляжа
Новые дома с выгодным расположением в районе Лахана - Отдельные двухэтажные дома с частным двором в 300 м от пляжа
Продажа
ПЕРВАЯ ЛИНИЯ
Просторная новая трехкомнатная квартира в кв. Сарафово
г. Бургас , кв. «Сарафово»
Квартира с возможностью переоборудования в четырехкомнатную с садом над землей
Просторная новая трехкомнатная квартира в кв. Сарафово - Квартира с возможностью переоборудования в четырехкомнатную с садом над землей
Продажа
Люкс
Новые построенные дома в комплексе в Сарафово
г. Бургас , кв. «Сарафово»
Дома в живописном районе в 500 м от пляжа
Новые построенные дома в комплексе в Сарафово - Дома в живописном районе в 500 м от пляжа
Еще объекты недвижимости в г. Бургас
Продажа
Люкс
Высококлассный жилой проект с теплым соединением с торговым центром Grand Plaza
г. Бургас , кв. «Хоризонт»
Резиденции в современном закрытом комплексе в Бургас
Высококлассный жилой проект с теплым соединением с торговым центром Grand Plaza - Резиденции в современном закрытом комплексе в Бургас
от € 95 002
(€/кв.м. 1 537 - €/кв.м. 1 697)Площадь: 60.44 - 117.56 кв.м.
Павел Раванов
Риэлтор, Бургас
Продажа
новинка
лучшее предложение
Двухкомнатная квартира после капитального ремонта в ж.к. Славейков
г. Бургас , кв. «Славейков»
Жильё с отличным расположением, готовое для проживания или инвестиций
Двухкомнатная квартира после капитального ремонта в ж.к. Славейков - Жильё с отличным расположением, готовое для проживания или инвестиций
Продажа
новинка
Трёхкомнатная квартира в ж.к. Лазур — в нескольких минутах от моря и парка
г. Бургас , кв. «Лазур»
Функциональная квартира с двумя спальнями, двумя балконами и отличным расположением в одном из самых предпочитаемых районов Бургас
Трёхкомнатная квартира в ж.к. Лазур — в нескольких минутах от моря и парка - Функциональная квартира с двумя спальнями, двумя балконами и отличным расположением в одном из самых предпочитаемых районов Бургас
Продажа
новинка
лучшее предложение
Однокомнатная квартира в районе Възраждане, Бургас
г. Бургас , кв. «Вызраждане»
Южная квартира на первом жилом этаже рядом с рынком «Краснодар»
Однокомнатная квартира в районе Възраждане, Бургас - Южная квартира на первом жилом этаже рядом с рынком «Краснодар»
Продажа
новинка
Трёхкомнатная квартира с парковочным местом в районе Сарафово, Бургас
г. Бургас , кв. «Сарафово»
Обставленный дом в шаге от пляжа, полностью готовый к заселению
Трёхкомнатная квартира с парковочным местом в районе Сарафово, Бургас - Обставленный дом в шаге от пляжа, полностью готовый к заселению
Продажа
новинка
Просторная трёхкомнатная квартира в «Славейков» – г. Бургас
г. Бургас , кв. «Славейков»
Отличное расположение рядом с парком и ключевой инфраструктурой – готова к заселению
Просторная трёхкомнатная квартира в «Славейков» – г. Бургас - Отличное расположение рядом с парком и ключевой инфраструктурой – готова к заселению
Аренда
новинка
Офис в центре города рядом с Судебным дворцом
г. Бургас , «Центр»
Офис с отличной локацией в Бургас
Офис в центре города рядом с Судебным дворцом - Офис с отличной локацией в Бургас
Продажа
новинка
Здание в центре Бургаса, в нескольких метрах от Муниципалитета
г. Бургас , «Центр»
Эмблематичное здание – памятник культуры, с фасадом на пешеходную зону и высоким инвестиционным потенциалом
Здание в центре Бургаса, в нескольких метрах от Муниципалитета - Эмблематичное здание – памятник культуры, с фасадом на пешеходную зону и высоким инвестиционным потенциалом
Продажа
новинка
лучшее предложение
Инвестиционная недвижимость в центре Бургаса
г. Бургас , «Центр»
Самостоятельный объект с верандой во внутреннем дворе, рядом с Муниципалитетом
Инвестиционная недвижимость в центре Бургаса - Самостоятельный объект с верандой во внутреннем дворе, рядом с Муниципалитетом
Продажа
новинка
Продается двухкомнатная квартира в жилом комплексе «Зорница»
г. Бургас , кв. «Зорница»
Комфортабельно меблированная квартира рядом с входом в Морской сад
Продается двухкомнатная квартира в жилом комплексе «Зорница» - Комфортабельно меблированная квартира рядом с входом в Морской сад
Продажа
новинка
Меблированная студия с прилегающим двором в кв. Крайморие
г. Бургас , кв. «Крайморие»
Студия на нулевом этаже с актом 16 и отдельным входом в 100 метрах от пляжа
Меблированная студия с прилегающим двором в кв. Крайморие - Студия на нулевом этаже с актом 16 и отдельным входом в 100 метрах от пляжа
Продажа
новинка
Люкс
ПЕРВАЯ ЛИНИЯ
Трехкомнатная квартира Бургас
г. Бургас , кв. «Сарафово»
трехкомнатных квартир, Бургас
Трехкомнатная квартира Бургас - трехкомнатных квартир, Бургас
Продажа
Земельный участок сельскохозяйственного назначения в жилом районе Меден Рудник
г. Бургас , кв. «Меден рудник»
Отличная инвестиционная возможность в Бургасском регионе
Земельный участок сельскохозяйственного назначения в жилом районе Меден Рудник - Отличная инвестиционная возможность в Бургасском регионе
Продажа
Люкс
ПЕРВАЯ ЛИНИЯ
Трехкомнатная квартира на первой линии в районе Сарафово
г. Бургас , кв. «Сарафово»
Полностью меблированная квартира в современном закрытом жилом комплексе
Трехкомнатная квартира на первой линии в районе Сарафово - Полностью меблированная квартира в современном закрытом жилом комплексе
Аренда
Пентхаус с двумя спальнями в центре района Сарафово
г. Бургас , кв. «Сарафово»
Уютная квартира с парковочным местом и панорамным видом в 200 м от пляжа
Пентхаус с двумя спальнями в центре района Сарафово - Уютная квартира с парковочным местом и панорамным видом в 200 м от пляжа
Продажа
Студия в новом современном здании в кв. Братя Миладинови
г. Бургас , кв. «Братя Миладинови»
Отличная инвестиция и расположение рядом с парком
Студия в новом современном здании в кв. Братя Миладинови - Отличная инвестиция и расположение рядом с парком
Продажа
Люкс
Резиденция рядом с Морским садом, центральным пляжем и центром Бургас
г. Бургас , кв. «Братя Миладинови»
Последние апартаменты с 360° панорамным видом на город и море
Резиденция рядом с Морским садом, центральным пляжем и центром Бургас - Последние апартаменты с 360° панорамным видом на город и море
от € 205 700
(€/кв.м. 2 400 - €/кв.м. 3 125)Площадь: 84.46 - 207.98 кв.м.
Георги Иванов
Риэлтор, Бургас
Продажа
Люкс
ПЕРВАЯ ЛИНИЯ
Kafka – первоклассный морской комплекс нового поколения на первой линии в Крайморие
г. Бургас , кв. «Крайморие»
Масштабный жилой проект между тремя пляжами – отдельные дома с собственным двором, современные апартаменты, полноценная инфраструктура и круглогодичный комфорт
Kafka – первоклассный морской комплекс нового поколения на первой линии в Крайморие - Масштабный жилой проект между тремя пляжами – отдельные дома с собственным двором, современные апартаменты, полноценная инфраструктура и круглогодичный комфорт
Продажа
Новый жилой комплекс в квартале Изгрев, Бургас
г. Бургас , кв. «Изгрев»
Двух- и трёхкомнатные квартиры с видом на парк
Новый жилой комплекс в квартале Изгрев, Бургас - Двух- и трёхкомнатные квартиры с видом на парк
от € 129 785
(€/кв.м. 1 690 - €/кв.м. 2 013)Площадь: 74.32 - 137.43 кв.м.
Георги Иванов
Риэлтор, Бургас
Продажа
Современный жилой проект в районе Славейков, Бургас
г. Бургас , кв. «Славейков»
Современные двух- и трехкомнатные квартиры, и мезонеты в отличном месте с высококачественным исполнением
Современный жилой проект в районе Славейков, Бургас - Современные двух- и трехкомнатные квартиры, и мезонеты в отличном месте с высококачественным исполнением
от € 129 100
(€/кв.м. 1 200 - €/кв.м. 2 000)Площадь: 74.62 - 314.30 кв.м.
Георги Иванов
Риэлтор, Бургас
Продажа
Люкс
Луксозен жилищный проект в кв. Хоризонт
г. Бургас , кв. «Хоризонт»
Современное жилище рядом новом студенческом кампусе в гр. Бургас
Луксозен жилищный проект в кв. Хоризонт - Современное жилище рядом новом студенческом кампусе в гр. Бургас
от € 96 585
(€/кв.м. 1 377 - €/кв.м. 1 550)Площадь: 66.61 - 101.38 кв.м.
Георги Иванов
Риэлтор, Бургас
Продажа
-10%
Люкс
Здание в центре Бургаса
г. Бургас , «Центр»
Четырёхэтажное здание со стабильным арендным доходом
Здание в центре Бургаса - Четырёхэтажное здание со стабильным арендным доходом
Продажа
ВТОРАЯ ЛИНИЯ
Новый жилой проект на улице Манастирской в районе Сарафово
г. Бургас , кв. «Сарафово»
Разнообразные квартиры на второй линии от пляжа
Новый жилой проект на улице Манастирской в районе Сарафово - Разнообразные квартиры на второй линии от пляжа
от € 94 813
(€/кв.м. 1 170 - €/кв.м. 1 650)Площадь: 60.78 - 100.01 кв.м.
Павел Раванов
Риэлтор, Бургас
Продажа
Участок в районе Крайморие рядом с Бургасом
г. Бургас , кв. «Крайморие»
Инвестиционный участок рядом с главной дорогой и морем
Участок в районе Крайморие рядом с Бургасом - Инвестиционный участок рядом с главной дорогой и морем
Подписывайтесь на наш канал