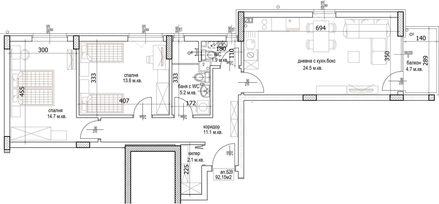
квартира B39 , общая площадь 107.28 кв.м. (жилая площадь 92.15 кв.м. + общие части 15.13 кв.м.).
Предлагаются к продаже разнообразные по функциональному назначению квартиры в новом масштабном проекте проверенной компании в квартале. Абрикосовый сад. Он отличается ярко выраженным городским обликом и эстетически сбалансированным фасадом, разнообразием цветовых элементов и функциональным распределением объемов. Объект расположен в динамично развивающемся районе с удобной инфраструктурой и близостью к зеленым зонам - отличное сочетание удобства, стиля и спокойствия.
• Здание 1 спроектировано с пятью отдельными входами. Концепция сочетает в себе современную композицию фасада с теплыми цветовыми акцентами, которые придают силуэту динамичность и элегантность. Подземный уровень полностью отведен под гаражи и парковочные места, а во внутреннем дворе расположены открытые парковочные зоны и зеленые насаждения.
• Здание 2 состоит из 4 входов, распределенных таким образом, чтобы обеспечить удобство и функциональность для жителей. На подземном уровне расположены гаражи и парковочные места, а на прилегающей к зданию территории - дополнительные открытые парковочные места и зеленые зоны отдыха. Контраст между теплыми и нейтральными тонами создает эстетический баланс, а широкие балконы и большие окна обеспечивают максимум света в каждой квартире.
Фасад здания выполнен с использованием сочетания современных материалов, обеспечивающих энергоэффективность и экологичность. Комплекс построен в соответствии с современными инженерными стандартами с использованием железобетонных элементов и надежной системы изоляции.
• Конструкция обеспечивает стабильность, долговечность и защиту при любых погодных условиях.
• Входы и коридоры спроектированы с учетом комфорта жильцов - просторные лестницы, хорошо освещенные помещения и высококачественные материалы.
• Общие зоны имеют законченный вид и создают комфортные условия для жизни.
• В каждом подъезде установлен современный лифт, который обеспечивает легкий и бесшумный доступ на все этажи, включая подземные гаражи. Это обеспечивает удобство как для семей с детьми, так и для людей с ограниченными возможностями передвижения.
• Крыша здания плоская и заполнена высококлассной гидро- и теплоизоляцией, отвечающей современным энергетическим стандартам.
• Водопроводная система построена из материалов проверенного качества, которые гарантируют надежность и оптимальное давление в любое время. Система спроектирована таким образом, чтобы обеспечить простоту обслуживания и долговечность.
• Здания оснащены современной электропроводкой и предусматривают интеграцию решений "умного дома". Во всех квартирах предусмотрены многочисленные точки питания и надежные электрические панели, отвечающие самым современным стандартам.
Для владельцев квартир предусмотрена подземная парковка с гаражами и парковочными местами, доступными непосредственно через лифты здания. Парковочные места также доступны во внутреннем дворе.
Квартиры разнообразны по площади и планировке - от функциональных, подходящих для молодых семей, до просторных домов с панорамными видами. Цены на сайте указаны для варианта оплаты 1. Позвоните нам для получения дополнительной информации и просмотра.
Посмотреть недвижимость
Мы можем организовать просмотр недвижимости в соответствии с нашим графиком и наличием свободных мест. Запросите просмотр, связавшись с брокером, ответственным за предложение, по электронной почте или телефону.
Резервирование недвижимости
Объект может быть зарезервирован и снят с продажи при внесении задатка, после чего прекращаются просмотры с другими покупателями и начинается подготовка документов для заключения предварительного и окончательного контракта. Свяжитесь с ответственным брокером для получения подробной информации о процедуре покупки и порядке оплаты.
- Описание
- Характеристики
- Галерея
- Местоположение
- Прайс-лист
Продажа
Трехкомнатная квартира в Новый масштабный жилой проект в районе Кайсиева Градина
г. Варна, кв.«Кайсиева градина»Современная городская архитектура в динамично развивающемся районе с удобной инфраструктурой и близостью к зеленым насаждениям – превосходное сочетание комфорта, стиля и спокойствия
Прочитайте больше
Характеристики
Тип недвижимости
Трехкомнатная квартира
Реф. номер
Vna 88180
Площадь
107.28 м2 (жилая площадь: 92.15 м2 плюс общие части: 15.13 м2) еще
Спальни
2
Состояние
болгарский государственный стандарт
Этаж
8 из 9
Лифт
да
Меблировка
Немеблированная
Отопление
Отопление кондиционером
Вид строительства
Кирпич, Новостройки
Окна выходят на:
Восток, Запад, На север, Юг
Год строительства
2028
Новый масштабный жилой проект в районе Кайсиева Градина дополнительная информация:
Планы
Планы
Прайс-лист
Качество воздуха
Меблировка
Плащане
План на строителство
Фото с воздуха
Генплан
360° градусов
Инфо пакет
Референтный номер: Vna 88180
Местоположение
г. Варна, кв.«Кайсиева градина»Удобства района
- Автобусная остановка "ОБЩЕЖИТИЕТО-2" 300 м (4 мин.) - Автобус No: 14, 41
- Детский сад "ДГ 39 "Приказка"" 58 м (1 мин.)
- Детский сад 903 м (11 мин.)
- Школа "ОУ Стоян Михайловски" 102 м (2 мин.)
- Школа "ОУ Патриарх Евтимий" 787 м (10 мин.)
- Медицинский центр 243 м (3 мин.)
- Продуктовый магазин 257 м (4 мин.)
- Супермаркет 154 м (2 мин.)
- Супермаркет "My Market, бл. 11" 750 м (10 мин.)
- Рынок 1.1 км (14 мин.)
- Пекарня 1.0 км (13 мин.)
- Аптека 254 м (4 мин.)
- Почта "Speedy" 720 м (9 мин.)
- Почта "Пощенски клон 23 (9023)" 1.1 км (14 мин.)
- Парикмахер 1.1 км (14 мин.)
- Ресторан "Борисовата воденица" 396 м (5 мин.)
- Ресторан 922 м (12 мин.)
- Кафе "Парадайс" 331 м (4 мин.)
- Бар "Shisha Pharaohs" 980 м (12 мин.)
- Музей "Музей Владислав Варненчик" 990 м (12 мин.)
- Парк 420 м (6 мин.)
- Парковка 272 м (4 мин.)
- Бензозаправочная станция "Sevi Oil" 420 м (6 мин.)
- Зарядная станция "Fines - Alpha Motors" 483 м (6 мин.)
- Мойка автомобилей "Bubbles Bay" 447 м (6 мин.)
- Автосервис "Колор груп ЕООД" 400 м (5 мин.)
ТРАНСПОРТ
УЧЕБНЫЕ ЗАВЕДЕНИЯ
МЕДИЦИНСКИЕ УЧРЕЖДЕНИЯ
ШОПИНГ
УСЛУГИ
ЗАВЕДЕНИЯ
СПОРТ И СВОБОДНОЕ ВРЕМЯ
ПРИРОДА И РАЗВЛЕЧЕНИЯ
АВТОМОБИЛЬНЫЕ УСЛУГИ
ОТПРАВЬТЕ ЗАПРОС
€ 138 500
- €
- руб.
- $
Платежи с карты и PayPal.
Располагаем онлайн ПОС терминалом
Располагаем онлайн ПОС терминалом
Комплекс строится
Ввод в эксплуатацию: 30.12.2028 г
Агенству причитается комиссия
Прайс-лист
*/ ?>
ПОДРОБНАЯ ИНФОРМАЦИЯ
Реф. номер: Vna 88180
При звонке, пожалуйста, указывайте номер объекта недвижимости.
Объектов недвижимости в этом комплексе
226
объектов недвижимости
94
свободных
104
проданных
28
забронированных
ОТПРАВЬТЕ ЗАПРОС
Еще объекты недвижимости в в этом комплексе
Продажа
Четырехкомнатная квартира в Новый масштабный жилой проект в районе Кайсиева Градина
г. Варна , кв. «Кайсиева градина»
Современная городская архитектура в динамично развивающемся районе с удобной инфраструктурой и близостью к зеленым насаждениям – превосходное сочетание комфорта, стиля и спокойствия
Продажа
Четырехкомнатная квартира в Новый масштабный жилой проект в районе Кайсиева Градина
г. Варна , кв. «Кайсиева градина»
Современная городская архитектура в динамично развивающемся районе с удобной инфраструктурой и близостью к зеленым насаждениям – превосходное сочетание комфорта, стиля и спокойствия
Продажа
Четырехкомнатная квартира в Новый масштабный жилой проект в районе Кайсиева Градина
г. Варна , кв. «Кайсиева градина»
Современная городская архитектура в динамично развивающемся районе с удобной инфраструктурой и близостью к зеленым насаждениям – превосходное сочетание комфорта, стиля и спокойствия
Продажа
Четырехкомнатная квартира в Новый масштабный жилой проект в районе Кайсиева Градина
г. Варна , кв. «Кайсиева градина»
Современная городская архитектура в динамично развивающемся районе с удобной инфраструктурой и близостью к зеленым насаждениям – превосходное сочетание комфорта, стиля и спокойствия
Продажа
Четырехкомнатная квартира в Новый масштабный жилой проект в районе Кайсиева Градина
г. Варна , кв. «Кайсиева градина»
Современная городская архитектура в динамично развивающемся районе с удобной инфраструктурой и близостью к зеленым насаждениям – превосходное сочетание комфорта, стиля и спокойствия
Продажа
Четырехкомнатная квартира в Новый масштабный жилой проект в районе Кайсиева Градина
г. Варна , кв. «Кайсиева градина»
Современная городская архитектура в динамично развивающемся районе с удобной инфраструктурой и близостью к зеленым насаждениям – превосходное сочетание комфорта, стиля и спокойствия
Продажа
Четырехкомнатная квартира в Новый масштабный жилой проект в районе Кайсиева Градина
г. Варна , кв. «Кайсиева градина»
Современная городская архитектура в динамично развивающемся районе с удобной инфраструктурой и близостью к зеленым насаждениям – превосходное сочетание комфорта, стиля и спокойствия
Продажа
Четырехкомнатная квартира в Новый масштабный жилой проект в районе Кайсиева Градина
г. Варна , кв. «Кайсиева градина»
Современная городская архитектура в динамично развивающемся районе с удобной инфраструктурой и близостью к зеленым насаждениям – превосходное сочетание комфорта, стиля и спокойствия
Продажа
Четырехкомнатная квартира в Новый масштабный жилой проект в районе Кайсиева Градина
г. Варна , кв. «Кайсиева градина»
Современная городская архитектура в динамично развивающемся районе с удобной инфраструктурой и близостью к зеленым насаждениям – превосходное сочетание комфорта, стиля и спокойствия
Продажа
Четырехкомнатная квартира в Новый масштабный жилой проект в районе Кайсиева Градина
г. Варна , кв. «Кайсиева градина»
Современная городская архитектура в динамично развивающемся районе с удобной инфраструктурой и близостью к зеленым насаждениям – превосходное сочетание комфорта, стиля и спокойствия
Продажа
Четырехкомнатная квартира в Новый масштабный жилой проект в районе Кайсиева Градина
г. Варна , кв. «Кайсиева градина»
Современная городская архитектура в динамично развивающемся районе с удобной инфраструктурой и близостью к зеленым насаждениям – превосходное сочетание комфорта, стиля и спокойствия
Продажа
Трехкомнатная квартира в Новый масштабный жилой проект в районе Кайсиева Градина
г. Варна , кв. «Кайсиева градина»
Современная городская архитектура в динамично развивающемся районе с удобной инфраструктурой и близостью к зеленым насаждениям – превосходное сочетание комфорта, стиля и спокойствия
Продажа
Трехкомнатная квартира в Новый масштабный жилой проект в районе Кайсиева Градина
г. Варна , кв. «Кайсиева градина»
Современная городская архитектура в динамично развивающемся районе с удобной инфраструктурой и близостью к зеленым насаждениям – превосходное сочетание комфорта, стиля и спокойствия
Продажа
Трехкомнатная квартира в Новый масштабный жилой проект в районе Кайсиева Градина
г. Варна , кв. «Кайсиева градина»
Современная городская архитектура в динамично развивающемся районе с удобной инфраструктурой и близостью к зеленым насаждениям – превосходное сочетание комфорта, стиля и спокойствия
Продажа
Трехкомнатная квартира в Новый масштабный жилой проект в районе Кайсиева Градина
г. Варна , кв. «Кайсиева градина»
Современная городская архитектура в динамично развивающемся районе с удобной инфраструктурой и близостью к зеленым насаждениям – превосходное сочетание комфорта, стиля и спокойствия
Продажа
Двухкомнатная квартира в Новый масштабный жилой проект в районе Кайсиева Градина
г. Варна , кв. «Кайсиева градина»
Современная городская архитектура в динамично развивающемся районе с удобной инфраструктурой и близостью к зеленым насаждениям – превосходное сочетание комфорта, стиля и спокойствия
Продажа
Трехкомнатная квартира в Новый масштабный жилой проект в районе Кайсиева Градина
г. Варна , кв. «Кайсиева градина»
Современная городская архитектура в динамично развивающемся районе с удобной инфраструктурой и близостью к зеленым насаждениям – превосходное сочетание комфорта, стиля и спокойствия
Продажа
Трехкомнатная квартира в Новый масштабный жилой проект в районе Кайсиева Градина
г. Варна , кв. «Кайсиева градина»
Современная городская архитектура в динамично развивающемся районе с удобной инфраструктурой и близостью к зеленым насаждениям – превосходное сочетание комфорта, стиля и спокойствия
Продажа
Трехкомнатная квартира в Новый масштабный жилой проект в районе Кайсиева Градина
г. Варна , кв. «Кайсиева градина»
Современная городская архитектура в динамично развивающемся районе с удобной инфраструктурой и близостью к зеленым насаждениям – превосходное сочетание комфорта, стиля и спокойствия
Продажа
Трехкомнатная квартира в Новый масштабный жилой проект в районе Кайсиева Градина
г. Варна , кв. «Кайсиева градина»
Современная городская архитектура в динамично развивающемся районе с удобной инфраструктурой и близостью к зеленым насаждениям – превосходное сочетание комфорта, стиля и спокойствия
Продажа
Двухкомнатная квартира в Новый масштабный жилой проект в районе Кайсиева Градина
г. Варна , кв. «Кайсиева градина»
Современная городская архитектура в динамично развивающемся районе с удобной инфраструктурой и близостью к зеленым насаждениям – превосходное сочетание комфорта, стиля и спокойствия
Продажа
Двухкомнатная квартира в Новый масштабный жилой проект в районе Кайсиева Градина
г. Варна , кв. «Кайсиева градина»
Современная городская архитектура в динамично развивающемся районе с удобной инфраструктурой и близостью к зеленым насаждениям – превосходное сочетание комфорта, стиля и спокойствия
Продажа
Двухкомнатная квартира в Новый масштабный жилой проект в районе Кайсиева Градина
г. Варна , кв. «Кайсиева градина»
Современная городская архитектура в динамично развивающемся районе с удобной инфраструктурой и близостью к зеленым насаждениям – превосходное сочетание комфорта, стиля и спокойствия
Продажа
Двухкомнатная квартира в Новый масштабный жилой проект в районе Кайсиева Градина
г. Варна , кв. «Кайсиева градина»
Современная городская архитектура в динамично развивающемся районе с удобной инфраструктурой и близостью к зеленым насаждениям – превосходное сочетание комфорта, стиля и спокойствия
Продажа
Трехкомнатная квартира в Новый масштабный жилой проект в районе Кайсиева Градина
г. Варна , кв. «Кайсиева градина»
Современная городская архитектура в динамично развивающемся районе с удобной инфраструктурой и близостью к зеленым насаждениям – превосходное сочетание комфорта, стиля и спокойствия
Еще объекты недвижимости в кв. Кайсиева градина
Продажа
Современный жилой комплекс в районе Кайсиева градина
г. Варна , кв. «Кайсиева градина»
Современная архитектура, просторные квартиры и удобное расположение
Современный жилой комплекс в районе Кайсиева градина - Современная архитектура, просторные квартиры и удобное расположение
Продажа
Двухкомнатная квартира напротив Акта 16 в кв. Кайсиева градина
г. Варна , кв. «Кайсиева градина»
Квартира в новостройке рядом с бульваром в Варне
Двухкомнатная квартира напротив Акта 16 в кв. Кайсиева градина - Квартира в новостройке рядом с бульваром в Варне
Продажа
Новое здание, сочетающее в себе современную архитектуру и природные элементы
г. Варна , кв. «Кайсиева градина»
Идеально распределенные апартаменты с 1, 2 и 3 спальнями в престижном районе Варна
Новое здание, сочетающее в себе современную архитектуру и природные элементы - Идеально распределенные апартаменты с 1, 2 и 3 спальнями в престижном районе Варна
от € 100 000
(€/кв.м. 1 443 - €/кв.м. 1 574)Площадь: 63.53 - 119.44 кв.м.
Калина Иванова
Старший консультант, Варна
Продажа
Квартиры в районе Кайсиева градина в Варне
г. Варна , кв. «Кайсиева градина»
Жилье в комплексе-новостройке
Квартиры в районе Кайсиева градина в Варне - Жилье в комплексе-новостройке
от € 104 970
(€/кв.м. 1 350 - €/кв.м. 1 390)Площадь: 77.76 - 119.42 кв.м.
Калина Иванова
Старший консультант, Варна
Еще объекты недвижимости в г. Варна
Продажа
Хит продаж
Люкс
Жилье в небоскребе - элитный комплекс в Младосте, Варна!
г. Варна , кв. «Младост 1»
Высококлассные апартаменты с уникальными видами в Младосте. Младост 1 - морская столица
Жилье в небоскребе - элитный комплекс в Младосте, Варна! - Высококлассные апартаменты с уникальными видами в Младосте. Младост 1 - морская столица
от € 107 900
(€/кв.м. 1 518 - €/кв.м. 1 751)Площадь: 68.20 - 122.26 кв.м.
Калина Иванова
Старший консультант, Варна
Продажа
Хит продаж
Люкс
Жилой комплекс рядом с пляжем Кабакум, Варна
г. Варна , кв. «м-т Ален мак»
Роскошные апартаменты, прямой доступ к пляжу
Жилой комплекс рядом с пляжем Кабакум, Варна - Роскошные апартаменты, прямой доступ к пляжу
от € 256 000
(€/кв.м. 1 199 - €/кв.м. 2 100)Площадь: 186.80 - 213.49 кв.м.
Анна Ицова
Риэлтор, Варна
Продажа
новинка
Трёхкомнатная квартира в закрытом комплексе в Св. Св. Константин и Елена
г. Варна , кв. «Св. Св. Константин и Елена»
Полностью меблированная квартира с парковкой у моря
Трёхкомнатная квартира в закрытом комплексе в Св. Св. Константин и Елена - Полностью меблированная квартира с парковкой у моря
Продажа
новинка
Двухкомнатная квартира с видом на море в районе Аспарухово
г. Варна , кв. «Аспарухово»
Меблированная квартира в закрытом комплексе в г. Варна
Двухкомнатная квартира с видом на море в районе Аспарухово - Меблированная квартира в закрытом комплексе в г. Варна
Продажа
новинка
эксклюзивно
Студия в новостройке рядом с магазином "Макао" в кв. Виница
г. Варна , кв. «Виница»
Меблированная квартира в тихом и живописном районе морской столицы Варны
Студия в новостройке рядом с магазином "Макао" в кв. Виница - Меблированная квартира в тихом и живописном районе морской столицы Варны
Аренда
новинка
эксклюзивно
Просторная квартира на Кольхозен-Пазаре в Варне
г. Варна , кв. «Христо Ботев»
Многокомнатная квартира с удобным расположением рядом с собором и Кольхозен-Пазаром
Просторная квартира на Кольхозен-Пазаре в Варне - Многокомнатная квартира с удобным расположением рядом с собором и Кольхозен-Пазаром
Продажа
новинка
Трёхкомнатная квартира с гаражом в закрытом комплексе
г. Варна , кв. «м-т Св. Никола»
Квартира в районе Св. Никола г. Варна
Трёхкомнатная квартира с гаражом в закрытом комплексе - Квартира в районе Св. Никола г. Варна
Аренда
новинка
Люкс
Двухэтажный дом с просторным двором и пристройкой в районе Ален Мак
г. Варна , кв. «м-т Ален мак»
Меблированный дом с прекрасным расположением в нескольких минутах езды от золотых пляжей
Двухэтажный дом с просторным двором и пристройкой в районе Ален Мак - Меблированный дом с прекрасным расположением в нескольких минутах езды от золотых пляжей
Аренда
новинка
Элитная трёхкомнатная квартира с морской панорамой и бесплатным гаражом в районе Чайка+
г. Варна , кв. «Чайка»
Современные удобства, стильная меблировка и шаговая доступность до моря и Морского сада
Элитная трёхкомнатная квартира с морской панорамой и бесплатным гаражом в районе Чайка+ - Современные удобства, стильная меблировка и шаговая доступность до моря и Морского сада
Продажа
новинка
Участок в регуляции с коммуникациями в районе Св. Никола
г. Варна , кв. «м-т Св. Никола»
Участок под строительство дома в престижном районе г. Варна
Участок в регуляции с коммуникациями в районе Св. Никола - Участок под строительство дома в престижном районе г. Варна
Аренда
новинка
Двухкомнатная квартира с большой террасой в районе Погреби
г. Варна , кв. «Погреби»
Полностью меблированное жильё с видом на озеро, рядом с детским садом
Двухкомнатная квартира с большой террасой в районе Погреби - Полностью меблированное жильё с видом на озеро, рядом с детским садом
Аренда
новинка
лучшее предложение
Подземное двойное парковочное место рядом с Окружной больницей
г. Варна , «Центр»
Просторное парковочное место для двух автомобилей
Подземное двойное парковочное место рядом с Окружной больницей - Просторное парковочное место для двух автомобилей
Продажа
новинка
Люкс
ПЕРВАЯ ЛИНИЯ
Меблированная недвижимость на первой линии от частного пляжа курорта
г. Варна , кв. «Чайка»
Двухкомнатная квартира с прекрасным видом в комплексе La Mer
Меблированная недвижимость на первой линии от частного пляжа курорта - Двухкомнатная квартира с прекрасным видом в комплексе La Mer
Продажа
новинка
Трёхкомнатная квартира в Варне, кв. «Возрождение 1»
г. Варна , кв. «Вызраждане 1»
Меблированная квартира с функциональной планировкой и отличным расположением в ухоженном здании
Трёхкомнатная квартира в Варне, кв. «Возрождение 1» - Меблированная квартира с функциональной планировкой и отличным расположением в ухоженном здании
Аренда
новинка
Офис в элитном здании на бульваре Владислава Варнечика
г. Варна , «Центр»
Просторный офис с двумя подземными парковочными местами и центральным расположением рядом с McDonald's в Варне
Офис в элитном здании на бульваре Владислава Варнечика - Просторный офис с двумя подземными парковочными местами и центральным расположением рядом с McDonald's в Варне
Аренда
новинка
Двухкомнатная квартира Ален Мак
двухкомнатных квартир, Ален Мак
Двухкомнатная квартира Ален Мак - двухкомнатных квартир, Ален Мак
Продажа
-14%
новинка
Люкс
Роскошно отремонтированная трёхкомнатная квартира в районе Балик, Балчик
г. Балчик
Полностью меблированный и готовый к проживанию дом с дизайнерской мебелью
Роскошно отремонтированная трёхкомнатная квартира в районе Балик, Балчик - Полностью меблированный и готовый к проживанию дом с дизайнерской мебелью
Аренда
новинка
Меблированная студия в аренду рядом с магазином Макао в районе Виница
г. Варна , кв. «Виница»
Жильё в новом доме в тихом и зелёном районе города Варна
Меблированная студия в аренду рядом с магазином Макао в районе Виница - Жильё в новом доме в тихом и зелёном районе города Варна
Продажа
новинка
ПЕРВАЯ ЛИНИЯ
Трехкомнатная квартира в комплексе Варна Саут Бэй/Varna South Bay
г. Варна , кв. «Аспарухово»
Недвижимость на 2 уровнях на первой линии моря, рядом с парком Аспарухово
Трехкомнатная квартира в комплексе Варна Саут Бэй/Varna South Bay - Недвижимость на 2 уровнях на первой линии моря, рядом с парком Аспарухово
Аренда
новинка
Трёхкомнатная квартира в аренду в районе Чаталджа, Варна
г. Варна , кв. «Чаталджа»
Полностью меблированная квартира с удобной планировкой
Трёхкомнатная квартира в аренду в районе Чаталджа, Варна - Полностью меблированная квартира с удобной планировкой
Продажа
новинка
Люкс
ПЕРВАЯ ЛИНИЯ
Пентхаус с видом на море на первой линии рядом с курортом Золотые пески
г. Варна , кв. «Чайка»
Меблированная недвижимость с тремя спальнями в комплексе Ла Мер
Пентхаус с видом на море на первой линии рядом с курортом Золотые пески - Меблированная недвижимость с тремя спальнями в комплексе Ла Мер
Продажа
новинка
Люкс
Роскошный трехкомнатный апартамент с видом на море и гаражом в районе Чайка
г. Варна , кв. «Чайка»
Отлично меблированный дом в новом комплексе со многими удобствами
Роскошный трехкомнатный апартамент с видом на море и гаражом в районе Чайка - Отлично меблированный дом в новом комплексе со многими удобствами
Продажа
новинка
Люкс
Роскошные апартаменты с видом на море в районе Кабакум
г. Варна , кв. «к.к. Чайка»
Апартаменты с одной спальней под ключ в закрытом комплексе с бассейнами и СПА-зоной, в 400 м от пляжа в курортном комплексе Чайка
Роскошные апартаменты с видом на море в районе Кабакум - Апартаменты с одной спальней под ключ в закрытом комплексе с бассейнами и СПА-зоной, в 400 м от пляжа в курортном комплексе Чайка
Продажа
-3%
новинка
Люкс
Новый дом с четырьмя спальнями и двором в центральной части района Виница
г. Варна , кв. «Виница»
Дом в одном из самых престижных районов Варны
Новый дом с четырьмя спальнями и двором в центральной части района Виница - Дом в одном из самых престижных районов Варны
Продажа
новинка
Люкс
Двухуровневая недвижимость с отдельным входом в Ален Мак
г. Варна , кв. «м-т Ален мак»
Недвижимость с двумя спальнями, возможностью перепланировки третьей и видом на море
Двухуровневая недвижимость с отдельным входом в Ален Мак - Недвижимость с двумя спальнями, возможностью перепланировки третьей и видом на море
Подписывайтесь на наш канал