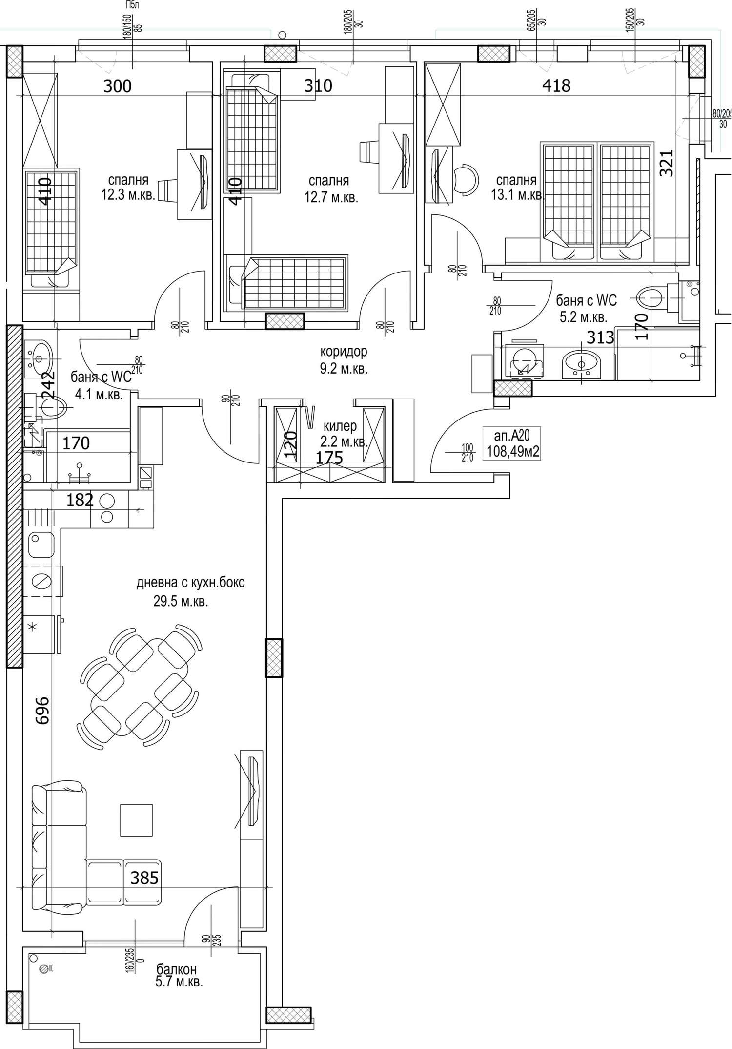
квартира A20 , общая площадь 127.30 кв.м. (жилая площадь 108.49 кв.м. + общие части 18.81 кв.м.).
Предлагаются к продаже разнообразные по функциональному назначению квартиры в новом масштабном проекте проверенной компании в квартале. Абрикосовый сад. Он отличается ярко выраженным городским обликом и эстетически сбалансированным фасадом, разнообразием цветовых элементов и функциональным распределением объемов. Объект расположен в динамично развивающемся районе с удобной инфраструктурой и близостью к зеленым зонам - отличное сочетание удобства, стиля и спокойствия.
• Здание 1 спроектировано с пятью отдельными входами. Концепция сочетает в себе современную композицию фасада с теплыми цветовыми акцентами, которые придают силуэту динамичность и элегантность. Подземный уровень полностью отведен под гаражи и парковочные места, а во внутреннем дворе расположены открытые парковочные зоны и зеленые насаждения.
• Здание 2 состоит из 4 входов, распределенных таким образом, чтобы обеспечить удобство и функциональность для жителей. На подземном уровне расположены гаражи и парковочные места, а на прилегающей к зданию территории - дополнительные открытые парковочные места и зеленые зоны отдыха. Контраст между теплыми и нейтральными тонами создает эстетический баланс, а широкие балконы и большие окна обеспечивают максимум света в каждой квартире.
Фасад здания выполнен с использованием сочетания современных материалов, обеспечивающих энергоэффективность и экологичность. Комплекс построен в соответствии с современными инженерными стандартами с использованием железобетонных элементов и надежной системы изоляции.
• Конструкция обеспечивает стабильность, долговечность и защиту при любых погодных условиях.
• Входы и коридоры спроектированы с учетом комфорта жильцов - просторные лестницы, хорошо освещенные помещения и высококачественные материалы.
• Общие зоны имеют законченный вид и создают комфортные условия для жизни.
• В каждом подъезде установлен современный лифт, который обеспечивает легкий и бесшумный доступ на все этажи, включая подземные гаражи. Это обеспечивает удобство как для семей с детьми, так и для людей с ограниченными возможностями передвижения.
• Крыша здания плоская и заполнена высококлассной гидро- и теплоизоляцией, отвечающей современным энергетическим стандартам.
• Водопроводная система построена из материалов проверенного качества, которые гарантируют надежность и оптимальное давление в любое время. Система спроектирована таким образом, чтобы обеспечить простоту обслуживания и долговечность.
• Здания оснащены современной электропроводкой и предусматривают интеграцию решений "умного дома". Во всех квартирах предусмотрены многочисленные точки питания и надежные электрические панели, отвечающие самым современным стандартам.
Для владельцев квартир предусмотрена подземная парковка с гаражами и парковочными местами, доступными непосредственно через лифты здания. Парковочные места также доступны во внутреннем дворе.
Квартиры разнообразны по площади и планировке - от функциональных, подходящих для молодых семей, до просторных домов с панорамными видами. Цены на сайте указаны для варианта оплаты 1. Позвоните нам для получения дополнительной информации и просмотра.
Посмотреть недвижимость
Мы можем организовать просмотр недвижимости в соответствии с нашим графиком и наличием свободных мест. Запросите просмотр, связавшись с брокером, ответственным за предложение, по электронной почте или телефону.
Резервирование недвижимости
Объект может быть зарезервирован и снят с продажи при внесении задатка, после чего прекращаются просмотры с другими покупателями и начинается подготовка документов для заключения предварительного и окончательного контракта. Свяжитесь с ответственным брокером для получения подробной информации о процедуре покупки и порядке оплаты.
- Описание
- Характеристики
- Галерея
- Местоположение
- Прайс-лист
Продажа
Четырехкомнатная квартира в Новый масштабный жилой проект в районе Кайсиева Градина
г. Варна, кв.«Кайсиева градина»Современная городская архитектура в динамично развивающемся районе с удобной инфраструктурой и близостью к зеленым насаждениям – превосходное сочетание комфорта, стиля и спокойствия
Прочитайте больше
Характеристики
Тип недвижимости
Четырехкомнатная квартира
Реф. номер
Vna 88180
Площадь
127.30 м2 (жилая площадь: 108.49 м2 плюс общие части: 18.81 м2) еще
Спальни
1,2,3
Состояние
болгарский государственный стандарт
Этаж
5 из 9
Лифт
да
Меблировка
Немеблированная
Отопление
Отопление кондиционером
Вид строительства
Кирпич, Новостройки
Окна выходят на:
Восток, Запад, На север, Юг
Год строительства
2028
Новый масштабный жилой проект в районе Кайсиева Градина дополнительная информация:
Планы
Планы
Прайс-лист
Качество воздуха
Меблировка
Плащане
План на строителство
Фото с воздуха
Генплан
360° градусов
Инфо пакет
Референтный номер: Vna 88180
Местоположение
г. Варна, кв.«Кайсиева градина»Удобства района
- Автобусная остановка "ОБЩЕЖИТИЕТО-2" 300 м (4 мин.) - Автобус No: 14, 41
- Детский сад "ДГ 39 "Приказка"" 58 м (1 мин.)
- Детский сад 903 м (11 мин.)
- Школа "ОУ Стоян Михайловски" 102 м (2 мин.)
- Школа "ОУ Патриарх Евтимий" 787 м (10 мин.)
- Продуктовый магазин 257 м (4 мин.)
- Супермаркет 154 м (2 мин.)
- Супермаркет "My Market, бл. 11" 750 м (10 мин.)
- Рынок 1.1 км (14 мин.)
- Аптека 254 м (4 мин.)
- Почта "Speedy" 720 м (9 мин.)
- Почта "Пощенски клон 23 (9023)" 1.1 км (14 мин.)
- Парикмахер 1.1 км (14 мин.)
- Ресторан "Борисовата воденица" 396 м (5 мин.)
- Ресторан 922 м (12 мин.)
- Бар "Shisha Pharaohs" 980 м (12 мин.)
- Детская площадка 1.0 км (13 мин.)
- Музей "Музей Владислав Варненчик" 990 м (12 мин.)
- Парк 420 м (6 мин.)
- Парковка 272 м (4 мин.)
- Бензозаправочная станция "Sevi Oil" 420 м (6 мин.)
- Зарядная станция "Fines Charging" 638 м (8 мин.)
- Мойка автомобилей "Bubbles Bay" 447 м (6 мин.)
ТРАНСПОРТ
УЧЕБНЫЕ ЗАВЕДЕНИЯ
ШОПИНГ
УСЛУГИ
ЗАВЕДЕНИЯ
СПОРТ И СВОБОДНОЕ ВРЕМЯ
ПРИРОДА И РАЗВЛЕЧЕНИЯ
АВТОМОБИЛЬНЫЕ УСЛУГИ
ОТПРАВЬТЕ ЗАПРОС
€ 169 500
- €
- руб.
- $
Платежи с карты и PayPal.
Располагаем онлайн ПОС терминалом
Располагаем онлайн ПОС терминалом
Комплекс строится
Ввод в эксплуатацию: 30.12.2028 г
Агенству причитается комиссия
Прайс-лист
*/ ?>
ПОДРОБНАЯ ИНФОРМАЦИЯ
Реф. номер: Vna 88180
При звонке, пожалуйста, указывайте номер объекта недвижимости.
Объектов недвижимости в этом комплексе
226
объектов недвижимости
112
свободных
87
проданных
27
забронированных
ОТПРАВЬТЕ ЗАПРОС
Еще объекты недвижимости в в этом комплексе
Продажа
Четырехкомнатная квартира в Новый масштабный жилой проект в районе Кайсиева Градина
г. Варна , кв. «Кайсиева градина»
Современная городская архитектура в динамично развивающемся районе с удобной инфраструктурой и близостью к зеленым насаждениям – превосходное сочетание комфорта, стиля и спокойствия
Продажа
Четырехкомнатная квартира в Новый масштабный жилой проект в районе Кайсиева Градина
г. Варна , кв. «Кайсиева градина»
Современная городская архитектура в динамично развивающемся районе с удобной инфраструктурой и близостью к зеленым насаждениям – превосходное сочетание комфорта, стиля и спокойствия
Продажа
Четырехкомнатная квартира в Новый масштабный жилой проект в районе Кайсиева Градина
г. Варна , кв. «Кайсиева градина»
Современная городская архитектура в динамично развивающемся районе с удобной инфраструктурой и близостью к зеленым насаждениям – превосходное сочетание комфорта, стиля и спокойствия
Продажа
Четырехкомнатная квартира в Новый масштабный жилой проект в районе Кайсиева Градина
г. Варна , кв. «Кайсиева градина»
Современная городская архитектура в динамично развивающемся районе с удобной инфраструктурой и близостью к зеленым насаждениям – превосходное сочетание комфорта, стиля и спокойствия
Продажа
Четырехкомнатная квартира в Новый масштабный жилой проект в районе Кайсиева Градина
г. Варна , кв. «Кайсиева градина»
Современная городская архитектура в динамично развивающемся районе с удобной инфраструктурой и близостью к зеленым насаждениям – превосходное сочетание комфорта, стиля и спокойствия
Продажа
Четырехкомнатная квартира в Новый масштабный жилой проект в районе Кайсиева Градина
г. Варна , кв. «Кайсиева градина»
Современная городская архитектура в динамично развивающемся районе с удобной инфраструктурой и близостью к зеленым насаждениям – превосходное сочетание комфорта, стиля и спокойствия
Продажа
Четырехкомнатная квартира в Новый масштабный жилой проект в районе Кайсиева Градина
г. Варна , кв. «Кайсиева градина»
Современная городская архитектура в динамично развивающемся районе с удобной инфраструктурой и близостью к зеленым насаждениям – превосходное сочетание комфорта, стиля и спокойствия
Продажа
Четырехкомнатная квартира в Новый масштабный жилой проект в районе Кайсиева Градина
г. Варна , кв. «Кайсиева градина»
Современная городская архитектура в динамично развивающемся районе с удобной инфраструктурой и близостью к зеленым насаждениям – превосходное сочетание комфорта, стиля и спокойствия
Продажа
Четырехкомнатная квартира в Новый масштабный жилой проект в районе Кайсиева Градина
г. Варна , кв. «Кайсиева градина»
Современная городская архитектура в динамично развивающемся районе с удобной инфраструктурой и близостью к зеленым насаждениям – превосходное сочетание комфорта, стиля и спокойствия
Продажа
Четырехкомнатная квартира в Новый масштабный жилой проект в районе Кайсиева Градина
г. Варна , кв. «Кайсиева градина»
Современная городская архитектура в динамично развивающемся районе с удобной инфраструктурой и близостью к зеленым насаждениям – превосходное сочетание комфорта, стиля и спокойствия
Продажа
Четырехкомнатная квартира в Новый масштабный жилой проект в районе Кайсиева Градина
г. Варна , кв. «Кайсиева градина»
Современная городская архитектура в динамично развивающемся районе с удобной инфраструктурой и близостью к зеленым насаждениям – превосходное сочетание комфорта, стиля и спокойствия
Продажа
Трехкомнатная квартира в Новый масштабный жилой проект в районе Кайсиева Градина
г. Варна , кв. «Кайсиева градина»
Современная городская архитектура в динамично развивающемся районе с удобной инфраструктурой и близостью к зеленым насаждениям – превосходное сочетание комфорта, стиля и спокойствия
Продажа
Трехкомнатная квартира в Новый масштабный жилой проект в районе Кайсиева Градина
г. Варна , кв. «Кайсиева градина»
Современная городская архитектура в динамично развивающемся районе с удобной инфраструктурой и близостью к зеленым насаждениям – превосходное сочетание комфорта, стиля и спокойствия
Продажа
Трехкомнатная квартира в Новый масштабный жилой проект в районе Кайсиева Градина
г. Варна , кв. «Кайсиева градина»
Современная городская архитектура в динамично развивающемся районе с удобной инфраструктурой и близостью к зеленым насаждениям – превосходное сочетание комфорта, стиля и спокойствия
Продажа
Двухкомнатная квартира в Новый масштабный жилой проект в районе Кайсиева Градина
г. Варна , кв. «Кайсиева градина»
Современная городская архитектура в динамично развивающемся районе с удобной инфраструктурой и близостью к зеленым насаждениям – превосходное сочетание комфорта, стиля и спокойствия
Продажа
Трехкомнатная квартира в Новый масштабный жилой проект в районе Кайсиева Градина
г. Варна , кв. «Кайсиева градина»
Современная городская архитектура в динамично развивающемся районе с удобной инфраструктурой и близостью к зеленым насаждениям – превосходное сочетание комфорта, стиля и спокойствия
Продажа
Трехкомнатная квартира в Новый масштабный жилой проект в районе Кайсиева Градина
г. Варна , кв. «Кайсиева градина»
Современная городская архитектура в динамично развивающемся районе с удобной инфраструктурой и близостью к зеленым насаждениям – превосходное сочетание комфорта, стиля и спокойствия
Продажа
Двухкомнатная квартира в Новый масштабный жилой проект в районе Кайсиева Градина
г. Варна , кв. «Кайсиева градина»
Современная городская архитектура в динамично развивающемся районе с удобной инфраструктурой и близостью к зеленым насаждениям – превосходное сочетание комфорта, стиля и спокойствия
Продажа
Трехкомнатная квартира в Новый масштабный жилой проект в районе Кайсиева Градина
г. Варна , кв. «Кайсиева градина»
Современная городская архитектура в динамично развивающемся районе с удобной инфраструктурой и близостью к зеленым насаждениям – превосходное сочетание комфорта, стиля и спокойствия
Продажа
Трехкомнатная квартира в Новый масштабный жилой проект в районе Кайсиева Градина
г. Варна , кв. «Кайсиева градина»
Современная городская архитектура в динамично развивающемся районе с удобной инфраструктурой и близостью к зеленым насаждениям – превосходное сочетание комфорта, стиля и спокойствия
Продажа
Трехкомнатная квартира в Новый масштабный жилой проект в районе Кайсиева Градина
г. Варна , кв. «Кайсиева градина»
Современная городская архитектура в динамично развивающемся районе с удобной инфраструктурой и близостью к зеленым насаждениям – превосходное сочетание комфорта, стиля и спокойствия
Продажа
Трехкомнатная квартира в Новый масштабный жилой проект в районе Кайсиева Градина
г. Варна , кв. «Кайсиева градина»
Современная городская архитектура в динамично развивающемся районе с удобной инфраструктурой и близостью к зеленым насаждениям – превосходное сочетание комфорта, стиля и спокойствия
Продажа
Трехкомнатная квартира в Новый масштабный жилой проект в районе Кайсиева Градина
г. Варна , кв. «Кайсиева градина»
Современная городская архитектура в динамично развивающемся районе с удобной инфраструктурой и близостью к зеленым насаждениям – превосходное сочетание комфорта, стиля и спокойствия
Продажа
Трехкомнатная квартира в Новый масштабный жилой проект в районе Кайсиева Градина
г. Варна , кв. «Кайсиева градина»
Современная городская архитектура в динамично развивающемся районе с удобной инфраструктурой и близостью к зеленым насаждениям – превосходное сочетание комфорта, стиля и спокойствия
Продажа
Трехкомнатная квартира в Новый масштабный жилой проект в районе Кайсиева Градина
г. Варна , кв. «Кайсиева градина»
Современная городская архитектура в динамично развивающемся районе с удобной инфраструктурой и близостью к зеленым насаждениям – превосходное сочетание комфорта, стиля и спокойствия
Еще объекты недвижимости в кв. Кайсиева градина
Продажа
Современный жилой комплекс в районе Кайсиева градина
г. Варна , кв. «Кайсиева градина»
Современная архитектура, просторные квартиры и удобное расположение
Современный жилой комплекс в районе Кайсиева градина - Современная архитектура, просторные квартиры и удобное расположение
Продажа
Двухкомнатная квартира напротив Акта 16 в кв. Кайсиева градина
г. Варна , кв. «Кайсиева градина»
Квартира в новостройке рядом с бульваром в Варне
Двухкомнатная квартира напротив Акта 16 в кв. Кайсиева градина - Квартира в новостройке рядом с бульваром в Варне
Продажа
Новое здание, сочетающее в себе современную архитектуру и природные элементы
г. Варна , кв. «Кайсиева градина»
Идеально распределенные апартаменты с 1, 2 и 3 спальнями в престижном районе Варна
Новое здание, сочетающее в себе современную архитектуру и природные элементы - Идеально распределенные апартаменты с 1, 2 и 3 спальнями в престижном районе Варна
от € 100 000
(€/кв.м. 1 443 - €/кв.м. 1 574)Площадь: 63.53 - 119.44 кв.м.
Калина Иванова
Старший консультант, Варна
Продажа
Квартиры в районе Кайсиева градина в Варне
г. Варна , кв. «Кайсиева градина»
Жилье в комплексе-новостройке
Квартиры в районе Кайсиева градина в Варне - Жилье в комплексе-новостройке
от € 104 970
(€/кв.м. 1 350 - €/кв.м. 1 390)Площадь: 77.76 - 119.42 кв.м.
Калина Иванова
Старший консультант, Варна
Еще объекты недвижимости в г. Варна
Продажа
Хит продаж
Люкс
Жилье в небоскребе - элитный комплекс в Младосте, Варна!
г. Варна , кв. «Младост 1»
Высококлассные апартаменты с уникальными видами в Младосте. Младост 1 - морская столица
Жилье в небоскребе - элитный комплекс в Младосте, Варна! - Высококлассные апартаменты с уникальными видами в Младосте. Младост 1 - морская столица
от € 107 900
(€/кв.м. 1 518 - €/кв.м. 1 751)Площадь: 68.20 - 122.26 кв.м.
Калина Иванова
Старший консультант, Варна
Продажа
Хит продаж
Люкс
Жилой комплекс рядом с пляжем Кабакум, Варна
г. Варна , кв. «м-т Ален мак»
Роскошные апартаменты, прямой доступ к пляжу
Жилой комплекс рядом с пляжем Кабакум, Варна - Роскошные апартаменты, прямой доступ к пляжу
от € 256 000
(€/кв.м. 1 199 - €/кв.м. 2 100)Площадь: 186.80 - 213.49 кв.м.
Анна Ицова
Риэлтор, Варна
Аренда
новинка
ПЕРВАЯ ЛИНИЯ
Трехкомнатная квартира с прекрасным видом на море на первой линии от пляжа в квартале Аспарухово
г. Варна , кв. «Аспарухово»
Трехкомнатная квартира с видом на юг в комплексе Varna South Bay
Трехкомнатная квартира с прекрасным видом на море на первой линии от пляжа в квартале Аспарухово - Трехкомнатная квартира с видом на юг в комплексе Varna South Bay
Продажа
новинка
лучшее предложение
Компактная квартира в удобной близости от городской инфраструктуры
г. Варна , кв. «Виница»
Уютная студия в современном доме без лифта в районе Виница, Варна
Компактная квартира в удобной близости от городской инфраструктуры - Уютная студия в современном доме без лифта в районе Виница, Варна
Аренда
новинка
эксклюзивно
Просторная квартира на Кольхозен-Пазаре в Варне
г. Варна , кв. «Христо Ботев»
Многокомнатная квартира с удобным расположением рядом с собором и Кольхозен-Пазаром
Просторная квартира на Кольхозен-Пазаре в Варне - Многокомнатная квартира с удобным расположением рядом с собором и Кольхозен-Пазаром
Аренда
новинка
Роскошная студия в аренду в районе Виница
г. Варна , кв. «Виница»
Просторная студия с двором и парковочным местом
Роскошная студия в аренду в районе Виница - Просторная студия с двором и парковочным местом
Аренда
новинка
Трёхкомнатная квартира рядом с Медицинским университетом — Варна
г. Варна , «Центр»
Полностью меблированная квартира в пешей доступности от идеального центра города
Трёхкомнатная квартира рядом с Медицинским университетом — Варна - Полностью меблированная квартира в пешей доступности от идеального центра города
Аренда
новинка
эксклюзивно
Готовая к заселению новая студия рядом с родильным домом в районе Виница
г. Варна , кв. «Виница»
Квартира с частичным видом на море рядом с учебными заведениями, ключевой магистралью и зелёными зонами
Готовая к заселению новая студия рядом с родильным домом в районе Виница - Квартира с частичным видом на море рядом с учебными заведениями, ключевой магистралью и зелёными зонами
Продажа
новинка
Небольшое бутик-здание с тихим расположением в районе с. Виница
г. Варна , кв. «Виница»
Жилой дом с гаражами, парковочными местами и квартирами
Небольшое бутик-здание с тихим расположением в районе с. Виница - Жилой дом с гаражами, парковочными местами и квартирами
от € 82 600
(€/кв.м. 1 249 - €/кв.м. 1 250)Площадь: 66.11 - 71.20 кв.м.
Калина Иванова
Старший консультант, Варна
Аренда
новинка
Двухкомнатная квартира в аренду в районе Виница
г. Варна , кв. «Виница»
Светлая и полностью меблированная квартира с парковочным местом и юго-восточной ориентацией
Двухкомнатная квартира в аренду в районе Виница - Светлая и полностью меблированная квартира с парковочным местом и юго-восточной ориентацией
Продажа
-3%
Дом в районе Виница
г. Варна , кв. «Виница»
Новый двухэтажный дом с использованием новейших энергоэффективных технологий и панорамным видом на море
Дом в районе Виница - Новый двухэтажный дом с использованием новейших энергоэффективных технологий и панорамным видом на море
Аренда
Двухкомнатная квартира в аренду в районе Взраждане
г. Варна , кв. «Вызраждане 1»
Полностью меблированная квартира в элитном закрытом комплексе рядом с ключевыми бульварами
Двухкомнатная квартира в аренду в районе Взраждане - Полностью меблированная квартира в элитном закрытом комплексе рядом с ключевыми бульварами
Продажа
Дизайнерски меблированная двухкомнатная квартира в центре района Винница
г. Варна , кв. «Виница»
Роскошная солнечная квартира рядом с магазином «Макао», автобусной остановкой, детским садом и школой
Дизайнерски меблированная двухкомнатная квартира в центре района Винница - Роскошная солнечная квартира рядом с магазином «Макао», автобусной остановкой, детским садом и школой
Продажа
Люкс
ПЕРВАЯ ЛИНИЯ
Пентхаус с видом на море на первой линии рядом с курортом Золотые пески
г. Варна , кв. «Чайка»
Меблированная недвижимость с тремя спальнями в комплексе Ла Мер
Пентхаус с видом на море на первой линии рядом с курортом Золотые пески - Меблированная недвижимость с тремя спальнями в комплексе Ла Мер
Продажа
Новый жилой комплекс в районе Вазраждане 1
г. Варна , кв. «Вызраждане 1»
Функциональные, светлые и просторные квартиры рядом с детскими садами, школами, торговым центром, гипермаркетами и парком
Новый жилой комплекс в районе Вазраждане 1 - Функциональные, светлые и просторные квартиры рядом с детскими садами, школами, торговым центром, гипермаркетами и парком
от € 96 000
(€/кв.м. 1 800 - €/кв.м. 2 054)Площадь: 51.95 - 144.05 кв.м.
Калина Иванова
Старший консультант, Варна
Продажа
Трёхэтажный дом с панорамным видом на море в районе Изгрев, Варна
г. Варна , кв. «Изгрев»
Меблированный дом с участком, гаражом и видом на море
Трёхэтажный дом с панорамным видом на море в районе Изгрев, Варна - Меблированный дом с участком, гаражом и видом на море
Продажа
Люкс
Трёхэтажный дом с бассейном в 300 м от пляжа Кабакум
г. Варна , кв. «м-т Ален мак»
Элитный дом у моря с бассейном и высоким инвестиционным потенциалом
Трёхэтажный дом с бассейном в 300 м от пляжа Кабакум - Элитный дом у моря с бассейном и высоким инвестиционным потенциалом
Аренда
Южная квартира с двумя спальнями рядом с Медицинским университетом Варна
г. Варна , «Центр»
Меблированная квартира в благоустроенном здании рядом с двумя университетами и школой
Южная квартира с двумя спальнями рядом с Медицинским университетом Варна - Меблированная квартира в благоустроенном здании рядом с двумя университетами и школой
Продажа
Земельный участок с постройкой в местности Старите лозя, рядом с Варной
г. Игнатиево , м. Старите лозя
Ровный участок с потенциалом под жилую застройку
Земельный участок с постройкой в местности Старите лозя, рядом с Варной - Ровный участок с потенциалом под жилую застройку
Продажа
Люкс
Меблированная квартира в закрытом комплексе
г. Варна , кв. «Св. Св. Константин и Елена»
квартир-студий, Варна
Меблированная квартира в закрытом комплексе - квартир-студий, Варна
Продажа
Новая трехкомнатная квартира с Актом 16 и выгодным расположение
г. Варна , кв. «Бриз»
Просторная квартира с подвалом рядом с крупными бульварами и учебными заведениями
Новая трехкомнатная квартира с Актом 16 и выгодным расположение - Просторная квартира с подвалом рядом с крупными бульварами и учебными заведениями
Продажа
Люкс
Просторная двухкомнатная квартира в новом комплексе в Ален Мак
г. Варна , кв. «м-т Ален мак»
Жилье с возможностью обособления дополнительной спальни
Просторная двухкомнатная квартира в новом комплексе в Ален Мак - Жилье с возможностью обособления дополнительной спальни
Аренда
Люкс
Роскошная 2-комнатная квартира в аренду в Варне
г. Варна , кв. «Чайка»
Квартира рядом с пляжным курортом с видом на море
Роскошная 2-комнатная квартира в аренду в Варне - Квартира рядом с пляжным курортом с видом на море
Продажа
Люкс
Большая квартира с прекрасным видом на район в Варне
г. Варна , кв. «Чайка»
Роскошная недвижимость с просторными светлыми комнатами недалеко от пляжа
Большая квартира с прекрасным видом на район в Варне - Роскошная недвижимость с просторными светлыми комнатами недалеко от пляжа
Аренда
Роскошная южная студия в самом центре Варны
г. Варна , «Центр»
Компактная современная квартира рядом с галереей Граффити и Экономическим университетом
Роскошная южная студия в самом центре Варны - Компактная современная квартира рядом с галереей Граффити и Экономическим университетом
Подписывайтесь на наш канал