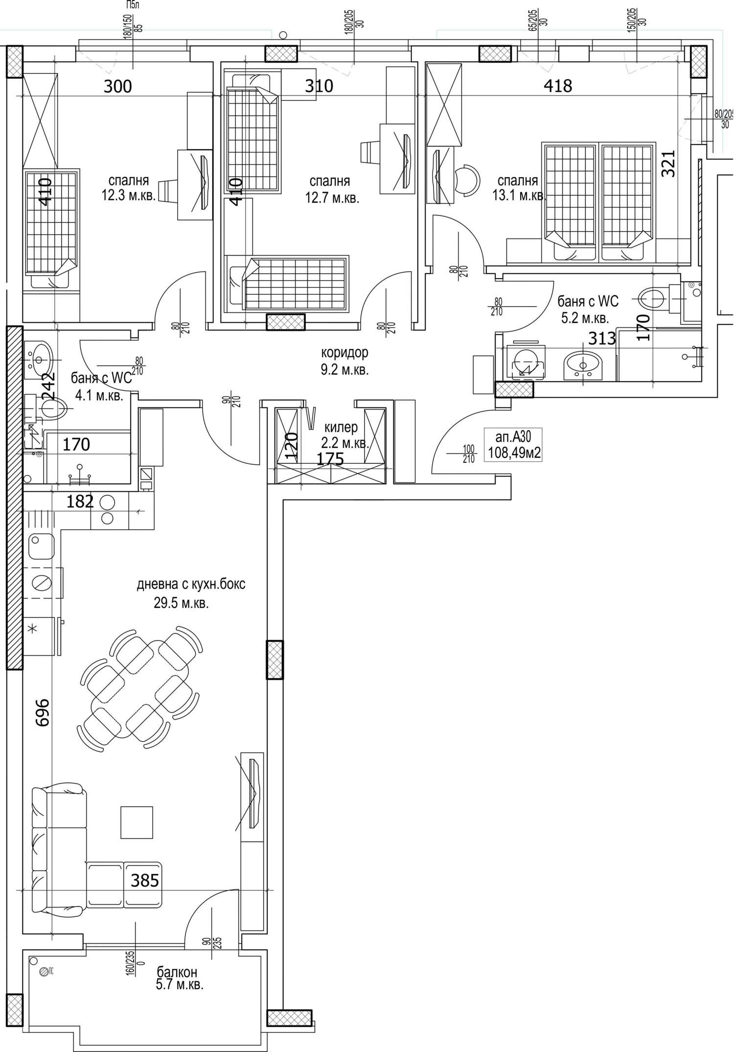
квартира A30 , общая площадь 127.30 кв.м. (жилая площадь 108.49 кв.м. + общие части 18.81 кв.м.).
Предлагаются к продаже разнообразные по функциональному назначению квартиры в новом масштабном проекте проверенной компании в квартале. Абрикосовый сад. Он отличается ярко выраженным городским обликом и эстетически сбалансированным фасадом, разнообразием цветовых элементов и функциональным распределением объемов. Объект расположен в динамично развивающемся районе с удобной инфраструктурой и близостью к зеленым зонам - отличное сочетание удобства, стиля и спокойствия.
• Здание 1 спроектировано с пятью отдельными входами. Концепция сочетает в себе современную композицию фасада с теплыми цветовыми акцентами, которые придают силуэту динамичность и элегантность. Подземный уровень полностью отведен под гаражи и парковочные места, а во внутреннем дворе расположены открытые парковочные зоны и зеленые насаждения.
• Здание 2 состоит из 4 входов, распределенных таким образом, чтобы обеспечить удобство и функциональность для жителей. На подземном уровне расположены гаражи и парковочные места, а на прилегающей к зданию территории - дополнительные открытые парковочные места и зеленые зоны отдыха. Контраст между теплыми и нейтральными тонами создает эстетический баланс, а широкие балконы и большие окна обеспечивают максимум света в каждой квартире.
Фасад здания выполнен с использованием сочетания современных материалов, обеспечивающих энергоэффективность и экологичность. Комплекс построен в соответствии с современными инженерными стандартами с использованием железобетонных элементов и надежной системы изоляции.
• Конструкция обеспечивает стабильность, долговечность и защиту при любых погодных условиях.
• Входы и коридоры спроектированы с учетом комфорта жильцов - просторные лестницы, хорошо освещенные помещения и высококачественные материалы.
• Общие зоны имеют законченный вид и создают комфортные условия для жизни.
• В каждом подъезде установлен современный лифт, который обеспечивает легкий и бесшумный доступ на все этажи, включая подземные гаражи. Это обеспечивает удобство как для семей с детьми, так и для людей с ограниченными возможностями передвижения.
• Крыша здания плоская и заполнена высококлассной гидро- и теплоизоляцией, отвечающей современным энергетическим стандартам.
• Водопроводная система построена из материалов проверенного качества, которые гарантируют надежность и оптимальное давление в любое время. Система спроектирована таким образом, чтобы обеспечить простоту обслуживания и долговечность.
• Здания оснащены современной электропроводкой и предусматривают интеграцию решений "умного дома". Во всех квартирах предусмотрены многочисленные точки питания и надежные электрические панели, отвечающие самым современным стандартам.
Для владельцев квартир предусмотрена подземная парковка с гаражами и парковочными местами, доступными непосредственно через лифты здания. Парковочные места также доступны во внутреннем дворе.
Квартиры разнообразны по площади и планировке - от функциональных, подходящих для молодых семей, до просторных домов с панорамными видами. Цены на сайте указаны для варианта оплаты 1. Позвоните нам для получения дополнительной информации и просмотра.
Посмотреть недвижимость
Мы можем организовать просмотр недвижимости в соответствии с нашим графиком и наличием свободных мест. Запросите просмотр, связавшись с брокером, ответственным за предложение, по электронной почте или телефону.
Резервирование недвижимости
Объект может быть зарезервирован и снят с продажи при внесении задатка, после чего прекращаются просмотры с другими покупателями и начинается подготовка документов для заключения предварительного и окончательного контракта. Свяжитесь с ответственным брокером для получения подробной информации о процедуре покупки и порядке оплаты.
- Описание
- Характеристики
- Галерея
- Местоположение
- Прайс-лист
Продажа
Четырехкомнатная квартира в Новый масштабный жилой проект в районе Кайсиева Градина
г. Варна, кв.«Кайсиева градина»Современная городская архитектура в динамично развивающемся районе с удобной инфраструктурой и близостью к зеленым насаждениям – превосходное сочетание комфорта, стиля и спокойствия
Прочитайте больше
Характеристики
Тип недвижимости
Четырехкомнатная квартира
Реф. номер
Vna 88180
Площадь
127.30 м2 (жилая площадь: 108.49 м2 плюс общие части: 18.81 м2) еще
Спальни
1,2,3
Состояние
болгарский государственный стандарт
Этаж
7 из 9
Лифт
да
Меблировка
Немеблированная
Отопление
Отопление кондиционером
Вид строительства
Кирпич, Новостройки
Окна выходят на:
Восток, Запад, На север, Юг
Год строительства
2028
Новый масштабный жилой проект в районе Кайсиева Градина дополнительная информация:
Планы
Планы
Прайс-лист
Качество воздуха
Меблировка
Плащане
План на строителство
Фото с воздуха
Генплан
360° градусов
Инфо пакет
Референтный номер: Vna 88180
Местоположение
г. Варна, кв.«Кайсиева градина»Удобства района
- Автобусная остановка "ОБЩЕЖИТИЕТО-2" 300 м (4 мин.) - Автобус No: 14, 41
- Почта "Speedy" 720 м (9 мин.)
- Почта "Пощенски клон 23 (9023)" 1.1 км (14 мин.)
- Ресторан "Борисовата воденица" 396 м (5 мин.)
- Ресторан 922 м (12 мин.)
- Бар "Shisha Pharaohs" 980 м (12 мин.)
- Детская площадка 1.0 км (13 мин.)
ТРАНСПОРТ
УСЛУГИ
ЗАВЕДЕНИЯ
СПОРТ И СВОБОДНОЕ ВРЕМЯ
ОТПРАВЬТЕ ЗАПРОС
€ 169 500
- €
- руб.
- $
Платежи с карты и PayPal.
Располагаем онлайн ПОС терминалом
Располагаем онлайн ПОС терминалом
Комплекс строится
Ввод в эксплуатацию: 30.12.2028 г
Агенству причитается комиссия
Прайс-лист
*/ ?>
ПОДРОБНАЯ ИНФОРМАЦИЯ
Реф. номер: Vna 88180
При звонке, пожалуйста, указывайте номер объекта недвижимости.
Объектов недвижимости в этом комплексе
226
объектов недвижимости
94
свободных
104
проданных
28
забронированных
ОТПРАВЬТЕ ЗАПРОС
Еще объекты недвижимости в в этом комплексе
Продажа
Четырехкомнатная квартира в Новый масштабный жилой проект в районе Кайсиева Градина
г. Варна , кв. «Кайсиева градина»
Современная городская архитектура в динамично развивающемся районе с удобной инфраструктурой и близостью к зеленым насаждениям – превосходное сочетание комфорта, стиля и спокойствия
Продажа
Четырехкомнатная квартира в Новый масштабный жилой проект в районе Кайсиева Градина
г. Варна , кв. «Кайсиева градина»
Современная городская архитектура в динамично развивающемся районе с удобной инфраструктурой и близостью к зеленым насаждениям – превосходное сочетание комфорта, стиля и спокойствия
Продажа
Четырехкомнатная квартира в Новый масштабный жилой проект в районе Кайсиева Градина
г. Варна , кв. «Кайсиева градина»
Современная городская архитектура в динамично развивающемся районе с удобной инфраструктурой и близостью к зеленым насаждениям – превосходное сочетание комфорта, стиля и спокойствия
Продажа
Четырехкомнатная квартира в Новый масштабный жилой проект в районе Кайсиева Градина
г. Варна , кв. «Кайсиева градина»
Современная городская архитектура в динамично развивающемся районе с удобной инфраструктурой и близостью к зеленым насаждениям – превосходное сочетание комфорта, стиля и спокойствия
Продажа
Четырехкомнатная квартира в Новый масштабный жилой проект в районе Кайсиева Градина
г. Варна , кв. «Кайсиева градина»
Современная городская архитектура в динамично развивающемся районе с удобной инфраструктурой и близостью к зеленым насаждениям – превосходное сочетание комфорта, стиля и спокойствия
Продажа
Четырехкомнатная квартира в Новый масштабный жилой проект в районе Кайсиева Градина
г. Варна , кв. «Кайсиева градина»
Современная городская архитектура в динамично развивающемся районе с удобной инфраструктурой и близостью к зеленым насаждениям – превосходное сочетание комфорта, стиля и спокойствия
Продажа
Четырехкомнатная квартира в Новый масштабный жилой проект в районе Кайсиева Градина
г. Варна , кв. «Кайсиева градина»
Современная городская архитектура в динамично развивающемся районе с удобной инфраструктурой и близостью к зеленым насаждениям – превосходное сочетание комфорта, стиля и спокойствия
Продажа
Четырехкомнатная квартира в Новый масштабный жилой проект в районе Кайсиева Градина
г. Варна , кв. «Кайсиева градина»
Современная городская архитектура в динамично развивающемся районе с удобной инфраструктурой и близостью к зеленым насаждениям – превосходное сочетание комфорта, стиля и спокойствия
Продажа
Четырехкомнатная квартира в Новый масштабный жилой проект в районе Кайсиева Градина
г. Варна , кв. «Кайсиева градина»
Современная городская архитектура в динамично развивающемся районе с удобной инфраструктурой и близостью к зеленым насаждениям – превосходное сочетание комфорта, стиля и спокойствия
Продажа
Четырехкомнатная квартира в Новый масштабный жилой проект в районе Кайсиева Градина
г. Варна , кв. «Кайсиева градина»
Современная городская архитектура в динамично развивающемся районе с удобной инфраструктурой и близостью к зеленым насаждениям – превосходное сочетание комфорта, стиля и спокойствия
Продажа
Четырехкомнатная квартира в Новый масштабный жилой проект в районе Кайсиева Градина
г. Варна , кв. «Кайсиева градина»
Современная городская архитектура в динамично развивающемся районе с удобной инфраструктурой и близостью к зеленым насаждениям – превосходное сочетание комфорта, стиля и спокойствия
Продажа
Трехкомнатная квартира в Новый масштабный жилой проект в районе Кайсиева Градина
г. Варна , кв. «Кайсиева градина»
Современная городская архитектура в динамично развивающемся районе с удобной инфраструктурой и близостью к зеленым насаждениям – превосходное сочетание комфорта, стиля и спокойствия
Продажа
Трехкомнатная квартира в Новый масштабный жилой проект в районе Кайсиева Градина
г. Варна , кв. «Кайсиева градина»
Современная городская архитектура в динамично развивающемся районе с удобной инфраструктурой и близостью к зеленым насаждениям – превосходное сочетание комфорта, стиля и спокойствия
Продажа
Трехкомнатная квартира в Новый масштабный жилой проект в районе Кайсиева Градина
г. Варна , кв. «Кайсиева градина»
Современная городская архитектура в динамично развивающемся районе с удобной инфраструктурой и близостью к зеленым насаждениям – превосходное сочетание комфорта, стиля и спокойствия
Продажа
Трехкомнатная квартира в Новый масштабный жилой проект в районе Кайсиева Градина
г. Варна , кв. «Кайсиева градина»
Современная городская архитектура в динамично развивающемся районе с удобной инфраструктурой и близостью к зеленым насаждениям – превосходное сочетание комфорта, стиля и спокойствия
Продажа
Двухкомнатная квартира в Новый масштабный жилой проект в районе Кайсиева Градина
г. Варна , кв. «Кайсиева градина»
Современная городская архитектура в динамично развивающемся районе с удобной инфраструктурой и близостью к зеленым насаждениям – превосходное сочетание комфорта, стиля и спокойствия
Продажа
Трехкомнатная квартира в Новый масштабный жилой проект в районе Кайсиева Градина
г. Варна , кв. «Кайсиева градина»
Современная городская архитектура в динамично развивающемся районе с удобной инфраструктурой и близостью к зеленым насаждениям – превосходное сочетание комфорта, стиля и спокойствия
Продажа
Трехкомнатная квартира в Новый масштабный жилой проект в районе Кайсиева Градина
г. Варна , кв. «Кайсиева градина»
Современная городская архитектура в динамично развивающемся районе с удобной инфраструктурой и близостью к зеленым насаждениям – превосходное сочетание комфорта, стиля и спокойствия
Продажа
Трехкомнатная квартира в Новый масштабный жилой проект в районе Кайсиева Градина
г. Варна , кв. «Кайсиева градина»
Современная городская архитектура в динамично развивающемся районе с удобной инфраструктурой и близостью к зеленым насаждениям – превосходное сочетание комфорта, стиля и спокойствия
Продажа
Трехкомнатная квартира в Новый масштабный жилой проект в районе Кайсиева Градина
г. Варна , кв. «Кайсиева градина»
Современная городская архитектура в динамично развивающемся районе с удобной инфраструктурой и близостью к зеленым насаждениям – превосходное сочетание комфорта, стиля и спокойствия
Продажа
Двухкомнатная квартира в Новый масштабный жилой проект в районе Кайсиева Градина
г. Варна , кв. «Кайсиева градина»
Современная городская архитектура в динамично развивающемся районе с удобной инфраструктурой и близостью к зеленым насаждениям – превосходное сочетание комфорта, стиля и спокойствия
Продажа
Двухкомнатная квартира в Новый масштабный жилой проект в районе Кайсиева Градина
г. Варна , кв. «Кайсиева градина»
Современная городская архитектура в динамично развивающемся районе с удобной инфраструктурой и близостью к зеленым насаждениям – превосходное сочетание комфорта, стиля и спокойствия
Продажа
Двухкомнатная квартира в Новый масштабный жилой проект в районе Кайсиева Градина
г. Варна , кв. «Кайсиева градина»
Современная городская архитектура в динамично развивающемся районе с удобной инфраструктурой и близостью к зеленым насаждениям – превосходное сочетание комфорта, стиля и спокойствия
Продажа
Двухкомнатная квартира в Новый масштабный жилой проект в районе Кайсиева Градина
г. Варна , кв. «Кайсиева градина»
Современная городская архитектура в динамично развивающемся районе с удобной инфраструктурой и близостью к зеленым насаждениям – превосходное сочетание комфорта, стиля и спокойствия
Продажа
Трехкомнатная квартира в Новый масштабный жилой проект в районе Кайсиева Градина
г. Варна , кв. «Кайсиева градина»
Современная городская архитектура в динамично развивающемся районе с удобной инфраструктурой и близостью к зеленым насаждениям – превосходное сочетание комфорта, стиля и спокойствия
Еще объекты недвижимости в кв. Кайсиева градина
Продажа
Современный жилой комплекс в районе Кайсиева градина
г. Варна , кв. «Кайсиева градина»
Современная архитектура, просторные квартиры и удобное расположение
Современный жилой комплекс в районе Кайсиева градина - Современная архитектура, просторные квартиры и удобное расположение
Продажа
Двухкомнатная квартира напротив Акта 16 в кв. Кайсиева градина
г. Варна , кв. «Кайсиева градина»
Квартира в новостройке рядом с бульваром в Варне
Двухкомнатная квартира напротив Акта 16 в кв. Кайсиева градина - Квартира в новостройке рядом с бульваром в Варне
Продажа
Новое здание, сочетающее в себе современную архитектуру и природные элементы
г. Варна , кв. «Кайсиева градина»
Идеально распределенные апартаменты с 1, 2 и 3 спальнями в престижном районе Варна
Новое здание, сочетающее в себе современную архитектуру и природные элементы - Идеально распределенные апартаменты с 1, 2 и 3 спальнями в престижном районе Варна
от € 100 000
(€/кв.м. 1 443 - €/кв.м. 1 574)Площадь: 63.53 - 119.44 кв.м.
Калина Иванова
Старший консультант, Варна
Продажа
Квартиры в районе Кайсиева градина в Варне
г. Варна , кв. «Кайсиева градина»
Жилье в комплексе-новостройке
Квартиры в районе Кайсиева градина в Варне - Жилье в комплексе-новостройке
от € 104 970
(€/кв.м. 1 350 - €/кв.м. 1 390)Площадь: 77.76 - 119.42 кв.м.
Калина Иванова
Старший консультант, Варна
Еще объекты недвижимости в г. Варна
Продажа
Хит продаж
Люкс
Жилье в небоскребе - элитный комплекс в Младосте, Варна!
г. Варна , кв. «Младост 1»
Высококлассные апартаменты с уникальными видами в Младосте. Младост 1 - морская столица
Жилье в небоскребе - элитный комплекс в Младосте, Варна! - Высококлассные апартаменты с уникальными видами в Младосте. Младост 1 - морская столица
от € 107 900
(€/кв.м. 1 518 - €/кв.м. 1 751)Площадь: 68.20 - 122.26 кв.м.
Калина Иванова
Старший консультант, Варна
Продажа
Хит продаж
Люкс
Жилой комплекс рядом с пляжем Кабакум, Варна
г. Варна , кв. «м-т Ален мак»
Роскошные апартаменты, прямой доступ к пляжу
Жилой комплекс рядом с пляжем Кабакум, Варна - Роскошные апартаменты, прямой доступ к пляжу
от € 256 000
(€/кв.м. 1 199 - €/кв.м. 2 100)Площадь: 186.80 - 213.49 кв.м.
Анна Ицова
Риэлтор, Варна
Продажа
новинка
Люкс
Роскошные апартаменты с видом на море в районе Кабакум
г. Варна , кв. «к.к. Чайка»
Апартаменты с одной спальней под ключ в закрытом комплексе с бассейнами и СПА-зоной, в 400 м от пляжа в курортном комплексе Чайка
Роскошные апартаменты с видом на море в районе Кабакум - Апартаменты с одной спальней под ключ в закрытом комплексе с бассейнами и СПА-зоной, в 400 м от пляжа в курортном комплексе Чайка
Продажа
новинка
Люкс
ПЕРВАЯ ЛИНИЯ
Четырёхкомнатная квартира с морской панорамой рядом с пляжем Кабакум
г. Варна , кв. «к.к. Чайка»
Роскошно меблированная квартира с 3 спальнями в закрытом комплексе Cabacum Beach Residence
Четырёхкомнатная квартира с морской панорамой рядом с пляжем Кабакум - Роскошно меблированная квартира с 3 спальнями в закрытом комплексе Cabacum Beach Residence
Продажа
новинка
Люкс
Новый двухэтажный дом в районе Прибой
г. Варна , кв. «м-т Прибой»
Современный семейный дом с собственным двором, двумя парковочными местами и панорамным видом на море
Новый двухэтажный дом в районе Прибой - Современный семейный дом с собственным двором, двумя парковочными местами и панорамным видом на море
Продажа
новинка
Двухкомнатная квартира в районе Левски 2, рядом с Техническим университетом
г. Варна , кв. «Левски 2»
Новая квартира под ключ с современной ванной комнатой для современной городской жизни
Двухкомнатная квартира в районе Левски 2, рядом с Техническим университетом - Новая квартира под ключ с современной ванной комнатой для современной городской жизни
Продажа
новинка
Трёхэтажный дом с панорамным видом на море в местности Долна Трака
г. Варна , кв. «м-т Долна Трака»
Объект с отличным потенциалом, просторным двором и красивой террасой с видом на море
Трёхэтажный дом с панорамным видом на море в местности Долна Трака - Объект с отличным потенциалом, просторным двором и красивой террасой с видом на море
Продажа
новинка
Трёхкомнатная квартира по БДС в новом проекте в районе Погреби
г. Варна , кв. «Погреби»
Функциональная квартира, высококлассная постройка с видом на Варненское озеро
Трёхкомнатная квартира по БДС в новом проекте в районе Погреби - Функциональная квартира, высококлассная постройка с видом на Варненское озеро
Продажа
новинка
Меблированный дом с участком в районе Горна Трака
г. Варна , кв. «м-т Горна Трака»
Жилой и цокольный этажи рядом с комплексом «Белла Вита» и курортом «Св. Св. Св. Константин и Елена»
Меблированный дом с участком в районе Горна Трака - Жилой и цокольный этажи рядом с комплексом «Белла Вита» и курортом «Св. Св. Св. Константин и Елена»
Продажа
новинка
Новый жилой проект в кв. Погреби
г. Варна , кв. «Погреби»
Современное и функциональное жилье недалеко от центра Варны
Новый жилой проект в кв. Погреби - Современное и функциональное жилье недалеко от центра Варны
от € 110 500
(€/кв.м. 1 669 - €/кв.м. 1 700)Площадь: 65.40 - 136.42 кв.м.
Анна Ицова
Риэлтор, Варна
Продажа
-20%
новинка
Люкс
Роскошная 4-комнатная квартира в идеальном центре Варны
г. Варна , «Центр»
Современное жильё с возможностью покупки подземного парковочного места на две машины и кладовой
Роскошная 4-комнатная квартира в идеальном центре Варны - Современное жильё с возможностью покупки подземного парковочного места на две машины и кладовой
Продажа
новинка
Новый элитный жилой проект в курорте Св. Св. Константин и Елена
г. Варна , кв. «Св. Св. Константин и Елена»
Современное здание, высокий стандарт и инвестиционная привлекательность
Новый элитный жилой проект в курорте Св. Св. Константин и Елена - Современное здание, высокий стандарт и инвестиционная привлекательность
Аренда
новинка
Квартира-студия в г. Варна
г. Варна , кв. «Победа»
Аренда квартир-студий, Варна
Квартира-студия в г. Варна - Аренда квартир-студий, Варна
Продажа
новинка
Двухкомнатная квартира рядом с Окружной больницей и Медицинским университетом
г. Варна , кв. «Окрыжна болница - Генералы»
Удачное расположение и высокий инвестиционный потенциал
Двухкомнатная квартира рядом с Окружной больницей и Медицинским университетом - Удачное расположение и высокий инвестиционный потенциал
Аренда
Меблированная студия в аренду рядом с магазином Макао в районе Виница
г. Варна , кв. «Виница»
Жильё в новом доме в тихом и зелёном районе города Варна
Меблированная студия в аренду рядом с магазином Макао в районе Виница - Жильё в новом доме в тихом и зелёном районе города Варна
Продажа
Трёхкомнатная квартира с южной ориентацией в районе Вазраждане 1
г. Варна , кв. «Вызраждане 1»
Просторное семейное жильё на бульваре „Република“ с возможностью отделки «под ключ»
Трёхкомнатная квартира с южной ориентацией в районе Вазраждане 1 - Просторное семейное жильё на бульваре „Република“ с возможностью отделки «под ключ»
Продажа
Последние квартиры в новом жилом доме в районе Погреби, Варна
г. Варна , кв. «Погреби»
Бутиковое шестиэтажное здание с южной ориентацией и видом на море
Последние квартиры в новом жилом доме в районе Погреби, Варна - Бутиковое шестиэтажное здание с южной ориентацией и видом на море
от € 102 570
(€/кв.м. 1 750 - €/кв.м. 2 011)Площадь: 51.00 - 151.00 кв.м.
Анна Ицова
Риэлтор, Варна
Аренда
Меблированная трёхкомнатная квартира в аренду в районе Левски, Варна
г. Варна , кв. «Левски 1»
Просторная квартира с двумя спальнями и полностью оборудованной кухней
Меблированная трёхкомнатная квартира в аренду в районе Левски, Варна - Просторная квартира с двумя спальнями и полностью оборудованной кухней
Продажа
Современный жилой комплекс в районе Кайсиева градина
г. Варна , кв. «Кайсиева градина»
Современная архитектура, просторные квартиры и удобное расположение
Современный жилой комплекс в районе Кайсиева градина - Современная архитектура, просторные квартиры и удобное расположение
Продажа
Новая двухкомнатная квартира в квартале Возраждане 1
г. Варна , кв. «Вызраждане 1»
Просторная квартира класса люкс с панорамным видом
Новая двухкомнатная квартира в квартале Возраждане 1 - Просторная квартира класса люкс с панорамным видом
Аренда
Полностью меблированная квартира с двумя спальнями в районе Горна Трака
г. Варна , кв. «м-т Горна Трака»
Комфортабельная квартира с видом на море в закрытом комплексе
Полностью меблированная квартира с двумя спальнями в районе Горна Трака - Комфортабельная квартира с видом на море в закрытом комплексе
Продажа
Двухкомнатная квартира напротив Акта 16 на курорте Чайка
г. Варна , кв. «к.к. Чайка»
Новая квартира под ключ с видом на море
Двухкомнатная квартира напротив Акта 16 на курорте Чайка - Новая квартира под ключ с видом на море
Продажа
Хит продаж
Новый жилой дом в престижном районе Возраждане 1
г. Варна , кв. «Вызраждане 1»
Последние двухкомнатные и трёхкомнатные квартиры рядом с парком, магазинами, бульварами и учебными заведениями
Новый жилой дом в престижном районе Возраждане 1 - Последние двухкомнатные и трёхкомнатные квартиры рядом с парком, магазинами, бульварами и учебными заведениями
от € 120 000
(€/кв.м. 1 677 - €/кв.м. 1 932)Площадь: 67.29 - 100.51 кв.м.
Калина Иванова
Старший консультант, Варна
Аренда
Люкс
Полностью меблированная двухкомнатная квартира в аренду с видом на море
г. Варна , кв. «Чайка»
Квартира в новом элитном доме рядом с Морским садом
Полностью меблированная двухкомнатная квартира в аренду с видом на море - Квартира в новом элитном доме рядом с Морским садом
Продажа
Люкс
Четырёхкомнатная квартира в районе Бриз, рядом с Kaufland
г. Варна , кв. «Бриз»
Роскошное, светлое и просторное жильё с ощущением дома и подземным гаражом
Четырёхкомнатная квартира в районе Бриз, рядом с Kaufland - Роскошное, светлое и просторное жильё с ощущением дома и подземным гаражом
Подписывайтесь на наш канал